Những điều cơ bản khi thiết kế chung cư mini, căn hộ cho thuê.
Thiết kế chung cư mini là loại hình thiết kế căn hộ cho thuê, với diện tích từ 80m2 đến 200m2, chiều cao chung cư mini thường từ 7 tầng đến 9 tầng.
Địa điểm thiết kế chung cư mini thường ở các khu đô thị, tập chung tại hầu hết các thành phố lớn, mật độ dân số cao, có nhiều người lao động nhập cư, dẫn đến việc ra tăng nhu cầu ở, trong khi quỹ đất có hạn, chính vì vậy để đáp ứng nhu cầu ở của người lao động nhập cư, nên nhiều chủ đầu tư mạnh dạn đầu tư chung cư mini cho thuê với giá rẻ, đáp ứng nhu cầu ở cơ bản, chi phí phải chăng, chỉ từ 2 triệu đến 4 triệu là hoàn toàn có thể thuê được một căn hộ chung cư mini với diện tích từ 35m2 đến 50m2 bao gồm 02 phòng ngủ, 01 phòng khách, 01 bếp, 01 vệ sinh chung, cùng với khoảng logia phơi đồ, một căn hộ đầy đủ tiện nghi sẽ phù hợp cho 2-4 người sử dụng, có thể là đôi vợ chồng trẻ, hoặc nhóm sinh viên, hoặc nhóm người đi làm, cùng góp tiền thuê chung cư mini, mục đích để giảm thiểu chi phí vốn đắt đỏ tại nơi thành phố sầm uất.
Ưu điểm khi thiết kế chung cư mini, căn hộ cho thuê.
Ưu điểm lớn nhất của chung cư mini là phù diện tích nhỏ, chỉ từ 80m2 trở lên, diện tích các phòng thường chỉ 35m2 đến 50m2, thậm trí 25m2, mỗi tầng có thể bố trí từ 4 đến 5 phòng, việc bố trí phòng nhỏ, số lượng nhiều, giúp chủ đầu tư có thêm nhiều lựa chọn cho khách thuê nhà với giá phù hợp, tăng tính cạnh tranh với nhà trọ bình dân.
Với diện tích không quá lớn, thiết kế đơn giản hiện đại, điều này sẽ giảm thời gian thi công, qua đấy thúc đẩy công trình đi vào sử dụng sớm, giúp chủ đầu tư mau chóng thu lợi nhuận từ căn hộ của mình.

Ảnh minh họa thiết kế chung cư mini, thiết kế căn hộ cho thuê
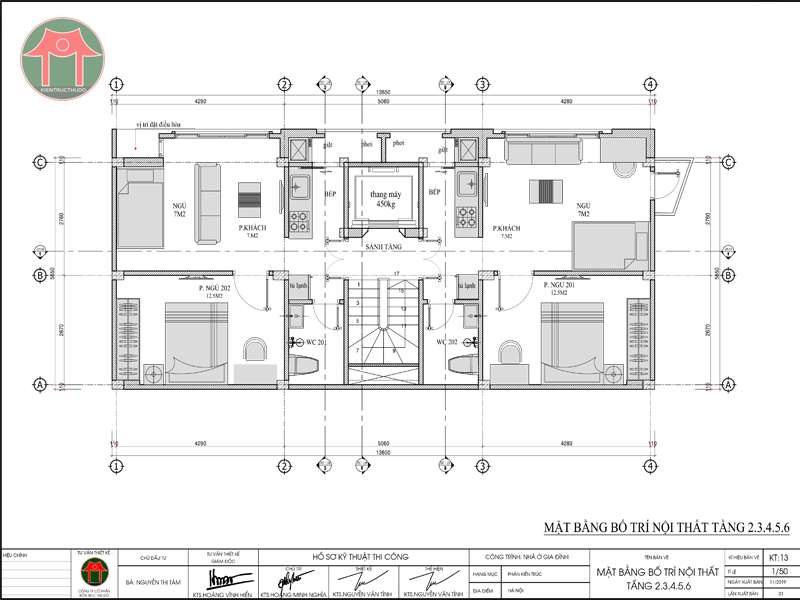
Nhược điểm khi thiết kế chung cư mini, căn hộ cho thuê.
Nhược điểm lớn nhất của chung cư mini, đấy là vị trí để xe máy và hệ thống bể nước ngầm, hệ thống cầu thang thoát hiểm đạt tiêu chuẩn vể phòng cháy chữa cháy.
Với số lượng từ 4-5 phòng một tầng, tổng số tầng cho thuê là 5-6 tầng, tính ra sẽ là khoảng 25-30 phòng, mỗi phòng trung bình 2 xe máy, tổng cộng khoảng 50-60 xe máy, mỗi xe máy cần 0.8m x 1.8m x 50 = 72m2 chưa kể diện tích cầu thang bộ, cầu thang máy và hành lang đi lại, điều này sẽ gây bất tiện khi sử dụng, chủ đầu tư cần có phương án gửi xe cho những người thuê nhà, đảm bảo an ninh và tiện lợi khi sử dụng.
Với số lượng 25 đến 30 phòng, mỗi phòng trung bình 2 người, tổng cộng khoảng 50 đến 60 người, nhu cầu sinh hoạt về nước là cực lớn, nên việc bố trí bể nước ở đâu là tương đối phức tạp, cần tính toán thật tỉ mỉ và hợp lý khi thiết kế chung cư mini.
Phần thiết kế cầu thang bộ, cầu thang máy cực kì quan trọng để đảm bảo phòng cháy chữa cháy, yêu cầu cầu thang bộ phải không gấp khúc, không có bậc chéo, phải có 2 lối thoát nạn, đây là bài toán khó trong thiết kế chung cư mini.

Ảnh minh họa nhược điểm thiết kế căn hộ mini, không gian tầng 1 để xe máy
Phân loại trong thiết kế chung cư mini.
Có rất nhiều loại chung cư mini, chúng tôi tạm phân loại như sau:
- Phân loại thiết kế chung cư theo số tầng, tập chung tại thành phố, nơi có mật độ dân cư đông, hạn chế về chiều cao, thông thường chung cư mini từ 5 đến 7 tầng, chiều cao nhỏ hơn 25m, mật độ xây dựng từ 80 đến tối đa 90% diện tích lô đất.
- Phân loại thiết kế chung cư theo số mặt tiền bao gồm:
Chung cư mini 1 mặt tiền, thường nằm trong ngõ, xen kẽ với công trình lân cận, mặt tiền bố trí đơn giản, hiện đại.
Chung cư minni 2 mặt tiền, thường nằm tại ngã 3, giao thông thuận tiện, hình thái kiến trúc đa dạng, có thể thiết kế kiến trúc hiện đại hoặc tân cổ điển đều đẹp
Chung cư mini 4 mặt tiền, thường tập chung ở các khu đô thị mới, quý đất rộng, có tiện ích phụ trợ tốt, nhưng việc sở hữu những lô đất ở đây là vô cùng đắt đỏ, nên không thực sự thích hợp cho mục đích cho thuê bình dân giá rẻ, mà nên thiết kế dạng chung cư mini cho thuê từng căn hộ.

Ảnh minh họa thiết kế chung cư mini 7 tầng 2 mặt tiền
Liên hệ với công ty thiết kế chung cư mini ở đâu?
Với hơn 15 năm kinh nghiệm cùng hàng trăm mẫu thiết kế chung cư mini, thiết kế căn hộ cho thuê, cùng đội ngũ kiến trúc sư nhiều năm kinh nghiệm, tân tâm với nghề, đặt chất lượng và lợi ích của khách hàng lên trên hết, chúng tôi luôn sáng tạo, đào sâu suy nghĩ, kết hợp với công năng của bạn, để tạo nên những thiết kế chung cư đẹp nhất, phù hợp với mục đích kinh doanh và tài chính của bạn.
Hãy liên hệ ngay với chúng tối, để có những mấu thiết kế biệt thự đẹp nhất
Thông tin liên hệ:
Công ty cổ phần kiến trúc thủ đô
☎️Hotline: 0915.9999.25 (Zalo)
Địa chỉ: số 8/260 Cầu giấy - Hà Nội
Website: kientructhudo.vn
Email: thietke.kttd@gmail.com