Sơ lược về công trình
Công trình: Chung cư mini 6.5 tầng
Địa điểm: Cự Lộc - Thanh Xuân - Hà Nội
Chủ đầu tư: Anh Chung
Diện tích sàn: 68m2
Tổng diện tích sàn: 450m2
Hướng chính nhà: Hướng đông nam
Chi phí xây dựng: 2.16 tỉ, trung bình 4.8tr/m2
Chi phí nội thất: 390 triệu
Chi phí thang máy tải trọng 350kg: 350tr ---> 6 điểm dừng
Tổng mức đầu tư: 2.9 tỉ
Lợi nhuận cho thuê tầng 1 làm siêu thị mini dự kiến: 10tr/ tháng, 1 năm tính 10 tháng (80%), thu về 100tr/năm
Lợi nhuận cho thuê tầng 2-3-4-5-6, mỗi tầng 2 phòng, mỗi phòng trung bình 5.5tr/tháng, tổng cộng 10 phòng x 5.5tr = 55tr/ tháng x 10 tháng = 550tr/năm
Tổng cộng chi phí cho thuê 1 năm: 100tr + 550tr = 660tr/năm
Tổng mức đầu tư: 2.9 tỉ chia cho 660tr/năm, sau 5 năm sẽ thu hồi vốn
Phối cảnh công trình chính

Phối cảnh tầng 1 - mặt tiền - phần cho thuê siêu thị mini - dự kiến 10tr/tháng

Phối cảnh góc trên cao

Phối cảnh mặt bên - hướng từ trên xuống, thể hiện vị trí phơi đồ cho căn hộ cho thuê

Phối cảnh mặt bên - hướng từ dưới lên - thể hiện vị trí phơi đồ cho căn hộ cho thuê

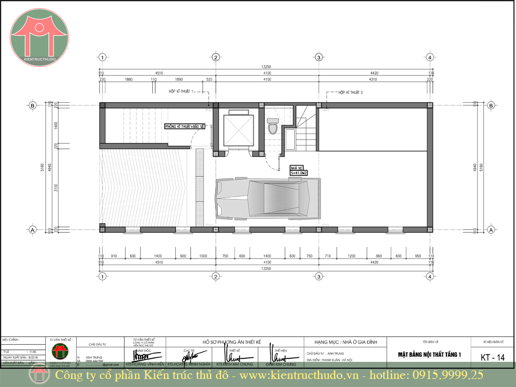
Mặt bằng tầng hầm - nơi để vị trí xe của khách - nơi tập chung hệ thống kĩ thuật - kho, phòng bảo vệ

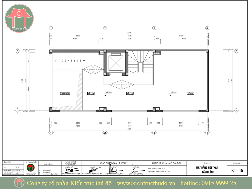
Mặt bằng tầng lửng - cho thuê làm chung cư mini, diện tích 40m2 - dự kiến cho thuê 10tr/tháng

phối cảnh nội thất siêu thị mini

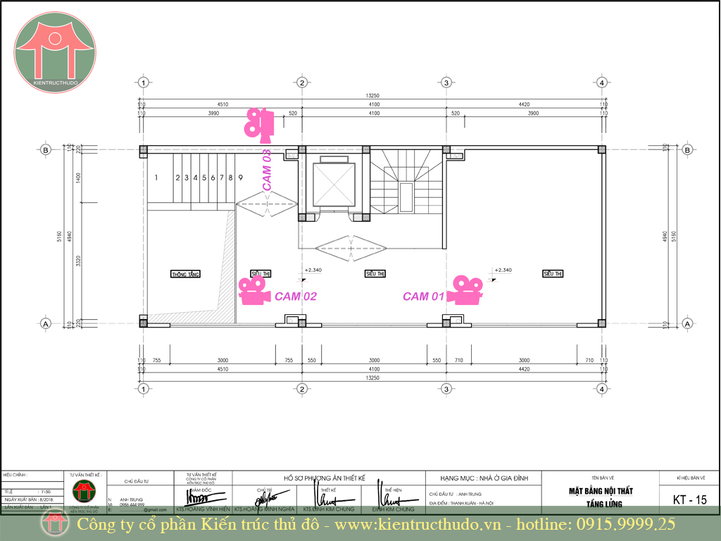
góc camera 01 - hướng nhìn từ trong ra ngoài

góc nhìn camera02 hướng nhìn từ ngoài vào trong

góc camera03 hướng nhìn từ cửa sảnh ra vào

Mặt bằng căn hộ chung cư mini tầng 2-3-4-5-6- diện tích 30m2/phòng, bố trí đầy đủ 01 phòng ngủ, bếp, phòng khách, phòng giặt, sân phơi

Phối cảnh tổng thể 01 căn hộ


góc camera 01 hướng từ phòng ngủ ra cửa, thể hiện đầy đủ vật liệu nội thất, với gam màu nâu óc chó, kết hợp màu trắng của tủ và trần thạch cao, sàn lát gỗ màu nâu đỏ, ngôn ngữ thiết kế hiện đại, phù hợp cặp vợ chồng mới cưới, muốn có một không gian đẹp và thơ mộng giữa thành phố tấp nập, muốn tìm nơi yên tĩnh, lấy lại tinh thần sau những ngày làm việc mỏi mệt
Sơ bộ về nội thất:
Sàn gỗ công nghiệp chịu nước: 350k/m2 dầy 8mm
Giường gỗ công nghiệp, mặt phủ Melamin, giá 6tr/bộ, kích thước 2.1x1.88m
Táp đầu giường: KT 600x450 cao 450 có giá 1.5tr/c
Bộ bàn ăn gỗ tự nhiên,, ghế bọc nỉ: 3tr/bộ
Tủ quần áo: tủ gỗ công nghiệp, mặt phủ Melamin, 2.2tr/m2
rèm roman kéo thả, vải bố, xếp tầng có giá 900k/md

góc camera 02 - thể hiên toàn cảnh không gian nghỉ, kết hợp tủ quần áo và bàn học - nhẹ nhàng và tinh tế

góc camera 03 - hường từ vị trí bàn ăn tới giường và kệ tivi, căn hộ được tận dụng tối đa khoảng thoảng mặt tiền và mặt ngõ, giúp đón gió và năng tự nhiên, tốt cho sức khỏe và đặc biệt tiết kiệm điện năng, một lợi thế cho người sử dụng

góc camera 04 - hướng từ ngoài vào trong, thể hiện cửa chính ra vào và khu bếp, ngôn ngữ thiết kế hiện đại, hòa nhập với tone màu chung, tạo nên tính cách trẻ chung, tiện nghi, hệ thống aptomat được bố trí cạnh cửa ra vào, giúp người sử dụng chủ động trong việc điều khiển thiết bị mỗi khi vắng nhà

góc camera 05 - thể hiện vị trí bếp cho căn hộ, diện tích đủ để 01 bếp từ, 01 chậu rửa đơn, tủ bếp thiết kế liền mạch, đơn giản, tiết kiệm không gian tối đa, nhưng vẫn đầy thực dụng

góc camera06 - vị trí giặt và phơi - thiết kê vô cùng đơn giản, ngăn cách nhà bếp bằng hệ cửa trượt 2 cánh, phía ngoài có lan can bảo vệ, khung thép sơn tĩnh điện, nơi đây tập chung hệ kĩ thuật và bố trí cục nóng điều hòa

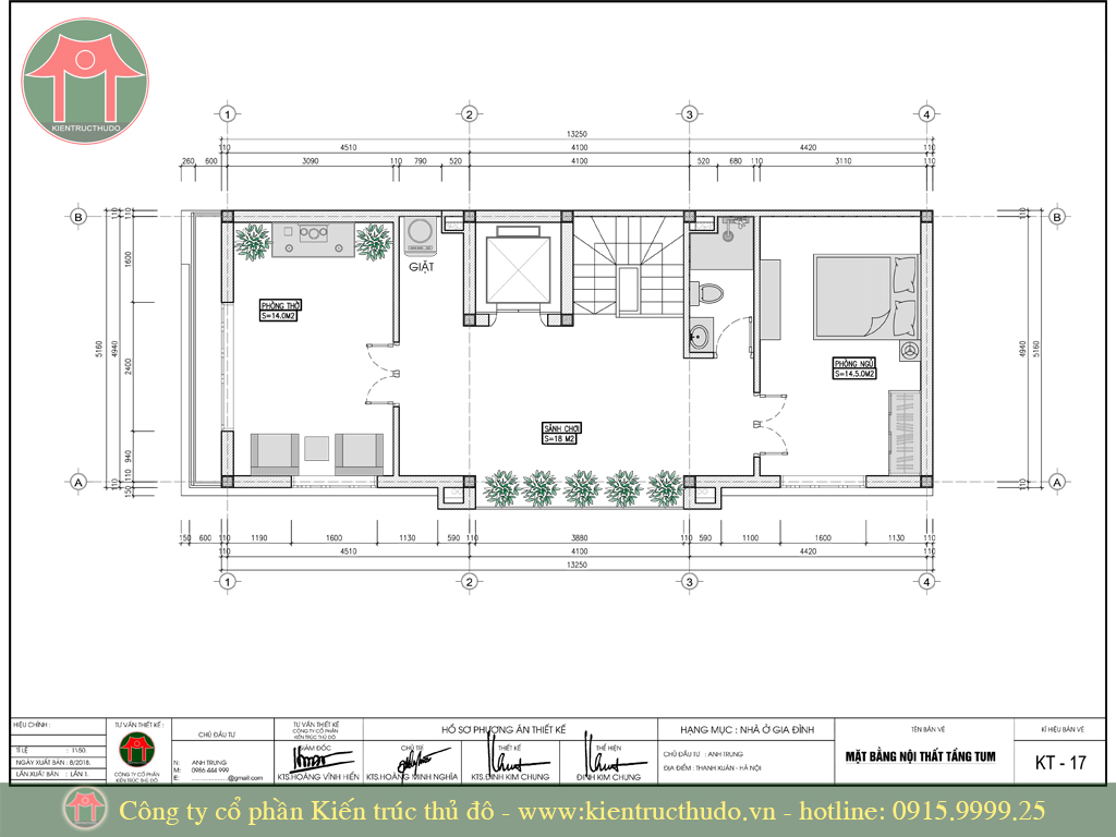
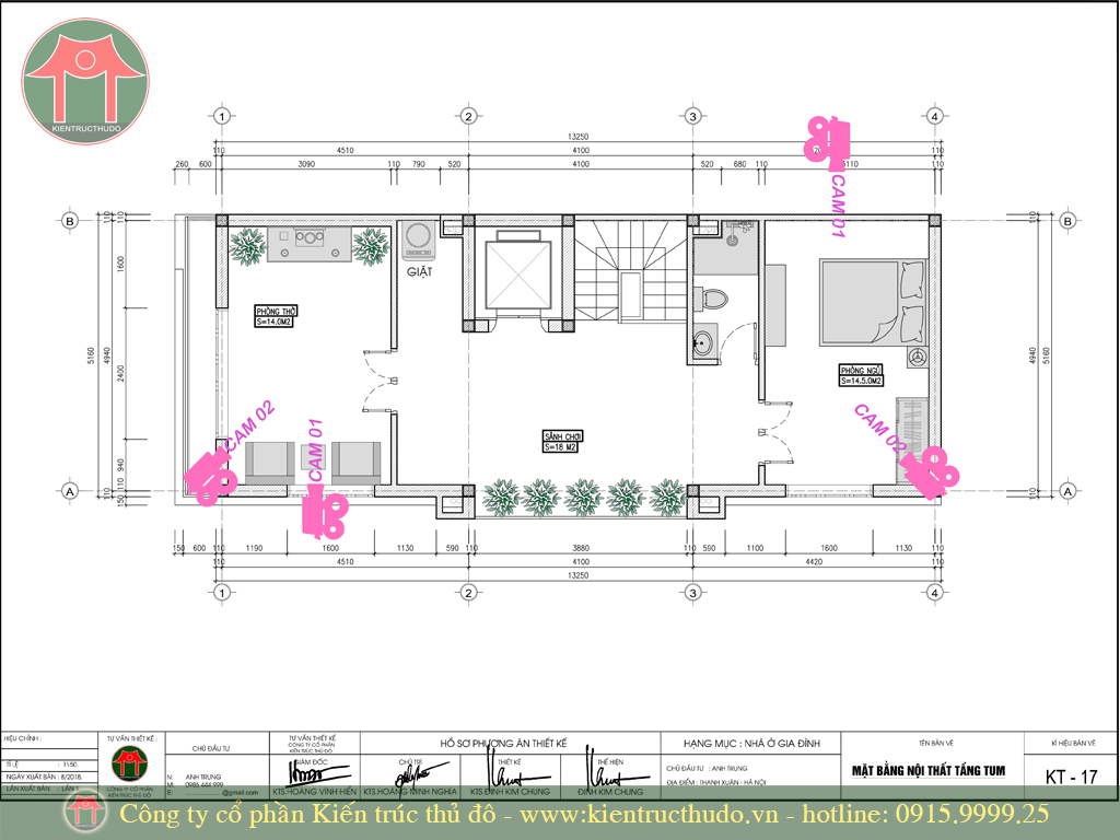
Mặt bằng tầng tum - bố trí 01 phòng ngủ dành cho chủ nhà và bố trí 01 phòng thờ

nội thất phòng thờ

góc camera01 - hướng chính ban thờ - phòng thờ được chúng tôi sử dụng gam màu tối, vật liệu chủ yếu là gỗ gụ, sơn PU đậm, có họa tiết CNC làm điểm nhấn, ánh sáng dùng sáng vàng ấm, giúp gia chủ có không gian phòng thờ rất ấm cúng

góc camera 02 - phòng thờ

Phối cảnh phòng ngủ chủ nhà, thiết kế nhẹ nhàng, vật liệu chủ yếu cùng tone màu với toàn nhà

góc nhìn chính diện

phối cảnh phần sân tum, nơi chủ nhà thư giãn với vườn cây tự trồng, mặt trước và mặt sau đón gió tự nhiên, tái tạo sức khỏe sau những ngày mỏi mệt :)

Mặt bằng mái, nơi để ô thông tầng, bố trí 02 téc nước mái dọc trục vệ sinh cho từng căn hộ

Để có một thiết kế ưng ý, chúng tôi, kiến trúc thủ đô đã phải trăn trở rất nhiều để đưa ra công năng phù hợp, tư vấn luôn về định hướng kinh doanh, giúp chủ đầu tư hình dung được tổng mức đầu tư và lợi nhuận thu về chỉ sau 5 năm
công trình đã được chúng tôi thiết kế và thi công xong, đưa vào sử dụng tháng 12 năm 2018, nếu muốn, mời các bạn đến tham khảo bất cứ khi nào
Thông tin vui lòng liên hệ
W: kientructhudo.vn
E: thietke.kttd@gmail.com
T: 0915.9999.25 (Zalo)
Công ty cổ phần kiến trúc thủ đô
Trân trọng!




