GIỚI THIỆU MẪU THIẾT KẾ BIỆT THỰ HIỆN ĐẠI TẠI HẢI DƯƠNG.
Mẫu thiết kế biệt thự hiện đại tại Hải Dương được chúng Tôi giới thiệu sau đây có tổng diện tích xây dựng là 240m2 bao gồm 2 tầng, thiết kế dành cho gia đình 3 thế hệ sinh sống.
Chủ nhà là Anh Hội, với mong muốn thiết kế biệt thự hiện đại đơn giản, tối ưu công năng sử dụng, kết hợp với sân vườn cảnh quan xung quanh, lô đất thiết kế biệt thự có tổng diện tích hơn 500m2, phía trước giáp đường lớn 10m, 2 mặt bên tiếp giáp nhà lân cận đã xây kiên cố, phía sau nhà vườn.
Dựa vào địa thế cũng như đặc điểm lô đất và yêu cầu thiết kế biệt thự của Anh Hội, chúng Tôi đã lên thiết kế nhà như sau, xin mời các bạn cùng theo dõi.

Phối cảnh 3D thiết kế biệt thự hiện đại tại Hải Dương.
THUYẾT MINH THIẾT KẾ BIỆT THỰ HIỆN ĐẠI TẠI HẢI DƯƠNG.
Để đáp ứng thiết kế biệt thự dành cho gia đình 3 thế hệ sinh sống, cần tối thiểu 5 phòng ngủ, có phòng ngủ tại tầng 1 cho ông bà, và phòng thờ nên đặt ở tầng 1, trên tầng 2 sẽ là khu vực dành cho bố mẹ và con cái, phần bếp nên để ra sau nhà hoặc bên cạnh nhà, tách biệt không gian sinh hoạt, giảm thiểu mùi đồ ăn ám mùi cho không gian tầng 1 và tầng 2 (thường áp dụng với những lô đất rộng)
1.Mặt bằng tầng 1 trong thiết kế biệt thự hiện đại tại Hải Dương.
Với diện tích 120m2 tại tầng 1, chúng Tôi thiết kế gồm có 2 phòng ngủ, 1 phòng khách, 1 phòng bếp và 1 phòng thờ.
Thiết kế phòng khách với diện tích 38m2 bố trí cơ bản gồm có sofa, kệ tivi, nền phòng khách cao hơn nền sân 75cm, tại phần sảnh chính chúng Tôi bố trí ngũ cấp, với 2 cột trụ tạo dáng có kích thước 50x50cm ốp đá trắng, tạo dáng vẻ hiện đại.
Mái sảnh chính được lợp ngói tráng men màu xanh thẫm, phía dưới trần ốp gạch giả gỗ, sơn PU bóng mờ.
Từ phòng khách này sẽ kết nối với 2 phòng ngủ và phòng thờ vô cùng tiền lợi.
Thiết kế phòng ngủ tại tầng 1 với diện tích trung bình 11m2 có bố trí gồm: giường ngủ, tủ quần áo, kệ tivi, phục vụ nhu cầu của Ông và Bà.
Phòng thờ được thiết kế ngay phía trước mặt tiền vô cùng thông thoáng và tiện lợi sử dụng, cửa chính phòng thờ quay về hướng ngồi của phòng khách, cửa sổ hướng ra mặt tiền, với diện tích phòng thờ 10.6m2 bố trí tủ thờ đứng.
Khu vệ sinh được thiết kế tách riêng biệt, một bên là xí bệt, còn 1 bên là tắm và rửa mặt.
Thiết kế phòng bếp được đẩy ra hông nhà, với diện tích khu bếp gần 20m2 đảm bảo sinh hoạt cho cả gia đình. Phòng bếp có 2 lối tiếp cận, lối 1 tiếp cận ngay ngoài sảnh phụ, tiếp giáp mặt tiền, lối 2 là đi từ phòng khách sang phòng bếp, đi dưới gầm cầu thang.
Phòng bếp có thiết kế cửa sổ và cửa đi ra sân sau nhà, phần sân này gọi là sân ướt, đây sẽ là nơi sơ chế gia súc gia cầm mỗi khi nhà có tiệc

Thiết kế biệt thự hiện đại với tầng 1 bố trí 2 phòng ngủ 1 phòng khách 1 phòng bếp và 1 phòng thờ.
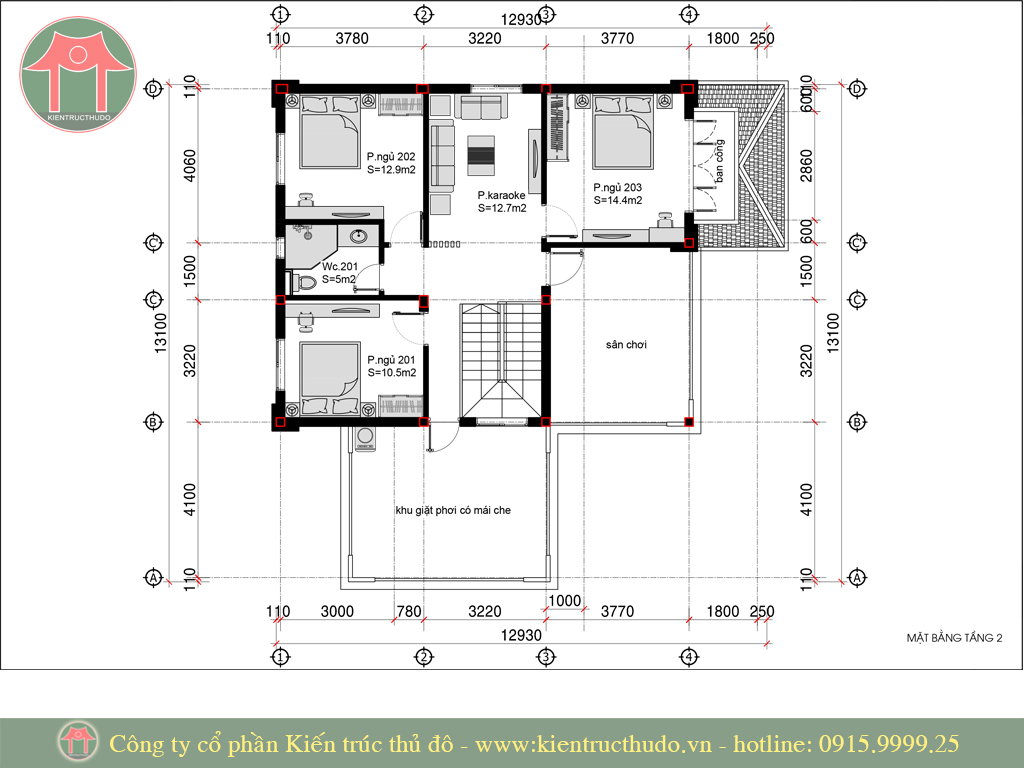
2.Mặt bằng tầng 2 trong thiết kế biệt thự hiện đại tại Hải Dương.
Tầng 2 được thiết kế là nơi sử dụng cho vợ chồng anh Hội cùng con nhỏ, với bố trí 3 phòng ngủ, 1 phòng sinh hoạt chung kiêm phòng khách, cùng 1 phòng vệ sinh rộng.
Thiết kế phòng ngủ của Anh Hội được chúng Tôi đưa ra mặt tiền, với diên tích gần 15m2 có bố trí giường đôi, tủ quần áo, bàn làm việc cùng kệ tivi, phía trước có đua ban công tạo thẩm mỹ cho ngôi nhà, đồng thời cũng là nơi giúp Anh quan sát được cảnh vật xung quanh, chủ động trong việc bảo vệ ngôi nhà của mình.
Thiết kế phòng ngủ của trẻ được đưa về 2 phía của ngôi nhà, với diện tích mỗi phòng ngủ trung bình là 12m2 có bố trí giường ngủ đôi, tủ quần áo cùng kệ tivi liền bàn học, các phòng ngủ đều có cửa sổ thoáng mở ra sau vườn, giúp lưu thông không khí cho phòng ngủ.
Phòng sinh hoạt chung được để đối diện chiều lên cầu cầu thang, với diện tích 12.7m2, có bố trí sofa cùng kệ tivi xinh xắn, đây là nới vợ chồng con cái quây quần trước khi cả nhà đi ngủ.
Cạnh cầu thang chúng tôi có thiết kế 1 hành lang dài, hành lang này sẽ dẫn chúng ta ra phía giặt và phơi của ngôi nhà, phần giặt và phơi chính là mái bếp tầng 1, với diện tích vô cùng rộng và thoáng, gia đình có thể kê bàn cafe và thưởng thức những bữa tiệc nước ngoài trời tại đây.
Tại tầng 2 chúng tôi còn thiết kế 1 không gian vô cùng sang trọng ngay trên mái của phòng thờ, vị trí này sẽ là nơi gia đình tập thể dục, trồng cây xanh mát, thư thái nghỉ ngơi, một điểm mà bất cứ thiết kế biệt thự hiện đại nào cũng cần phải có.

Thiết kế biệt thự hiện đại với tầng 2 bố trí 3 phòng ngủ.
3.Mặt bằng mái Nhật trong thiết kế biệt thự hiện đại tại Hải Dương.
Phần mái thiết kế cầu kì, kết hợp giữa mái ngòi truyền thống và hệ mái bê tông sơn giả gỗ, giúp căn nhà thêm nổi bật, thu hút mọi ánh nhìn.

Thiết kế biệt thự hiện đại với mái chéo phong cách Nhật.
4. Phối cảnh 3D phong cách thiết kế biệt thự hiện đại tại Hải Dương.
Phối cảnh thiết kế biệt thự với ngôn ngữ hiện đại, đường nét nhẹ nhàng tinh tế, màu sắc biệt thự chủ đạo là màu trắng, điểm nhấn chính là hệ mái thiết kế cầu kì, hoàn thiện bằng ngói tráng men, phía dưới mái được ốp gạch bê tông sơn giả gỗ, phần hiện sảnh chính với điểm nhấn là 02 cột được ốp đá trắng tự nhiên. Phía trước phòng thờ với cửa sổ vách kính rộng thoáng, bên dưới có bố trí bồn hoa cao 40cm được ốp đá màu xanh lá cây, Phần hiên sảnh chính thiết kế mái nhẹ, khung gỗ tự nhiên sơn màu cánh dán, phía trên sử dụng kính cường lực 12mm che mưa.
Toàn bộ lan can tầng 2 được thiết kế bằng kính trong suốt, giúp gia chủ có thể phóng tầm nhìn thoải mái mà ko bị hạn chế.

Phối cảnh 3D thiết kế biệt thự hiện đại tại Hải Dương với màu trắng chủ đạo.
5.Phối cảnh tổng thể thiết kế biệt thự hiện đại kết hợp sân vườn cảnh quan tại Hải Dương.
Phối cảnh tổng thể này đã thể hiện được toàn bộ vẻ đẹp của biệt thự hiện đại, phần sân trước nhà được lát đá xanh, phía trước là hồ nước có sẵn, được cải tạo và trông cây hoa xanh mát, bên tay trái được thiết kế làm vườn mini chạy dọc theo nhà, tại hàng rào có thiết kế hệ cau cảnh đón gió, sau lưng nhà là hệ chuối cảnh che chắn gió cho mùa đông.
Góc phối cảnh này cũng thể hiện hết sự hoành tráng của mái ngói, cùng hệ mái nhẹ trang trí của sân giặt và sân chơi phía trước nhà.
Mặt tiền thiết kế biệt thự hiện đại sang trọng với sảnh chính và sảnh phụ.

Phối cảnh tổng thể thiết kế biệt thự hiện đại với sân lát đá xanh tự nhiên.
BÁO GIÁ THIẾT KẾ BIỆT THỰ HIỆN ĐẠI TẠI HẢI DƯƠNG.
Chúng Tôi xin gửi đến các bạn thảm khảo đơn giá thiết kế biệt thự hiện đại của công ty Kiến trúc thủ đô.
1.Bảng báo giá thiết kế biệt thự hiện đại tại Hải Dương mới nhất.
| STT |
LOẠI CÔNG TRÌNH THIẾT KẾ |
ĐƠN GIÁ THIẾT KẾ KIẾN TRÚC (Tính theo mét vuông sàn) |
ĐƠN GIÁ THIẾT KẾ KẾT CẤU, ĐIỆN, NƯỚC (Tính theo mét vuông sàn) |
|---|---|---|---|
| 1 | Thiết kế biệt thự hiện đại, nhà ống 1 mặt tiền | 50.000đ | 40.000đ |
| 2 | Thiết kế biệt thự hiện đại, nhà ống 2 mặt tiền | 60.000đ | 50.000đ |
| 3 | Thiết kế biệt thự mái thái 1 mặt tiền | 90.000đ | 60.000đ |
| 4 | Thiết kế biệt thự mái thái trên 2 mặt tiền | 120.000đ | 60.000đ |
| 5 | Thiết kế biệt thự tân cổ điển 1 mặt tiền | 90.000đ | 60.000đ |
| 6 | Thiết kế biệt thự tân cổ điển trên 2 mặt tiền | 120.000đ | 60.000đ |
- Tổng diện tích sàn < 100m2 ----> Đơn giá thiết kế tăng thêm 50%;
- Tổng diện tích sàn từ 100m2 đến 180m2, đơn giá thiết kế tăng thêm 20%;
- Tổng diện tích sàn trên 400m2 đơn giá thiết kế giảm 10%;
- Giảm giá 30% đối với phần kiến trúc, hoặc kết cấu, hoặc điện, hoặc nước trong trường hợp có các tầng giống nhau;
2.Hồ sơ thiết kế biệt thự hiện đại tại Hải Dương bao gồm:
Hồ sơ thiết kế biệt thự hiện đại của công ty Kiến trúc thủ đô bao gồm 4 phần
Phần thiết kế kiến trúc - thể hiện đẩy đủ các bản vẽ mặt bằng, mặt đứng, mặt cắt, các chi tiết thang, chi tiết vệ sinh, giúp thợ đọc bản vẽ và thi công đúng ý đồ thiết kế
Phần thiết kế kết cấu: thể hiện đầy đủ các phần kết cấu móng, cột, dầm, sàn, các cấu kiện kết cấu, đường kính chủng loại thép...
Phần thiết kế điện: thể hiện đầy đủ các phần ổ cắm, chiếu sáng, điều hòa, Lan/tel/tivi...
Phần thiết kế cấp thoát nước: thể hiện các vị trí đấu nối hệ thống cấp thoát nước, cùng các chi tiết kĩ thuật thi công hệ thống cấp thoát nước
3.Thời gian thiết kế biệt thự hiện đại tại Hải Dương là bao lâu?
Thơi gian thiết kế hồ sơ từ 20 đến 25 ngày làm việc, đối với các công trình thiết kế biệt thự tân cổ điển 1 mặt tiền từ 1 đến 3 tầng
Thời gian thiết kế từ 25 đến 50 ngày làm việc, đối với thiết kế biệt thự tân cổ điển 2 đến 3 mặt tiền.
Trường hợp các bạn cần đẩy nhanh tiến độ, sau khi chốt mặt bằng công năng, bên thiết sẽ tiền hành thiết kế kết cấu móng phục vụ thi công, thời gian thiết kế móng từ 1-2 ngày, sau khi có thiết kế móng, bên Chủ đầu tư có thể thi công được luôn mà chưa cần đến toàn bộ hồ sơ thiết kế
4.Trách nhiệm của đơn vị thiết kế biệt thự hiện đại tại Hải Dương ra sao?
Đối với trách nhiệm thiết kế biệt thự tân cổ điển tại Quảng Ninh, bên thiết kế sẽ cử cán bộ kĩ thuật có năng lực, nhiều kinh nghiệm giám sát trực tiếp mỗi lần đổ bê tông, đảm bảo tính ổn định chắc chắn, đúng bản vẽ của phần kết cấu cũng như phần hệ thống chờ của điện và nước.
5.Quy trình thiết kế biệt thự hiện đại tại Hải Dương cụ thể như thế nào?
- Lắng nghe mong muốn của chủ đầu tư
- Dựa vào lô và yêu cầu thiết kế, bên đơn vị thiết kế sẽ tiến hành thiết kế mặt bằng công năng và tư vấn để phù hợp với chủ đầu tư
- Thống nhất phương án mặt bằng thiết kế, triển khai thiết kế 3D ngoại thất công trình
- Chỉnh sửa lại mặt bằng theo phối cảnh hoặc chỉnh sửa phối cảnh thật ưng ý, chốt mặt bằng và chốt phối cảnh
- Triển khai hồ sơ bản vẽ thi công dựa trên mặt bằng và phối cảnh đã chốt
- Bàn giao hồ sơ sau khi hoàn thành bản vẽ kĩ thuật thi công
- Giải đáp thắc mắc trực tiếp hoặc online trong quá trình thi công
- Giám sát những hạng mục quan trọng trong quá trình thi công
6.Liên hệ công ty thiết kế biệt thự hiện đại tại Hải Dương ở đâu?
Công ty Kiến Trúc Thủ Đô với hơn 15 năm kinh nghiệm, chuyên thiết kế nhà, thiết kế biệt thự, từ hiện đại đến tân cổ điển, chúng Tôi đã thiết kế rất nhiều biệt thự tại Hà Nội, Bắc Ninh, Hải Phòng, Hà Nam, Quảng Ninh v.v..
Với đội ngũ kiến trúc sư nhiệt huyết, tận tình, đam mê sáng tạo, khát khao thể hiện mình, là một công ty hàng đầu trong lĩnh vực thiết kế biệt thự.
Nếu bạn đang cần tìm một công ty thiết kế biệt thự chuyên nghiệp, hãy nhấc máy lên và liên hệ với Chúng Tôi theo số hotline: 0915.9999.25 KTS Hiển (Zalo)
Địa chỉ: 8/260 Cầu Giấy - Hà Nội
Trân trọng cảm ơn!


