GIỚI THIỆU MẪU THIẾT KẾ BIỆT THỰ HIỆN ĐẠI TẠI HƯNG YÊN.
Mẫu thiết biệt thự hiện đại tại Hưng Yên mà chúng Tôi giới thiệu có diện tích sàn 450m2 của gia đình Anh Thắng, với mong muốn thiết kế dành cho gia đình 3 thế hệ sinh sống.
Phong cách thiết kế biệt thự hiện đại, kết hợp sân vườn cảnh quan, các phòng đều có ánh sáng và gió tự nhiên.
Tầng thiết kế dành cho ông bà, với bếp và phòng khách cho đại gia đình.
Tầng 2 thiết kế dành cho vợ chồng Anh Thắng, còn tầng 3 bố trí phòng ngủ cho con.

Ảnh phối cảnh thiết kế biệt thự hiện đại tại Hưng Yên.
THUYẾT MINH THIẾT KẾ BIỆT THỰ HIỆN ĐẠI TẠI HƯNG YÊN.
Với mong muốn thiết kế biệt thự hiện đại, nên chúng Tôi sử dụng những hình khối cơ bả, chủ yếu là hình vuông và hình chữ nhật, đan xen vào nhau, kết hợp với gam màu trắng đục cơ bản, tạo nên nét quyến rũ cho biệt thự, phần lan can sắt dùng sắt đặc sơn đơn, hoa văn nhẹ nhàng, phảng phất lối thiết kế của Châu Âu, phần mái được làm nặng bởi vật liệu ngói đỏ truyền thống.
1.Phối cảnh thiết kế biệt thự hiện đại tại Hưng Yên.
Phối cảnh thiết kế biệt thự với nhiều đường nét nhẹ nhàng đơn giản, màu sắc hài hòa tinh tế, kết hợp cảnh quan sân vườn, giúp tạo cho gia đình không gian thư thái, các chi tiết kiến trúc được lặp đi lặp lại, từ phần hoa sắt ban công đến hoa sắt tường rào, từ màu nền của nhà với màu nền của tường rào đồng điệu, các khoảng thoáng được tận dụng tối đa, ngăn cách bởi hệ khung kính tấm lớn, giúp tối ưu góc nhìn cho người sử dụng.

Màu trắng trong thiết kế biệt thự hiện đại tại Hưng Yên.
Phối cảnh góc trên cao thể hiện phần giao mái đơn giản, phần mái sảnh tầng 1 được đua ra hết phần hành lang, che mưa nắng cho khu vực sảnh chính, tạo điểm nhấn cho công trình, phần hành lang bên cạnh nhà được thiết kế làm bể bơi, xung quanh lát đá tự nhiên xen lẫn cỏ, tạo cảm giác sang trọng đẳng cấp, giúp Anh Thắng có giây phút thư giãn bên gia đình những ngày hè nóng nực.

Bể bơi đẳng cấp cho thiết kế biệt thự hiện đại tại Hưng Yên.
Phối cảnh góc cổng chính, lối dẫn vào công trình, với sảnh phụ được lợp mái kính đơn giản, phía 2 góc sân có bố trí trồng cây bóng mát, mỗi khi chiều đến, cây sẽ tỏa mát, che chắn cho toàn bộ khu sân và cho mái sảnh chính.

Phối cảnh cổng chính cho thiết kế biệt thự hiện đại tại Hưng Yên.
Phối cảnh ngoại thất thiết kế Biệt sang trọng với bể bơi nhân tạo, hai bên lát đá granite tự nhiên màu vàng kem, xen kẽ là hàng cây bụi thấp, cuối hồ bơi thiết kế bồn trồng cau cảnh che bóng mát cho hồ, ngồi từ phòng khách ngắm ra hồ sẽ khiến chủ nhà có giảm giác thư thái yên bình.

Phối cảnh bể bơi cho thiết kế biệt thự hiện đại tại Hưng Yên.
Sảnh chính thiết kế lặp lại với chi tiết bể cá koi phía trước, thành bể ốp đá mapble nâu Tây Ban Nha sang trọng đẳng cấp, chiều sâu hồ cá 1.2m và chiều rộng chạy dài theo phần sảnh, bể lọc được chúng Tôi thiết kế cạnh bồn cau cảnh, nhỏ gọn và tiết kiệm không gian cho sân vườn.

Sảnh chính với hồ cá Koi cho thiết kế biệt thự hiện đại tại Hưng Yên.
Phối cảnh ngoại thất biệt thự là sự kết hợp hài hòa cùa màu trắng kem, màu đen xám của cổng sắt, màu xanh của cây và mặt nước, tạo nên không gian yên bình thư thái, vừa hiện đại lại vô cùng sang trọng và đẳng cấp.

Hoa sắc hàng rào cách điệu cho thiết kế biệt thự thêm ấn tượng.
2.Phối cảnh thiết kế biệt thự hiện đại phần nội thất.
Thiết kế nội thất phòng khách rộng và thoáng, các chi tiết đơn giản nhẹ nhàng tinh tế, phần sofa thiết kế chữ L, với khung gỗ sồi, mặt phủ laminate vân gỗ lim, phần đẹm bọc vải kenzo nhung mềm mại, bàn trà thiết kế tinh tế với gỗ vân đá trắng tự nhiên, bên dưới có trải thảm nhungn màu lông chuôt tạo cảm giác sạch sẽ và hiện đại ,phòng khách kết nối với bên ngoài thông qua hệ vách kính khổ lớn, giúp tôi đa khoảng nhìn và đưa toàn bộ ánh nắng len lỏi vào từng khu vực của phòng khách.
Các bức tường trong nhà được sơn trắng kem, điểm xuyến và đó là những tranh trừu tượng, với khoảng không gian rất rộng, giúp trẻ nhỏ tha hồ nô đùa.

Thiết kế nội thất biệt thự nhẹ nhàng tinh tế.
Phần kệ tivi thiết kế dạng băng dài màu đen, đồng màu với tivi, phần kệ cao 42cm và cách sàn 20cm, phía dưới có đèn Led hắt sắng, giúp vệ sinh dễ dàng phần nền nhà bên dưới.
Toàn bộ nền phòng khách được thiết kế gạch Ceramic men khô cao cấp, với kích thước 1x1m giúp không gian rộng dãi hơn.

Phòng khách rộng thoáng nhẹ nhàng và tinh tế.
Phối cảnh nội thất biệt thự với điểm nhấn đèn thả và vật dụng đồng hồ treo tường, tạo điểm nhấn nhẹ nhàng cho phòng khách, phần sàn tầng lửng được ốp gỗ tự nhiên, phun PU màu cánh dán, ngắt không gian giữa tầng lửng, tạo độ tương phản cao, mang đậm phong cách thiết kế biệt thự hiện đại.

Phòng khách liên thông tầng lửng cho thiết kế biệt thự sang trọng.
Phối cảnh nội thất biệt thự nhìn từ tầng lửng vị trí phòng sinh hoạt chung xuống phòng khách tầng 1, các gam màu hài hòa tinh khiết và tao nhã, thể hiện gu thẩm mỹ của gia chủ.

Không gian thiết kế nội thất phòng khách nhìn từ tầng lửng xuống.
3.Bố trí công năng cho thiết kế biệt thự hiện đại tại Hưng Yên.
Mặt bằng tổng thể lô đất thiết kế biệt thự với diện tích gần 500m2 thể hiện vị trí phân khu chức năng cho từng khu vực, được chúng tôi đánh số thứ tự từ 1 đến 12 rât dễ hiểu, khối nhà chính được bao bọc xung quanh bởi thiên nhiên, lớp ngoài cùng là tường rào, bên trong là hệ cây cao bóng mát, phía trong nữa là hồ nước, tiếp đến là không gian nhà chính, việc được bao bọc nhiều lớp vật liệu, giúp công trình tránh được bụi và không khí ô nhiễm, đồng thời trành được nóng mùa hè và lạnh của mùa đông, mỗi một vị trí đều được chúng Tôi nghiên cứu tỉ mỉ, nhằm tối yêu không gian sống cho gia chủ.

Mặt bằng tổng thể thiết kế biệt thự hiện đại tại Hưng Yên.
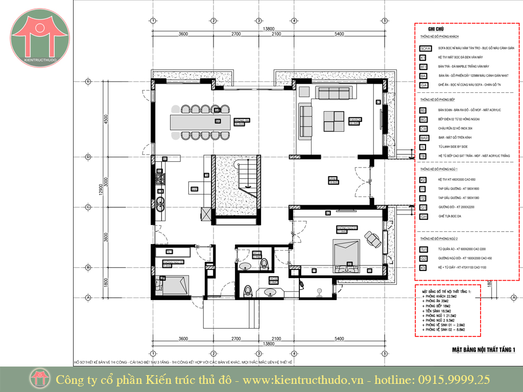
Mặt bằng tầng 1 trong thiết kế biệt thự tại Hưng Yên được bố trí với 1 phòng ngủ chính cùng vệ sinh khép kín, 1 phòng ngủ dành cho nười giúp việc, phòng khách rộng, liên thông với khu bếp cho cả đại gia đình sinh hoạt.
Thiết kế phòng ngủ ông bà với diện tích hơn 20m2 bố trí gồm có giường ngủ cỡ lớn, kệ tivi, ghế thư giãn, mặt chính của phòng ngủ quay ra hướng cửa sổ, với hệ cửa sổ mở lửng, thuận tiện cho việc quan sát cây cỏ bên ngoài cửa sổ.
Thiết kế phòng vệ sinh khép kín tại phòng ngủ vô cùng sang trọng với xí bệt, lavabol, phần tắm được tách riêng biệt, có chức năng xông ướt, giúp gia chủ có cảm giác thoải mái tiện nghi không khác gì biệt thự 5 sao tại các khu du lịch nổi tiếng trên thế giới.
Phòng ngủ giúp việc được thiết kế vừa phải, với diện tích hơn 10m2 có bố trí cơ bản như giường ngủ đơn, tủ quần áo liền tường.
Thiết kế phòng khách liên thông khu bếp, với diện tích hơn 50m2 thoải mái cho đại gia đình 3 thế hệ sinh sống, phòng khách này được nối với sảnh chính rất rộng, tạo cảm giác sang trọng cho gia chủ.
Tất cả các phòng chức năng đều có cửa sổ và cử đi thông thoáng ra vườn trước và sau nhà.

Thiết kế nội thất tầng 1 với phòng ngủ dành cho Ông Bà.
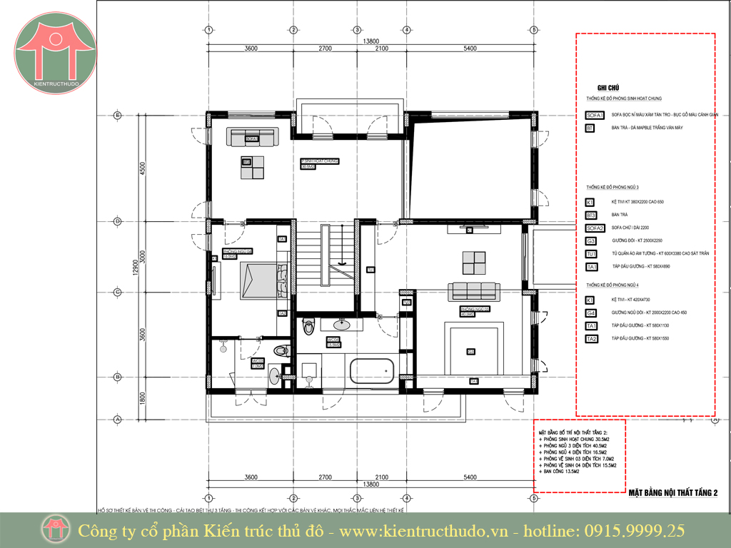
Mặt bằng tầng 2

Thiết kế nội thất tầng 2 với 2 phòng ngủ cùng phòng sinh hoạt chung.
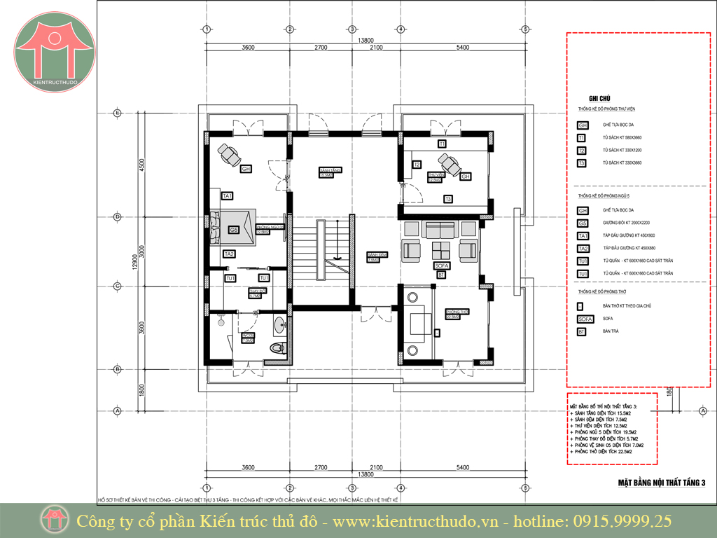
Mặt bằng tầng 3

Thiết kế nội thất tầng 3 với phòng ngủ và phòng thờ.
Mặt bằng mái

Mặt bằng mái thái cho thiết kế biệt thự hiện đại sang trọng.
4.Chi tiết kĩ thuật thiết kế biệt thự hiện đại tại Hưng Yên.

Chi tiết thiết kế kiến trúc mặt bên với sảnh phụ lợp kính.
Mặt đứng công trình

Chi tiết mặt bên đơn giản.
Mặt bên công trình

Mặt bên cho thiết kế biệt thự hiện đại tại Hưng Yên.
Mặt bên công trình

Mặt đứng chính thiết kế biệt thự đẹp tại Hưng Yên.
Mặt cắt công trình

Mặt cắt dọc nhà trong thiết kế biệt thự tại Hưng Yên.
Mặt cắt công trình

Mặt cắt ngang nhà trong thiết kế biệt thự tại Hưng Yên.
5.Kết luận về thiết kế biệt thự hiện đại tại Hưng Yên.
BÁO GIÁ THIẾT KẾ BIỆT THỰ HIỆN ĐẠI TẠI HƯNG YÊN.
Chúng Tôi xin gửi đến các bạn thảm khảo đơn giá thiết kế biệt thự hiện đại của công ty Kiến trúc thủ đô.
1.Bảng báo giá thiết kế biệt thự hiện đại tại Hưng Yên mới nhất.
| STT |
LOẠI CÔNG TRÌNH THIẾT KẾ |
ĐƠN GIÁ THIẾT KẾ KIẾN TRÚC (Tính theo mét vuông sàn) |
ĐƠN GIÁ THIẾT KẾ KẾT CẤU, ĐIỆN, NƯỚC (Tính theo mét vuông sàn) |
|---|---|---|---|
| 1 | Thiết kế biệt thự hiện đại, nhà ống 1 mặt tiền | 50.000đ | 40.000đ |
| 2 | Thiết kế biệt thự hiện đại, nhà ống 2 mặt tiền | 60.000đ | 50.000đ |
| 3 | Thiết kế biệt thự mái thái 1 mặt tiền | 90.000đ | 60.000đ |
| 4 | Thiết kế biệt thự mái thái trên 2 mặt tiền | 120.000đ | 60.000đ |
| 5 | Thiết kế biệt thự tân cổ điển 1 mặt tiền | 90.000đ | 60.000đ |
| 6 | Thiết kế biệt thự tân cổ điển trên 2 mặt tiền | 120.000đ | 60.000đ |
- Tổng diện tích sàn < 100m2 ----> Đơn giá thiết kế tăng thêm 50%;
- Tổng diện tích sàn từ 100m2 đến 180m2, đơn giá thiết kế tăng thêm 20%;
- Tổng diện tích sàn trên 400m2 đơn giá thiết kế giảm 10%;
- Giảm giá 30% đối với phần kiến trúc, hoặc kết cấu, hoặc điện, hoặc nước trong trường hợp có các tầng giống nhau;
2.Hồ sơ thiết kế biệt thự hiện đại tại Hưng Yên bao gồm:
Hồ sơ thiết kế biệt thự hiện đại của công ty Kiến trúc thủ đô bao gồm 4 phần
Phần thiết kế kiến trúc - thể hiện đẩy đủ các bản vẽ mặt bằng, mặt đứng, mặt cắt, các chi tiết thang, chi tiết vệ sinh, giúp thợ đọc bản vẽ và thi công đúng ý đồ thiết kế
Phần thiết kế kết cấu: thể hiện đầy đủ các phần kết cấu móng, cột, dầm, sàn, các cấu kiện kết cấu, đường kính chủng loại thép...
Phần thiết kế điện: thể hiện đầy đủ các phần ổ cắm, chiếu sáng, điều hòa, Lan/tel/tivi...
Phần thiết kế cấp thoát nước: thể hiện các vị trí đấu nối hệ thống cấp thoát nước, cùng các chi tiết kĩ thuật thi công hệ thống cấp thoát nước
3.Thời gian thiết kế biệt thự hiện đại tại Hưng Yên là bao lâu?
Thơi gian thiết kế hồ sơ từ 20 đến 25 ngày làm việc, đối với các công trình thiết kế biệt thự tân cổ điển 1 mặt tiền từ 1 đến 3 tầng
Thời gian thiết kế từ 25 đến 50 ngày làm việc, đối với thiết kế biệt thự tân cổ điển 2 đến 3 mặt tiền.
Trường hợp các bạn cần đẩy nhanh tiến độ, sau khi chốt mặt bằng công năng, bên thiết sẽ tiền hành thiết kế kết cấu móng phục vụ thi công, thời gian thiết kế móng từ 1-2 ngày, sau khi có thiết kế móng, bên Chủ đầu tư có thể thi công được luôn mà chưa cần đến toàn bộ hồ sơ thiết kế
4.Trách nhiệm của đơn vị thiết kế biệt thự hiện đại tại Hưng Yên ra sao?
Đối với trách nhiệm thiết kế biệt thự tân cổ điển tại Quảng Ninh, bên thiết kế sẽ cử cán bộ kĩ thuật có năng lực, nhiều kinh nghiệm giám sát trực tiếp mỗi lần đổ bê tông, đảm bảo tính ổn định chắc chắn, đúng bản vẽ của phần kết cấu cũng như phần hệ thống chờ của điện và nước.
5.Quy trình thiết kế biệt thự hiện đại tại Hưng Yên cụ thể như thế nào?
- Lắng nghe mong muốn của chủ đầu tư
- Dựa vào lô và yêu cầu thiết kế, bên đơn vị thiết kế sẽ tiến hành thiết kế mặt bằng công năng và tư vấn để phù hợp với chủ đầu tư
- Thống nhất phương án mặt bằng thiết kế, triển khai thiết kế 3D ngoại thất công trình
- Chỉnh sửa lại mặt bằng theo phối cảnh hoặc chỉnh sửa phối cảnh thật ưng ý, chốt mặt bằng và chốt phối cảnh
- Triển khai hồ sơ bản vẽ thi công dựa trên mặt bằng và phối cảnh đã chốt
- Bàn giao hồ sơ sau khi hoàn thành bản vẽ kĩ thuật thi công
- Giải đáp thắc mắc trực tiếp hoặc online trong quá trình thi công
- Giám sát những hạng mục quan trọng trong quá trình thi công
6.Liên hệ công ty thiết kế biệt thự hiện đại tại Hưng Yên ở đâu?
Công ty Kiến Trúc Thủ Đô với hơn 15 năm kinh nghiệm, chuyên thiết kế nhà, thiết kế biệt thự, từ hiện đại đến tân cổ điển, chúng Tôi đã thiết kế rất nhiều biệt thự tại Hà Nội, Bắc Ninh, Hải Phòng, Hà Nam, Quảng Ninh, Hải Dương v.v..
Với đội ngũ kiến trúc sư nhiệt huyết, tận tình, đam mê sáng tạo, khát khao thể hiện mình, là một công ty hàng đầu trong lĩnh vực thiết kế biệt thự.
Nếu bạn đang cần tìm một công ty thiết kế biệt thự chuyên nghiệp, hãy nhấc máy lên và liên hệ với Chúng Tôi theo số hotline: 0915.9999.25 KTS Hiển (Zalo)
Địa chỉ: 8/260 Cầu Giấy - Hà Nội
Trân trọng cảm ơn!


