Phối cảnh công trình

Phối cảnh tổng thể công trình

Phối cảnh góc công trình, phương án ngói xanh tráng men

Phối cảnh góc công trình

Phối cảnh tổng thể công trình

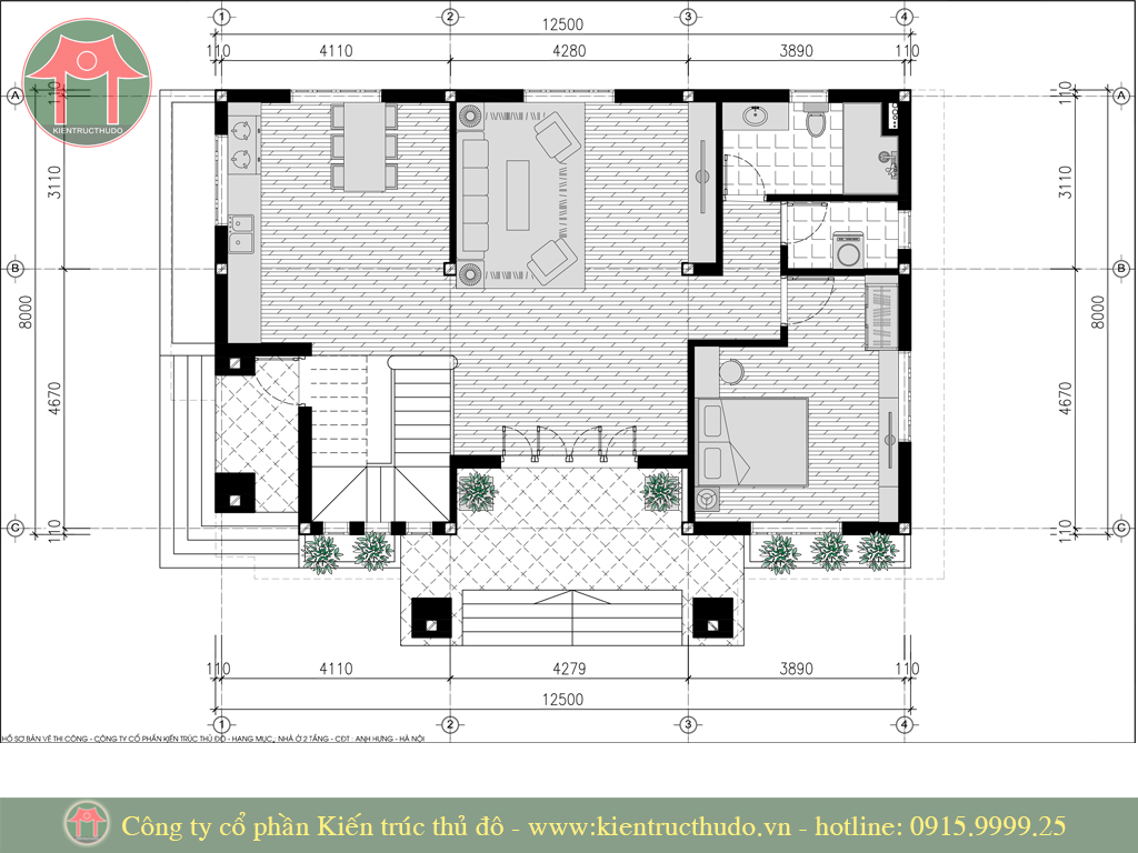
Mặt bằng tầng 1

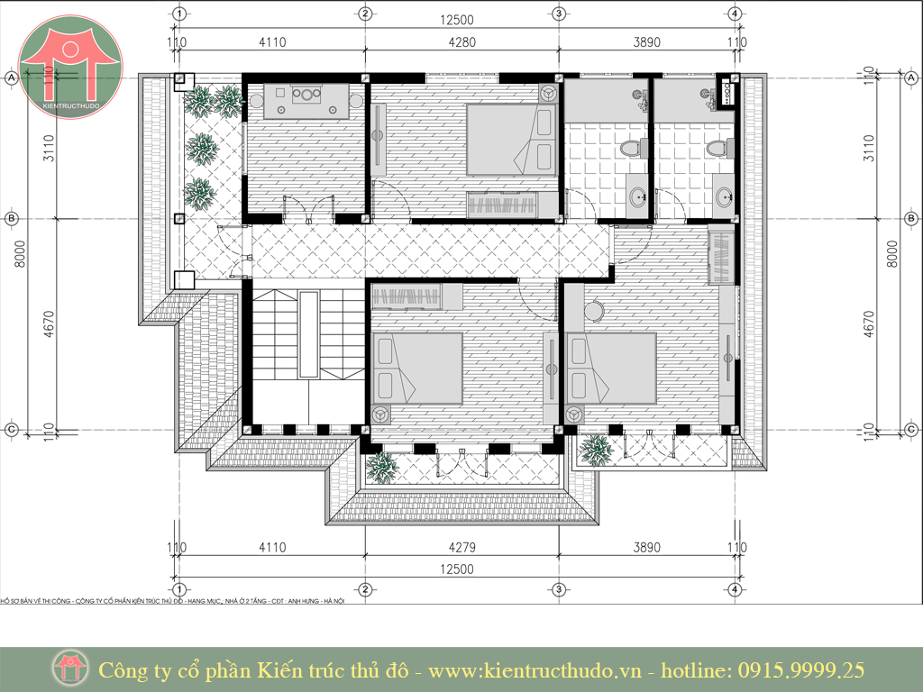
Mặt bằng tầng 2

Mặt bằng tầng tum

Mặt bằng mái công trình


Mặt đứng công trình

Mặt bên công trình

Mặt cắt công trình

Mặt cắt công trình

Mặt bên công trình

Thông tin liên hệ
T: 0915 9999 25 (Zalo)
W: kientructhudo.vn
E: thietke.kttd@gmail.com
A: 8/260 Cầu Giấy - Hà Nội
Công ty cổ phần Kiến trúc thủ đô
Trân trọng!
Thiết kế nhà đẹp tương tự




