Những điều cơ bản trong thiết kế nhà 3 tầng
Nhà 3 tầng đã xuất hiện lâu đời ở các nước Châu âu, mới du nhập vào Việt Nam đầu thế kỉ 20, chủ yếu xuất hiện tại các thành phố lớn như Hà Nội, TP Hồ Chí Minh, các công trình thiết kế nhà 3 tầng chủ yếu do người Pháp xây dựng. Sau quá trình hình thành và phát triển, ngày càng nhiều những công trình thiết kế nhà 3 tầng đẹp được xã hội tin dùng và áp dụng, khiến nó trở thành xu thế của xã hội hiện đại, giúp phần thay đổi cảnh quan và bộ mặt đô thị khu vực
Ưu điểm trong thiết kế nhà 3 tầng hiện đại
Sau thời kì Pháp thuộc, trào lưu xây dựng và thiết kế nhà 3 tầng nở rộ, nguyên nhân lớn xuất phát từ nhu cầu ở, muốn sở hữu căn hộ của riêng mình, vậy đây là ưu điểm lớn nhất đối với loại nhà 3 tầng này:
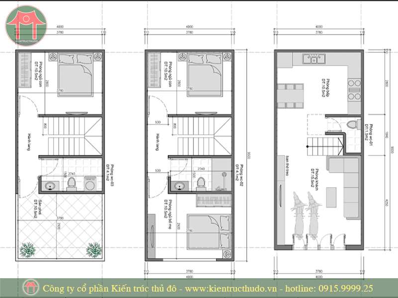
Ưu điểm thứ nhất là: với diện tích không quá lớn, chỉ từ 40m2 đến 60m2 là đủ để thiết kế nhà ống đẹp 3 tầng, thoải mái cho nhu cầu của gia đình 2 thế hệ bao gồm bố mẹ và con cái, với đầy đủ các công năng cơ bản của cuộc sống hội nhập như phòng khách, bếp tại tầng 1, tầng 2 là phòng ngủ và phòng sinh hoạt chung dành cho gia đình cùng vệ sinh khép kín, trên tầng 3 là phòng thờ và sân phơi, tất cả chỉ gói gọn trong 200m2 sàn.
Ưu điểm thứ 2 là: Thời gian thiết kế và thi công nhà 3 tầng tương đối nhanh, chỉ từ 4 tháng đến 6 tháng đã hoàn thiện đưa vào sử dụng, hạn chế được việc xây nhà quá 1 năm, điều mà mọi người thường tránh né.
Ưu điểm thứ 3 là: Chi phí dành cho việc thiết kế nhà 3 tầng và thi công nhà tương đối thấp, chỉ từ 800 triệu là bạn đã sở hữu một căn hộ 3 tầng như ý với đầy đủ tiện nghi, một chi phí không nhiều đối với mức thu nhập của thành phố
và còn rất nhiều những ưu điểm khác nữa, tuy nhiên nói đến ưu điểm thì cũng cần nhắc đến nhược điểm, vậy đâu là nhược điểm của nhà 3 tầng, hãy cùng chúng tôi liệt kê những nhược điểm nhé.

Ảnh Minh họa ưu điểm thiết kế nhà 3 tầng hiện đại với diện tích nhỏ
Những nhược điểm trong thiết kế nhà phố 3 tầng
Nhược điểm thứ nhất: Nhà 3 tầng thường chỉ áp dụng với diện tích nhỏ, tại không gian trật trội, hạn chế về các khoảng thoáng, các căn hộ thường nằm sát nhau, không phù hợp với gia đình đông người và có nhiều thế hệ sinh sống, mỗi khi di chuyển lên các khu vực trong nhà, thường phải leo cầu thang, không phù hợp với người cao tuổi.
Nhược điểm thứ hai: Thiết kế nhà 3 tầng thường nằm trong phố, ngõ, thường chỉ có 1 mặt tiền, nên việc thiết kế nội thất bố trí đưa ánh sáng và gió đến từng khu vực là tương đối khó khăn, việc thi công trong ngõ, xóm, cũng phần nào kéo theo phi phí xây dựng, thất thoát vật tư do việc vận chuyển vật liệu từ thấp lên cao, chưa kể đến việc an toàn lao động khi công nhân phải thi công các phần đoạn hoàn thiện mặt ngoài.
Nhược điểm thứ ba phải kể đến đó là lối thiết kế nhà 3 tầng ngày càng trở nên thông dụng, nên việc mặt tiền các căn hộ sẽ na ná nhau, ít tạo nên sự khác biệt, chưa kể việc chỉ có 1 mặt tiền, nên việc bố trí hệ thống cửa thoát nạn cũng hết sức khó khăn khi gặp sự cố, chính điều này đỏi hỏi các công ty thiết kế kiến trúc phải nghiên cứu rất kĩ để đưa ra những phương án thiết kế nhà 3 tầng đẹp, hiện đại, và phải đặc biệt an toàn cho người sử dụng.

Ảnh minh họa nhược điểm trong thiết kế nhà 3 tầng chỉ có một mặt thoáng
Phân loại thiết kế nhà 3 tầng
Xã hội ngày càng phát triển, tư duy con người thay đổi, dẫn tới việc xu hướng nhìn nhận về cái đẹp ngày một khác, điều này ảnh hưởng đến việc thiết kế và loại hình thiết kế, kiến trúc thủ đô xin tạm phân loại như sau:
Loại thiết kế nhà 3 tầng hiện đại
Nét đặc trưng trong thiết kế nhà hiện đại đó là về mảng hình khối và màu sắc, kiến trúc thường vuông thành sắc cạnh, ít gờ phào chỉ, sử dụng các gam màu tương phản cao, có nhiều điểm nhấn về hình khối, vật liệu bể mặt hiện đại hào nhoáng, cửa thường sử dụng nhôm kính, lan can thường bằng inox hoặc sắt hộp, phần mái trong thiết kế nhà phố hiện đại thường là mái bằng bê tông cốt thép, tất cả những đặc trưng trên, giúp bề ngoài công trình trở nên hiện đại, mang dáng dấp kiến trúc của châu âu.
Loại thiết kế nhà 3 tầng mái thái
Nét đặc trưng trong lối thiết kế kiến trúc nhà mái thái, đó là việc sử dụng mái lợp ngói truyền thống, kết hợp với khung bê tông cốt thép hoặc khung gỗ, phần mái chéo thường có độ dốc từ 45 đến 60 độ, các chi tiết cửa sổ và cửa đi thường lặp lại mái chính, cũng cùng độ dốc, cửa trong loại hình này thưởng sử dụng là cửa gỗ pa nô, phần lan can sẽ dùng kết hợp vừa lan can con tiện xi măng, vừa lan can sắt mỹ thuật, giúp căn hộ trở nên kim cổ, vừa mang dáng dấp hiện đại tân thời, vừa có nét cổ truyển thống của châu á.
Loại thiết kế nhà 3 tầng tân cổ điển
Hoa văn phào chỉ, các mảng tường ốp, phù điêu đắp vẽ cầu kì, đó chính là nét đặc trưng trong thiết kế nhà tân cổ điển. Lối kiến trúc này kết hợp văn hóa truyền thống, đưa rất nhiều chi tiết nhỏ, hoàn thiện cự kì công phu, cửa trong lối thiết kế tân cổ điển thường là cửa 2 lớp, lớp trong là của pano gỗ, lớp ngoài là cửa gỗ nan chớp, đơn sơn màu trắng kiểu Pháp hoặc sơn màu cánh dán truyền thống, hệ thống lan can bảo vệ đa phần là lan can con tiện đúc sẵn ,hệ mái dùng mái chéo dán ngói đỏ hoặc ngói tráng men hện đại
3 mẫu thiết kế nhà ống 3 hiện đại đẹp nhất năm 2020
Mẫu số 01: thiết kế nhà 3 tầng 1 mặt tiền, kích thước 4x15m, mặt ngoài tầng 1 được ốp đá đen, tạo sự vững chắc cho công trình, tầng 2 và tầng 3 đua ban công 1m kết hợp giữa xây và sử dụng hệ lam thép lập là kích thước 3mm x 7cm, chiều cao ban công là 1m, bảo vệ an toàn cho người sử dụng, hệ lam trang trí bằng thép hộp sơn màu nâu làm điểm nhấn, liên kết 3 tầng không gian, giúp tổng thể công trình hài hòa liền khối, phần mái được thiết kế kiểu gian hoa trang trí bằng các lam bê tông kích thước 150x250mm, tại phần này có bộ trí tiểu cảnh sân vườn bằng cây xanh, giúp tạo khoảng xanh cho toàn bộ công trình, bạn có thể xem chi tiết thiết kế tại đây

Ảnh minh họa thiết kế nhà 3 tầng hiện đại mặt tiền 4 mét
Mẫu số 02: Thiết kế nhà ống 3 tầng hiện đại kích thước 4x14m, mặt ngoài tầng 1 được chúng tôi ốp đá đen, hệ cửa chính là cửa cuốn chống trộm, bên trong là hệ cửa pano kính, phần tầng 2 và tầng 3 thiết kế khoảng lô gia thò thụt, kết hợp với lan can thép màu đen, phần mái tum sử dụng hệ lam bê tông, phần màu sắc tổng thể là sự kết hợp đan xen giữa màu trắng của tường, màu đen của thép và nhôm, màu ghi đậm của gạch ốp trang trí, cuối cùng là màu xanh của cây, la phổi trong thiết kế nhà phố tất cả tạo nên sự hòa hòa trong tổng thể thiết kế, bạn có thể xem thêm tại đây

Ảnh minh họa thiết kế nhà 3 tầng hiện đại 1 mặt tiền
Mẫu số 03: Thiết kế nhà ống 3 tầng 2 mặt tiền hiện đại, với việc có 2 mặt tiền, nên sẽ rất dễ dàng thiết kế được công trình đẹp hơn nhiều, bằng việc lặp lại kiến trúc của mặt đứng chính, chúng tôi khéo léo đưa vào thiết kế mặt bên những chi tiết lặp lại của kiến trúc, từ phần ban công, các vật liệu về cửa, chiều cao và kích thước cửa, phần màu sắc của mặt đứng chính cũng được tái thiết kế sang mặt bên, từ màu trắng của tường, màu xanh của cây, màu đen của nhôm và sắt, việc quan trọng trong thiết kế nhà 2 mặt tiền đó là về hình khối, cần phải có những chi tiết liên kết, sao cho hài hòa tổng thể của 2 mặt, thông thường sẽ dùng ban công để liên kết 2 mặt tiền lại với nhau, ưu điểm là vừa dễ về kết cấu, lại phù hợp với công năng sử dụng bên trong và cả thẩm mỹ bên ngoài, bạn có thể xem tại đây https://www.kientructhudo.vn/thiet-ke-nha-3-tang-1-tum-kich-thuoc-4-8m-x-14-2m-cdt-co-ha

Ảnh minh họa thiết kế nhà 3 tầng hiện đại 2 mặt tiền
3 mẫu thiết kế nhà 3 tầng tân cổ điển đẹp, hiện đại
Mẫu số 01: Thiết kế nhà 3 tầng cổ điển mái thái, nét đặc trưng trong lối thiết kế này đến từ việc kết cấu mái chéo chữ A, với tỉ lên từ 45 đến 60 độ, vật liệu lợp mái là ngói tráng men đa màu sắc, ít khi dùng ngói truyền thống, việc bố trí phào chỉ làm mềm cho công trình là rất quan trọng, đòi hỏi kiến trúc sư phải thật sự tỉ mì, đưa những phào chỉ nhấn nhá sao cho đẹp và không bị rối mắt, những chi tiết phào chỉ mặt bên và mặt đứng phải hài hòa, những đường nét này còn phải kết hợp với ban công, xử lý khéo léo, tránh sự nhàm chán cho công trình, tại tầng 1 của mẫu này, chúng tôi đưa các chi tiết đều cả 2 mặt, tổng thể căn hộ tới tone màu sáng chủ đạo, hệ thống cửa sử dụng cửa nhựa lõi thép màu trắng, kết hợp với đố pano kiểu Pháp, giúp công trình mang dáng vẻ hiện đại của Châu Âu. Bằng cách sử dụng ban công giả dưới cửa sổ, giúp công trình hoàn tráng hơn, thu hút ánh nhìn ngay khi chạm mắt tới, đây cũng chính là một nét đặc trưng trong lối thiết kế nhà tân cổ điển. Hệ mái trên tầng 3 là sự kết hợp giữa mái giàn hoa và mái bê tông, 2 mái này giao thoa với nhau, tạo nên một tổng thể thống nhất về kiến trúc và hình khối, các chi tiết phụ làm mềm như: cột ốp, phào chỉ hoa văn, phù điêu, được chúng tôi khéo léo kết hợp, giúp công trình thanh thoát hơn rất nhiều, nếu yêu thích thiết kế nhà này, bạn có thể click vào đây

Ảnh minh họa thiết kế nhà 3 tầng tân cổ điển
Mẫu số 02: Nét đặc trưng trong lôi thiết kế nhà tân cổ điển đó là việc sử dụng vật liệu hiện đại, kết hợp với hệ mái chéo 4 góc, màu sắc sử lý hài hòa, kết hợp giữa vật liệu hiện đại và hình khối truyền thống, tại tầng 1 của thiết kế, chúng tôi sử dụng cửa sổ vách kính rộng và thoáng, màu sắc của tường là màu đậm, gờ phảo chỉ màu trắng tạo điểm nhấn, phần cửa chính sử dụng cửa khuôn gỗ nghiến, cánh lim nam phi với pano gỗ kính. Thiết kế tầng 2 và tầng 3 với lan can bằng kính trong suốt, hệ thống cửa sổ và cửa đi sử dụng nhôm xingfa nhập khẩu, kính dán an toàn 8.38mm giúp công trình mang dáng vẻ hiện đại nhưng vẫn vô cùng chắc chắn và bền với thời gian, thiết kế kiến trúc sử dụng màu trắng chủ đạo, kết hợp với màu xanh của cây, màu đen của hệ khung nhôm, màu xanh thẫm của mái ngói, chỉ từng đấy thôi đã đủ giúp công trình mang dáng dấp hiện đại và cũng không kém phần cổ kính.

Ảnh minh họa thiết kế nhà 3 tầng tân cổ điển 2 mặt tiền
Mẫu số 03: Thiết kế nhà 3 tầng cổ điển với sự kết hợp hài hòa sân vườn cảnh quan xung quanh, phần thiết kế mái là hệ thông 2 mái chồng lên nhau, phần ban công và diềm mái tầng 1 lặp lại các chi tiết mái của tầng 2 và tầng 3, hệ thống cửa sổ và cửa đi mặt tiền sử dụng cửa nhôm xingfa, lan can dùng lan can thép hộp sơn tĩnh điện màu sáng, tại ban công có bố trí trồng cây xanh, tạo cảm giác thư thái cho người sử dụng, các mảng ốp trang trí bằng bê tông giả gỗ tăng thêm sự sang trọng cho công trình. Phần cổng thiết kế theo kiểu hiện đại, bảo vệ chắc chắn, ngăn sự đột nhập từ bên ngoài.

Ảnh minh họa thiết kế nhà 3 tầng mái thái
Chúng tôi hy vọng rằng, với những mẫu thiết kế nhà 3 tầng này, sẽ giúp bạn hiểu kĩ hơn về các loại hình thiết kế kiến trúc, qua đấy giúp bạn lựa chọn được ngôn ngữ thiết kế phù hợp cho riêng mình.
Bảng báo giá thiết kế nhà 3 tầng tại Hà Nội
A. BÁO GIÁ THIẾT KẾ NHÀ 3 TẦNG - PHẦN THIẾT KẾ KIẾN TRÚC--->gọi ngay 0915.9999.25 để biết thêm chi tiết
| I | LOẠI CÔNG TRÌNH |
ĐƠN GIÁ THIẾT KẾ PHẦN KIẾN TRÚC (đ/m2 sàn) |
ĐƠN GIÁ THIẾT KẾ KẾT CẤU, ĐIỆN,NƯỚC, DỰ TOÁN (đ/m2 sàn) |
| 1 | Thiết kế nhà ống 3 tầng 1 măt tiền | 50.000đ | 40.000đ |
| 2 | Thiết kế nhà ống 3 tầng 2 mặt tiền | 60.000đ | 50.000đ |
| 3 | Thiết kế biệt thự 3 tầng 1-2 mặt tiền | 90.000đ | 60.000đ |
| 4 | Thiết kế biệt thự 3 tầng 2-4 mặt tiền | 120.000đ | 60.000đ |
B. BÁO GIÁ THIẾT KẾ NHÀ 3 TẦNG - PHẦN THIẾT KẾ NỘI THẤT--->gọi ngay 0915.9999.25 để biết thêm chi tiết
| I | LOẠI CÔNG TRÌNH |
ĐƠN GIÁ THIẾT KẾ PHẦN PHỐI CẢNH GÓC (đ/m2) |
| 1 | Thiết kế nội thất nhà dân dụng 3 tầng | 90.000đ |
| 2 | Thiết kế nội thất biệt thự hiện đại 3 tầng | 120.000đ |
| 3 | Thiết kế nội thất biệt thự tân cổ điển 3 tầng | 150.000đ |
Hồ sơ thiết kế nhà 3 tầng bao gồm những nội dung sau
1.HỒ SƠ THIẾT KẾ KIẾN TRÚC NHÀ 3 TẦNG
| I | NỘI DUNG HỒ SƠ KĨ THUẬT CHI CÔNG - PHẦN KIẾN TRÚC | GHI CHÚ |
| 1 | Phối cảnh góc tổng thể | Thể hiện góc nhìn từ tren cao, giúp CĐT thấy rõ tổng mặt bằng |
| 2 | Phối cảnh góc các mặt công trình | Thể hiện các góc ảnh 3D ngoại thất |
| 3 | Các mặt bằng - mặt đứng - mặt cắt kiến trúc | Thể hiện chi tiết các kích thước dài, rộng, cao, phục vụ thi công |
| 4 | Mặt bằng bố trí cửa | Thể hiện vị trí cửa |
| 5 | Chi tiết cửa | Thể hiện hình dáng, quy cách cửa, các kích thước cửa theo phong thủy |
| 6 | Mặt bằng lát sàn các tầng | Thể hiện vị trí ốp, lát, màu sắc, kích thước, bề mặt vật liệu gạch ốp lát |
| 7 | Chi tiết lan can | Thể hiện hình dáng, kích thước, vật liệu sử dụng lan can |
| 8 | Chi tiết cầu thang | Thể hiện hình dáng, kích thước, vật liệu sử dụng, theo phong thủy |
| 9 | Chi tiết vệ sinh | Thể hiện kích thước vệ sinh, bố trí thiết bị vệ sinh, thống kê thiết bị vệ sinh |
| 10 | Các chi tiết cấu tạo kiến trúc | Thể hiện các chi tiết kiến trúc như cột, dầm, gờ, ban công, phào chỉ.... |
2.HỒ SƠ THIẾT KẾ KẾT CẤU NHÀ 3 TẦNG, ĐIỆN, CẤP THOÁT NƯỚC, DỰ TOÁN
| I |
NỘI DUNG HỒ SƠ KĨ THUẬT CHI CÔNG - PHẦN KẾT CẤU PHẦN ĐIỆN, CẤP THOÁT NƯỚC, DỰ TOÁN |
GHI CHÚ |
| 1 | Mặt bằng định vị cột | Định vị vị trí các cột trên công trình, số lượng, kích thước cột |
| 2 | Mặt bằng định vị móng | Thể hiện các kích thước móng |
| 3 | Chi tiết dầm móng | Thể hiện kích thước, chủng loại móng |
| 4 | Chi tiết bể phốt, bể nước | Thể hiện kích thước bể phốt bể nước |
| 5 | Mặt bằng kết cấu dầm sàn | Thể hiện kích thước dầm móng |
| 6 | Mặt bằng bố trí thép dầm sàn | Thể hiện quy cách, bố trí sắt thép dầm sàn |
| 7 | Mặt bằng bố trí thép cầu thang | Thể hiện quy cách bố trí thép |
| 8 | Chi tiết cột, dầm, sàn | Thể hiện hình dáng, kích thước, cột, dầm, sàn |
| 9 | Thống kê cốt thép | Thể hiện chi tiết số lượng thép trong công trình |
| 11 | Sơ đồ nguyên lý cấp điện toàn nhà | Thể hiện sơ đồ tổng thể hệ thống cấp điện |
| 12 | Mặt bằng bố trí ổ cắm, chống sét toàn nhà | Thể hiện vị trí ổ cắm, số lượng ổ cắm, chi tiết phần chống sét |
| 13 | Mặt bằng bố trí chiếu sáng | Thể hiện vị trí chiếu sáng, số lượng bóng chiếu sáng, kiểu ánh sáng |
| 14 | Mặt bằng bố trí điều hòa | Thể hiện vị trí điều hòa, công suất điều hòa, |
| 15 | Mặt bằng bố trí Lan/Tel/Tivi/Camera/Âm thanh công cộng | Thể hiện vị trí các mặt ổ Lan/Tel/Tivi/Camera.... |
| 16 | Thống kê vật tư | Thống kê chi tiết chủng loại vật tư tương ứng |
| 17 | Sơ đồ nguyên lý cấp thoát nước toàn nhà | Thể hiện sơ đồ cấp thoát nước toàn nhà |
| 18 | Mặt bằng thoát nước mưa | Thể hiện vị trí các lỗ thoát mưa |
| 19 | Mặt bằng thoát nước vệ sinh | Thể hiện vị trí các lỗ thoát nước thải sinh hoạt |
| 20 | Mặt bằng cấp nước vệ sinh | Thể hiện vị trí các lỗ cấp nước |
| 21 | Chi tiết cấp thoát nước | Thể hiện các thức lắp đặt, quy cách các thiết bị vệ sinh |
| 22 | Thống kê vật tư | Thể hiện chi tiết các loại vật tư về phần cấp thoát nước |
| 23 | Dự toán chi phí công trình (kiến trúc, kết cấu, điện, nước) |
3. HỒ SƠ THIẾT KẾ NÔI THẤT NHÀ 3 TẦNG
| I | NỘI DUNG HỒ SƠ KĨ THUẬT CHI CÔNG - PHẦN NỘI THÁT | GHI CHÚ |
| 1 | Phối cảnh góc tổng thể | Thể hiện góc nhìn từ tren cao, giúp CĐT thấy rõ tổng mặt bằng |
| 2 | Phối cảnh góc từng phòng công năng | Thể hiện các góc ảnh 3D ngoại thất từng phòng công năn |
| 3 | Các chi tiết đồ nội thất | Thể hiện chi tiết các kích thước dài, rộng, cao, phục vụ thi công |
Liên hệ với công ty thiết kế nhà 3 tầng tại Hà Nội
Với hơn 15 năm kinh nghiệm thiết kế cùng hàng trăm công trình thiết kế nhà 3 tầng mỗi năm, chúng tôi luôn nắm bắt xu hướng để mang đến một không gian hiện đại, một căn hộ ưng ý cho mỗi công trình thiết kế, nếu bạn đang có ý định xây dựng nhà 3 tầng, và muốn tham khảo hoặc tư vấn thiết kế nhà 3 tầng, hãy liên hệ ngay với chúng tôi, chắc chắn bạn sẽ hài lòng.
Công ty cổ phần kiến trúc thủ đô
☎️Hotline: 0915.9999.25 (Zalo)
Địa chỉ: số 8/260 Cầu giấy - Hà Nội
Website: kientructhudo.vn
Email: thietke.kttd@gmail.com