1.Sơ bộ về thiết kế nhà 3 tầng 1 tum tại Thanh Trì - Hà Nội.
Chúng Tôi gặp Anh Giang tại 1 chiều cuối tuần, lắng nghe Anh Giang chia sẻ về mong muốn thiết kế nhà 3 tầng 1 tum theo phong cách hiện đại, Công trình thiết kế nhà 3 tầng 1 tum tại Huyện Thanh Trì - Hà Nội, với chiều rộng là 4 mét và chiều sâu là 12.5m, công trình nằm trong ngõ, với nền đất là đất bồi đắp lâu năm.
Yêu cầu thiết kế nhà 3 tầng 1 tum với 1 phòng ngủ dành cho bố mẹ và 02 phòng ngủ dành cho trẻ, phòng ngủ bố mẹ có vệ sinh khép kín, 02 phòng ngủ còn lại làm vệ sinh chung.
Phòng bếp và phòng thờ đặt tại tầng 1, phần trên cùng sẽ là phòng thờ cùng sân phơi
Do nhà trong ngõ nhỏ, nên xe ô tô gửi chung cư bên cạnh, xe máy có thể để ngoài ngõ, tối sẽ dắt vào phòng khách hoặc có thể gửi luôn ở chung cư.

Trao đổi với chủ đầu tư về thiết kế nhà 3 tầng 1 tum
2.Thuyết minh phương án thiết kế nhà 3 tầng 1 tum phong cách hiện đại.
Nắm được những yêu cầu thiết kế nhà của Anh Giang, chúng Tôi đã thiết kế phương án để thỏa mãn yêu cầu của Anh, để Anh có thể dễ hiểu, chúng Tôi làm video thiết kế nhà chia sẻ công năng từng khu vực, mời các bạn theo giõi video sau để biết chi tiết thiết kế nhà 3 tầng 1 tum nhé
Video thuyết minh phương án thiết kế nhà 3 tầng 1 tum
3.Phối cảnh thiết kế nhà 3 tầng 1 tum phong cách hiện đại.
Phối cảnh công trình thiết kế nhà 3 tầng 1 tum được chúng tôi thực hiện sau khi đã thống nhất mặt bằng công năng với Anh Giang.
Mặt đứng công trình thiết kế theo phong cách hiện đại đơn giản, ít gờ phào chỉ, phần tầng 1 được ốp đá đen lịch lãm, phía trước là cửa 2 lớp, với lớp ngoài là cửa cuốn, bên trong là cửa kính.
Thiết kế tầng 2 với ban công thò thụt, một phần đua làm phòng và 1 phần lan can, phía đua ra làm phòng có thụt vào 40cm để trông cây bụi thấp.
Thiết kế tầng 3 chúng tôi bỏ ban công và bồn hoa, đua hết ra làm phòng, vì tầng này bố trí 02 phòng ngủ nên ưu tiên về diện tích, cũng ko có ban công, giúp bảo vệ an toàn hơn cho trẻ nhỏ.
Thiết kế tầng tum được làm nhẹ nhàng bởi khung thép, mục đích sau này anh Giang có thể treo các bồn cây nhỏ, tạo tươi mát cho khoảng sân ngoài trời.
Màu sắc mặt tiền với gam màu trắng tạo điểm nhấn, làn can và cửa khung sắt màu đen sơn tĩnh điện, điểm nhấn công trình là mảng tường ốp tối màu phía ban công, tất cả tạo nên một tổng thể hài hòa trong thiết kế 3 tầng 1 tum phong cách hiện đại.

Phối cảnh thiết kế nhà 3 tầng 1 tum phong cách hiện đại
Phối cảnh góc trên cao trong thiết kế nhà 3 tầng 1 tum cho chúng ta thấy rõ dàng hơn về vật liệu, các bố trí các khoảng thò thụt của ban công và bồn hoa, bố trí khoảng sân cực rộng và thoáng trên tum, với sàn tum được lát gạch conwood giả gỗ, chịu được nắng mưa, có tuổi thọ cao.

Phổi cánh trên cao trong thiết kế nhà 3 tầng 1 tum
Phối cảnh mặt bên kèm các mặt bằng công năng điển hình, giúp Anh Giang cùng đội thợ thi công hiểu chi tiết hơn về ý đồ thiết kế nhà.

Phổi cảnh mặt bên trong thiết kế nhà 3 tầng 1 tum
4.Thiết kế mặt bằng công năng nhà 3 tầng 1 tum
Mặt bằng tầng 1 trong thiết kế nhà 3 tầng 1 tum được bố trí gồm có phòng khách, phòng ăn và bếp, cuối cùng là cầu thang bộ, phía dưới gầm cầu thang được tận dụng làm nhà vệ sinh nhỏ phục vụ nhu cầu chủ yếu của khách.
Thiết kế nội thất phòng khách với diện tích 18m2 bố trí đầy đủ sofa với văng và 2 đôn, đối diện là kệ tivi và tủ giầy, đồ nội thất chủ yêu sử dụng gỗ công nghiệp màu sáng.
Thiết kế nội thất phòng bếp và phòng ăn liên thông phòng khách, giúp người sử dụng có cảm giác rộng thoáng hơn nhiều, việc bố trí này đã phần này ăn gian được diện tích, giúp phòng khách bếp và phòng ăn hòa làm 1
Thiết kế cầu thang tầng 1 lên tầng 2 bao gồm 21 bậc với chiểu rộng mặt bậc là 25cm, chiều cao cổ bậc là 17cm, chiều rộng bản thang là 1m, cầu thang được ốp cổ đá trắng, mặt gỗ lim nam phi, tay vịn gỗ và lan can cầu thang sử dụng lan can kính hiện đại.

Ảnh minh họa thiết kế nhà 3 tầng 1 tum với tầng 1 là phòng khách và bếp
Mặt bằng nội thất tầng 2 trong thiết kế nhà 3 tầng 1 tum đươc bố trí 01 phòng ngủ master cùng vệ sinh khép kín. Thiết kế kế phòng ngủ master bao gồm giường ngủ đôi, bàn phấn kết hợp bàn làm việc, kệ tivi.
Phòng vệ sinh tầng 2 được thiết kế rất rộng với phòng vệ sinh và khu vực thay đồ riêng biệt, đây là kiểu thiết kế nội thất thường thấy trong các khách sạn 5 sao.
Phòng ngủ tầng 2 được bố trí lấy sáng và gió mặt tiền qua logia và hệ cửa sổ khung nhôm kính.
Tầng 2 trong thiết kế nhà 3 tầng 1 tum được thông thoáng hơn nhờ có 02 ô thông tầng tại cầu thang, giúp cho phòng vệ sinh và cầu thang luôn luôn hút gió tươi và có ánh sáng tự nhiên len lỏi vào khắp các không gian sống.

Ảnh minh họa mặt bằng tầng 2 trong thiết kế nhà 3 tầng 1 tum với phòng ngủ master
Mặt bằng nội thất tầng 3 trong thiết kế nhà 3 tầng 1 tum được bố trí 02 phòng ngủ cùng 01 phòng vệ sinh khép kín.
Thiết kế phòng ngủ phía trước nhà có diện tích 16m2 bố trí đầy đủ công năng như giường ngủ đôi, tủ quần áo, bàn học, phòng ngủ này được lấy sáng qua cửa sổ mặt tiền, vật liệu nội thất dùng gỗ công nghiệp màu sáng, sàn phòng ngủ được lát gỗ màu tối, tăng độ tương phản giữa đồ nội thất và sàn, giúp thiết kế trở nên nổi bật hơn.
Thiết kế phòng ngủ phía sau với diện tích 12m2 đảm bảo nhu cầu sử dụng cơ bản, phòng ngủ sau nhà được lấy sáng qua ô thông tầng, giúp đối lưu không khí tốt hơn, rất có lợi cho sức khỏe khi vận hành sử dụng.

Ảnh minh họa mặt bằng tầng 3 trong thiết kế nhà 3 tầng 1 tum với 02 phòng ngủ cùng phòng vệ sinh chung
Mặt bằng nội thất tầng tum trong thiết kế nhà 3 tầng 1 tum được bố trí là nơi tâm linh thờ cúng, phía trước bố trí sân chơi cafe ngoài trời, với sân chơi lên tới gần 30m2 rộng và thoáng, đây sẽ là nơi Anh Giang tổ chức những bữa tiệc ngoài trời cùng gia đình và bạn bè mỗi khi có dịp.

Ảnh minh họa mặt bằng tầng tum trong thiết kế nhà 3 tầng 1 tum với phòng thờ và sân phơi
Mặt đứng công trình trong thiết kế nhà 3 tầng 1 tum thể hiện đầy đủ chi tiết, kích thước chiều cao và chiều rộng, giúp thợ thi công đúng theo ý đồ thiết kế.

Ảnh minh họa chi tiết mặt đứng trong thiết kế nhà 3 tầng 1 tum
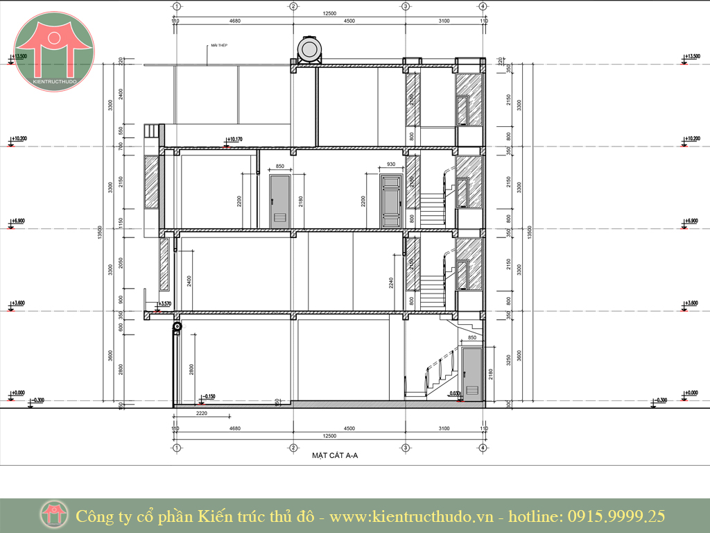
Mặt cắt công trình trong thiết kế nhà 3 tầng 1 tum giúp thợ thi công hiểu rõ các lớp cấu tạo của sàn, chiều cao của các ô của sổ, của logia và ban công, vị trí những ô thông tầng, cách làm cầu thang bộ...

Chi tiết mặt cắt trong thiết kế nhà 3 tầng 1 tum phong cách hiện đại
5.Tổng hợp chi phí thiết kế nhà 3 tầng 1 tum và chi phí thi công xây dựng
Chi phí thiết kế nhà 3 tầng 1 tum được tính như sau:
Chúng Tôi áp dụng đơn giá thiết kế 90.000đ cho mẫu thiết kế nhà ống 1 mặt tiền, với tổng diện tích là 4m x 12.5m x 4t = 18tr đồng
Hồ sơ thiết kế bao gồm 4 phần như sau:
Hồ sơ thiết kế kiến trúc
Hồ sơ thiết kế kết cấu
Hồ sơ thiết kế điện.
Hồ sơ thiết kế cấp thoát nước
Thời gian thiết kế nhà 3 tầng 1 tum của Anh Giang là 20 ngày
Chi phí xây dựng nhà 3 tầng 1 tum được tính như sau:
Chi phí ép cọc bê tông với xử lý nền móng yếu: 60tr
Chi phí phần thô: 200m2 x 3.9tr/m2 = 780tr
Chi phí hoàn thiện: 200m2 x 2.1tr/m2 = 420tr
Chi phí nội thất tầng 1 + 2: 150tr
Tổng cộng: 60tr + 780tr + 420tr +150tr = 1.41 tỉ
Trung bình: 7.05tr/m2 một mét vuông xây dựng có đầy đủ nội thất, một chi phí chấp nhận được trong khu vực Hà Nội
Kết luận:
Với chi phí chỉ 7.05tr một mét vuông hoàn thiện cho mẫu thiết kế nhà 3 tầng 1 tum này, Anh Giang đã sở hữu căn nhà mang phong cách hiện đại với đầy đủ công năng cho 1 gia đình 2 thế hệ, gồm có 03 phòng ngủ, 1 phòng cách cùng bếp
Nếu các bạn đang có ý định xây nhà 3 tầng 1 tum theo phong cách hiện đại, với chi phí vừa phải, thì đây có thể là mẫu nhà dành cho bạn, và nếu bạn cần tư vấn chuyên sâu hơn, hãy liên lạc với Chúng Tôi theo thông tin sau đây:
Thông tin liên hệ
T: 0915 9999 25 (Zalo) - KTS Hiển
W: kientructhudo.vn
E: thietke.kttd@gmail.com
A: 8/260 Cầu Giấy - Hà Nội
Công ty cổ phần Kiến trúc thủ đô
Trân trọng!




