GIỚI THIỆU MẪU THIẾT KẾ BIỆT THỰ HIỆN ĐẠI TẠI HÀ NỘI.
Công trình thiết kế biệt thự hiện đại tại Hà Nội nằm ở Huyện Gia Lâm, chủ đầu tư là Anh Hiển, với mong muốn thiết kế biệt thự dành cho gia đình 2 thế hệ sinh sống bao gồm bố mẹ và con cái, phần diện tích lô đất là 300m2, Anh Hiển muốn thiết kế biệt thự chỉ với 70m2, phần còn lại dành cho sân vườn xung quanh.
Sau khi nắm được yêu cầu cở bản, chúng Tôi có lên thiết kế biệt thư như sau, xin mời các bạn cùng theo dõi.
PHỐI CẢNH THIẾT KẾ BIỆT THỰ HIỆN ĐẠI TẠI HÀ NỘI.
1..Phối cảnh thiết kế biệt thự hiện đại tại Hà Nội với phương án 1.
Với mẫu nhà 5.8x12.2m này, chúng tôi thiết kế biệt thự ngôn ngữ tân cổ điển nhẹ, phần mái sử dụng sạng mái vát cách tân, ,dán ngói màu tối, hệ thống cửa được sử dụng là cửa nhôm hệ, kính an toàn 6.38mm, phần cửa chính bảo vệ dùng cửa gỗ khuôn nghiến, cánh lim nam phi
Phần gờ ban công được đua 20cm so với chu vi nhà, giúp Thiết Kế Biệt Thự 3 tầng thêm nổi bật.
Màu sắc của Thiết Kế Biệt Thự 3 tầng được bố trí hài hòa, sự kết hợp gam màu trắng của tường, điểm nhấn là màu xanh đậm, kết hợp vào đó là hệ thống cây xanh đặt tại các ban công, với việc sử dụng lan can kính hiện đại và trong suốt, tăng khoảng lõm cho Thiết Kế Biệt Thự Hiện Đại, tạo nên công trình đep nhẹ nhàng ngay từ ánh nhìn đầu tiên

Phối cảnh biệt thự hiện đại vói lan can kính.
Tại góc phối cảnh Thiết Kế Biệt Thự 3 Tầng này, cho chúng ta cái nhìn toàn diện của mặt bên công trình, nhẹ nhàng và tinh tế với hệ thống cửa sổ dọc 2 bên tường, giúp lưu thông tối đa gió và sáng tự nhiên, tốt cho sức khỏe và thân thiện môi trường.

Phối cảnh góc nghiêng trong thiết kế biệt thự hiện đại tại Hà Nội.
Góc phối cảnh này cho chúng ta thấy dáng vẻ mặt bên của công trình, hệ thống cửa tại tầng 1 kết nối Thiết Kế Biệt Thự 3 Tầng với ngôi nhà hiện trạng

Phối cảnh góc hướng nhìn từ trái sang phải trong thiết kế biệt thự hiện đại tại Hà Nội.
Phối cảnh góc tổng thể của Thiết Kế Biệt Thự 3 Tầng, giúp chúng ta hình dung tổng thể toàn bộ sự hoành tráng của công trình

Phổi cảnh tổng thể thiết kế biệt thự hiện đại tại Hà Nội.
2.Phối cảnh Thiết kế biệt thự hiện đại tại Hà Nội với phương án 2.
Phối cảnh góc phương án 2 - phương án so sánh, thay đổi lại hệ thống cửa và thay đổi, chuyển từ lan can kính sang lan can sắt mỹ thuật - sắt đặc sơn tĩnh điện màu đen mờ

Phổi cảnh thiết kế biệt thự hiện đại tại Hà Nội - phương án 2.
Phối cảnh góc phương án 2 - phương án so sánh, thay đổi về cửa tầng 1 và vật liệu lan can, ban công

Phối cảnh thiết kế biệt thự hiện đại tại Hà Nội với lan can sắt mỹ thuật.
Phối cảnh góc phương án 2 - phương án so sánh, thay đổi đôi chút về hệ thống cửa và lan can

Phối cảnh thiết kế biệt thự hiện đại tại Hà Nội - phương án 2, mặt chính diện.
Phối cảnh góc phương án 2 - phương án so sánh, thay đổi vật liệu lan can và cửa chính tầng 1

Phối cảnh thiết kế biệt thự hiện đại tại Hà Nội phương án 2, hướng nhìn từ trái sang phải.
3.Thiết kế biệt thự hiện đại tại Hà Nội với bố trí mặt bằng tầng 1.
Mặt bằng tầng 1, bố trí 01 phòng khách và phòng bếp cùng 01 vệ sinh khép kín, cầu thang 21 bậc, chiều lên ngược chiều kim đồng hồ, tại phòng bếp có bố trí 01 cửa ngách, đảm bảo sự riêng tư cho người sử dụng, phần cửa này cũng là lối giao thông chính kết nối Biệt Thự 3 Tầng với khu nhà hiện trạng

Mặt bằng tầng 1 với bố trí bếp và phòng khách hiện đại.
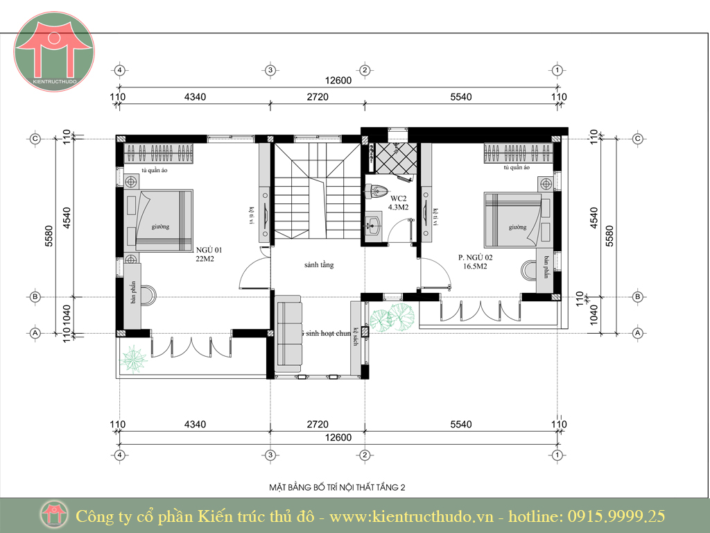
4.Mặt bằng tầng 2 trong thiết kế biệt thự hiện đại tại Hà Nội.
Mặt bằng tầng 2 được bố trí 01 phòng ngủ với vệ sinh chung, đối diện cầu thang lên, chúng tôi bố trí 01 phòng sinh hoạt chung, tạo không gian gần gũi cho các thành viên trong gia đình, với hệ thống cửa sổ tại tất cả các phòng, đảm bảo liên thông ánh sáng và gió tự nhiên, tốt cho sức khỏe, tiết kiệm điện năng và thân thiện môi trường.

Mặt bằng tầng 2 bố trí 2 phòng ngủ, phòng vệ sinh chung và khu vệ sinh.
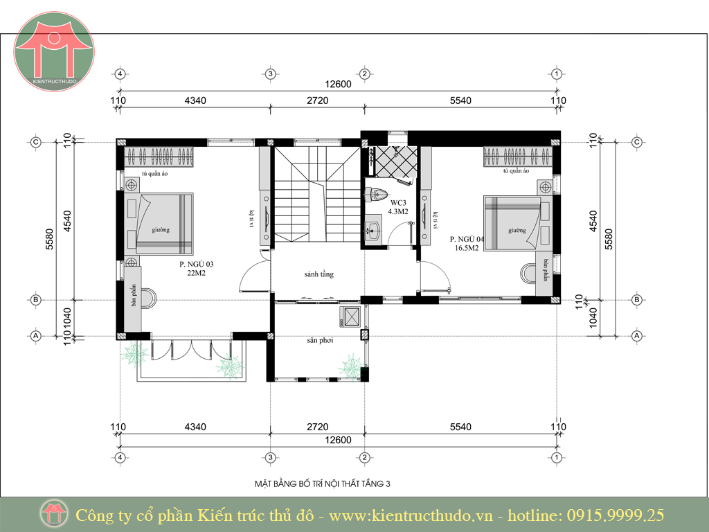
5.Mặt bằng tầng 3 trong thiết kế biệt thự Hiện Đại Tại Hà Nội.
Mặt bằng tầng 3 được bố trí 02 phòng ngủ và vệ sinh chung, đối diện cầu thang là khu giặt phơi, lưu ý, với việc Anh Hiển có phòng thờ tại nhà cổ, nên tại đây sẽ không bố trí phòng thờ, nếu bạn đọc đến đây, bạn muốn có phòng thờ thì có thể biến phòng ngủ phía trước (trên phòng khách) làm phòng thờ bạn nhé

Mặt bằng tầng 3 với bố trí 2 phòng ngủ cùng phòng giặt và sân phơi phía trước.
6.Mặt bằng mái trong thiết kế biệt thự hiện đại tại Hà Nội.
Mặt bằng mái được đổ bê tông, dán ngói màu tối, phía trên bố trí thái dương năng và bình nước nóng phụ (bồn nước chính đặt trong mái tum) giúp bảo vệ nhiệt độ của bồn nước vào mùa hè, giúp Anh Hiển luôn có nguồn nước mát ngay cả khi thời tiết lên tới 38 độ

Mái thiết kế phong cách tân cổ điển, phía trên bố trí téc nước.
Hiện trạng công trình - giai đoạn thi công móng, chụp ảnh với Anh Chủ đầu tư vui tính, cảm ơn Anh đã tin tưởng để Kiến trúc thủ đô có được Thiết Kế Biệt Thự 3 Tầng đẹp
Chúc Anh và gia đình sức khỏe, thành công, phát tài phát lộc

BÁO GIÁ THIẾT KẾ BIỆT THỰ HIỆN ĐẠI TẠI HÀ NỘI.
1.Bảng báo giá thiết kế biệt thự hiện đại tại Hà Nội mới nhất.
Chúng Tôi xin gửi đến các bạn thảm khảo đơn giá thiết kế biệt thự hiện đại của công ty Kiến trúc thủ đô.
| STT |
LOẠI CÔNG TRÌNH THIẾT KẾ |
ĐƠN GIÁ THIẾT KẾ KIẾN TRÚC (Tính theo mét vuông sàn) |
ĐƠN GIÁ THIẾT KẾ KẾT CẤU, ĐIỆN, NƯỚC (Tính theo mét vuông sàn) |
|---|---|---|---|
| 1 | Thiết kế nhà hiện đại, nhà ống 1 mặt tiền | 50.000đ | 40.000đ |
| 2 | Thiết kế nhà hiện đại, nhà ống 2 mặt tiền | 60.000đ | 50.000đ |
| 3 | Thiết kế nhà mái thái 1 mặt tiền | 90.000đ | 60.000đ |
| 4 | Thiết kế nhà mái thái trên 2 mặt tiền | 120.000đ | 60.000đ |
| 5 | Thiết kế nhà tân cổ điển 1 mặt tiền | 90.000đ | 60.000đ |
| 6 | Thiết kế nhà tân cổ điển trên 2 mặt tiền | 120.000đ | 60.000đ |
- Tổng diện tích sàn < 100m2 ----> Đơn giá thiết kế tăng thêm 50%;
- Tổng diện tích sàn từ 100m2 đến 180m2, đơn giá thiết kế tăng thêm 20%;
- Tổng diện tích sàn trên 400m2 đơn giá thiết kế giảm 10%;
- Giảm giá 30% đối với phần kiến trúc, hoặc kết cấu, hoặc điện, hoặc nước trong trường hợp có các tầng giống nhau;
2.Hồ sơ thiết kế biệt thự hiện đại tại Hà Nội bao gồm:
Hồ sơ thiết kế biệt thự hiện đại của công ty Kiến trúc thủ đô bao gồm 4 phần
Phần thiết kế kiến trúc - thể hiện đẩy đủ các bản vẽ mặt bằng, mặt đứng, mặt cắt, các chi tiết thang, chi tiết vệ sinh, giúp thợ đọc bản vẽ và thi công đúng ý đồ thiết kế
Phần thiết kế kết cấu: thể hiện đầy đủ các phần kết cấu móng, cột, dầm, sàn, các cấu kiện kết cấu, đường kính chủng loại thép...
Phần thiết kế điện: thể hiện đầy đủ các phần ổ cắm, chiếu sáng, điều hòa, Lan/tel/tivi...
Phần thiết kế cấp thoát nước: thể hiện các vị trí đấu nối hệ thống cấp thoát nước, cùng các chi tiết kĩ thuật thi công hệ thống cấp thoát nước
3.Thời gian thiết kế biệt thự hiện đại tại Hà Nội bao gồm:
Thơi gian thiết kế hồ sơ từ 20 đến 25 ngày làm việc, đối với các công trình thiết kế biệt thự hiện đại 1 mặt tiền từ 1 đến 3 tầng
Thời gian thiết kế từ 25 đến 50 ngày làm việc, đối với thiết kế biệt thự hiện đại 2 đến 3 mặt tiền.
Trường hợp các bạn cần đẩy nhanh tiến độ, sau khi chốt mặt bằng công năng, bên thiết sẽ tiền hành thiết kế kết cấu móng phục vụ thi công, thời gian thiết kế móng từ 1-2 ngày, sau khi có thiết kế móng, bên Chủ đầu tư có thể thi công được luôn mà chưa cần đến toàn bộ hồ sơ thiết kế
4.Trách nhiệm của đơn vị thiết kế biệt thự hiện đại tại Hà Nội như nào.
Đối với trách nhiệm thiết kế biệt thự hiện đại tại Hà Nội. bên thiết kế sẽ cử cán bộ kĩ thuật có năng lực, nhiều kinh nghiệm giám sát trực tiếp mỗi lần đổ bê tông, đảm bảo tính ổn định chắc chắn, đúng bản vẽ của phần kết cấu cũng như phần hệ thống chờ của điện và nước.
5.Quy trình thiết kế biệt thự hiện đại tại Hà Nội cụ thể như thế nào?
- Lắng nghe mong muốn của chủ đầu tư
- Dựa vào lô và yêu cầu thiết kế, bên đơn vị thiết kế sẽ tiến hành thiết kế mặt bằng công năng và tư vấn để phù hợp với chủ đầu tư
- Thống nhất phương án mặt bằng thiết kế, triển khai thiết kế 3D ngoại thất công trình
- Chỉnh sửa lại mặt bằng theo phối cảnh hoặc chỉnh sửa phối cảnh thật ưng ý, chốt mặt bằng và chốt phối cảnh
- Triển khai hồ sơ bản vẽ thi công dựa trên mặt bằng và phối cảnh đã chốt
- Bàn giao hồ sơ sau khi hoàn thành bản vẽ kĩ thuật thi công
- Giải đáp thắc mắc trực tiếp hoặc online trong quá trình thi công
- Giám sát những hạng mục quan trọng trong quá trình thi công
Giới thiệu công ty thiết kế biệt thự hiện đại tại Hà Nội uy tín.
Công ty Kiến trúc thủ đô là một công ty tư vấn thiết kế hàng đầu, với nhiều năm kinh nghiệm thiết kế nhà đẹp, có địa chỉ văn phòng tại 8/260 Cầu giấy - Hà Nội, một nơi để bạn đặt trọn niềm tin cho căn hộ của mình, nếu bạn cần tư vấn thiết kế nhà đẹp, hãy liên hệ hotline 0915.9999.25 nhé







