Mô tả sơ bộ về thiết kế nhà 3 tầng tại Lạng Sơn.
Chúng Tôi gặp Anh Hồng và một buổi chiều cuối tuần, lắng nghe Anh chia sẻ về dự định thiết kế nhà tại Lạng Sơn, lô đất thiết kế có chiều dài 5m và sâu 25m, với mong muốn thiết kế nhà dành cho 3 thế hệ sinh sống, thiết kế nhà theo phong cách hiện đại.
Tầng 1 bố trí với phòng khách rộng cùng bếp chính và bếp phụ, tầng 2 thiết kế phòng ngủ cho ông bà và bố mẹ, có phòng sinh hoạt chung gia đình, trên tầng 3 thiết kế phòng ngủ dành cho các con, tầng tum sẽ thiết kế gồm có phòng thờ và sân phơi.
Sau khi lắng nghe những yêu cầu thiết kế nhà của Anh Hồng, chúng Tôi đã nghiên cứu và lên phương án thiết kế nhà như sau, xin mời các bạn cùng xem
Yêu cầu: Thiết kế nhà 3 tầng 1 tum theo phong cách hiện đại được chúng Tôi thể hiện với đường nét đơn giản, hình khối vuông vức, ban công phào chỉ nhẹ nhàng, màu sắc tươi sáng.

Ảnh minh họa phối cảnh thiết kế nhà 3 tầng tại Lạng Sơn
Phối cảnh thiết kế nhà tại Lạng Sơn phong cách hiện đại.
Với yêu cầu thiết kế nhà 3 tầng phong cách hiện đại, ở phần mặt đứng chính, chung tôi sử dụng các mảng màu có độ tương phản cao, kết hợp hình khối mạnh mẽ sáng tạo, đan xen vào nhau, kết hợp các loại vật liệu hiện đại, tăng vẻ hào nhoáng cho công trình, khối đế được thiết kế vững chắc, các mảng tường ốp đá đen tự nhiên, phần thân sẽ nhẹ nhàng vơi với điểm nhấn là lan can sắt dẹt, hệ lam thep hộp chạy từ tầng 2 lên tầng tum làm điểm nhấn thông suốt cho cả công trình, phần mới với hệ giàn hoa nhẹ, tạo sự thanh thoát và hút gió, đưa không khí lưu thông xuống các tầng bên dưới

Ảnh minh họa phối cảnh thiết kế nhà 3 tầng phong cách hiện đại
Thiết kế nhà tại Lạng sơn với lan can sắt mỹ thuật.
Để thiết kế nhà 3 tầng theo phong cách hiện đại thì việc đưa phần lan can xi măng kết hợp với lan can sắt mỹ thuật là điều nên làm, với chi phí tương đối thấp, tính theo kg, chỉ khoảng 28 đến 50k/kg, tổng phần chi phí lan can khoảng 10tr, chúng tôi đã tạo nên một thể thống nhất hài hòa cho toàn bộ công trình, giúp công trình đơn giản mà đẹp.

Ảnh minh họa phối cảnh thiết kế nhà 3 tầng với lan can sắt mỹ thuật
Phối cảnh tổng thể thiết kế nhà tại Lạng Sơn.
Với phối cảnh góc trên cao trong thiết kế nhà 3 tầng, chúng tôi đã giúp anh chủ nhà có cái nhìn tổng thể toàn bộ công trình, từ phần bố trí hệ thống kĩ thuật trên mái đến khoảng sân rộng để xe trước nhà, hệ thông lan can, bồn cây, các chi tiết tiểu cảnh làm nhẹ công trình, qua đấy quyết định lựa chọn tiến hành triển khai các giai đoạn thiết kế hồ sơ 2D chi tiết công trình

Ảnh minh họa phối cảnh tổng thể thiết kế nhà 3 tầng
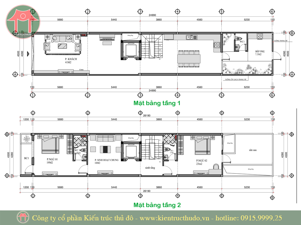
Mặt bằng tầng 1 và tầng 2 trong thiết kế nhà tại Lạng Sơn.
Với yêu cầu thiết kế kiến trúc nhà 3 tầng hiện đại, tại tầng 1 chúng tôi bố trí khoảng sân rộng để xe, tiếp đến là sảnh chính, bước lên 3 bậc sẽ đến phòng khách, đi qua phòng khách là cầu thang máy và cầu thang bộ, phía trong là khu bếp rộng dành cho cả gia đình, việc chiều dài lên tới 25m, nên chúng tôi bố trí khu phụ và bếp phụ sau nhà, bếp này sẽ là nơi sơ chế các món ăn phức tạp, phục vụ những dịp lễ tết hay sự việc liên quan gia đình, phần này bố trí sân vườn liên thông không khi, giúp thoáng mát cho người sử dụng

Ảnh minh họa thiết kế mặt bằng công năng tầng 1 và tầng 2
Phần cầu thang máy làm giao thông trục đứng, vận chuyển con người lên tầng 2, cầu thang máy có kích thước thông thủy 1.6x1.8m với cửa thang máy rộng 80cm đảm bảo vận chuyển đồ cồng kềnh. Thiết kế nhà 3 tầng với tầng 2 bố trí 2 phòng ngủ có vệ sinh khép kín cùng 01 phòng sinh hoạt chung, phòng ngủ trước nhà được thiết kế với hệ ban công đua 1m lấy gió và ánh sang, phòng ngủ sau nhà được bố trí làm khoảng sân rộng thoải mái sáng tác các ý tưởng hoặc làm nơi trồng cây, tập thể dục, đọc sách...
Mặt bằng tầng 3 và tầng tum trong thiết kế nhà tại Lạng Sơn.
Mặt bằng tầng 3 được bố 02 phòng ngủ, trong đấy có 1 phòng ngủ master với diện tích lên với 25m2 sử dụng, nhà vệ sinh rộng 5.6m2 có phòng thay đồ riêng biệt, phòng thay đồ có mở ô thông tầng sau thang máy, giúp lưu thông không khí cho căn phòng, phòng ngủ master được bố trí cơ bản như giường ngủ 2x2.2m cao 42cm, bàn làm việc kết hợp bàn phấn, đối diện giường là kệ tivi. phòng vệ sinh được thiết kế bồn tắm cùng vách tắm kính, giúp anh Hồng có thể thư giãn mỗi khi ngâm mình trong bồn nước, tái tạo sức lao động sau những lúc làm việc mệt mỏi

Ảnh minh họa thiết kế mặt bằng công năng tầng 3 và tầng tum
Tầng tum được thiết kế phòng thờ, phòng giặt phía sau và phần sân chơi phía trước, phần sân chơi này được bố trí hệ lam bê tông trên mái kết hợp với hệ cây xanh tại ban công trước và cạnh nhà, giúp chủ nhà có thể ngồi uống nước và đàm đạo mỗi lần lên hương khói cho tổ tiên
Mặt đứng trong thiết kế nhà tại Lạng Sơn.
Từ phối cảnh đã được duyệt, chung Tôi triển khai các chi tiết 2D giúp thợ có thể hiểu và thi công theo đúng bản vẽ, trong bản vẽ có thể hiện đầy đủ về chiều cao, với tầng 1 là 3.6m các tầng còn lại là 3.3m, chiều cao ban công và chiều cao cửa cũng được thể hiện trong bản vẽ này

Ảnh minh họa bản vẽ 2D chi tiết mặt đứng chính
Mặt cắt ngang trong thiết kế nhà tại Lạng Sơn.
Với bản vẽ 2D mặt cắt trong thiết kế nhà 3 tầng, chúng Tôi thể hiện chi tiết các lớp vật liệu, các cấu kiện công trình như cột, dầm, sàn, cầu thang bộ, cầu thang máy, các chi tiết ban công logia mặt trước, hệ thống bếp phụ và ô thông tầng sau nhà

Ảnh minh họa bản vẽ 2D chi tiết mặt cắt công trình
Nội thất phòng khách trong thiết kế nhà tại Lạng Sơn.
Phần thiết kế nội thất phòng khách chúng Tôi sử dụng những vật liệu hiện đại, gỗ được làm bằng gỗ công nghiệp, sofa là sự kết hợp giữa da và gỗ, kệ tivi làm bằng gỗ công nghiệp kích thước rộng 3m sâu 35cm, sau kệ tivi là mảng ốp gỗ kết hợp PVC giả đá, tạo vẻ hào nhoáng sang trọng, phần trần được thiết kế thạch cao trắng, kết hợp đèn thả vòng tròn ánh sang vàng, giúp không gian nhẹ nhàng mà sang trọng, phần sàn nhà trong thiết kế phòng khách được lát gạch giả đá kích thước 800x800 men bóng, hài hòa với tổng thể công trình.

Ảnh minh họa nội thất phòng khách trong thiết kế nhà 3 tầng
Nội thất phòng bếp trong thiết kế nhà tại Lạng Sơn.
Thiết kế nội thất phòng bếp hiên đại bằng gỗ công nghiệp, tủ bếp đầy đủ công năng như lò nướng, lò vi sóng, giá rao thớt, ngăn giữa tủ trên và tủ dưới là kính màu vàng chanh, hệ bàn ăn bằng gỗ công nghiệp dành cho cả gia đình có kích thước rộng 80cm và dài 2.5m phục vụ cho 10 người, màu sắc trang nhã hiện đại, phần trần thạch cao được làm đơn giản tương đồng phòng khách, ánh sáng dùng ánh sáng vàng nhạt, kết hợp tường sơn trắng, tạo nên thể thống nhất với thiết kế phòng khách

Ảnh minh họa nội thất phòng bếp trong thiết kế nhà 3 tầng hiện đại
Thiết kế nhà tại Lạng Sơn với không gian bếp liên thông sân vườn.
Góc phối cảnh phòng bếp này giúp Anh Hồng hiểu rõ hơn về thiết kế, bếp được liên thông với khu sân sau nhà, được ngăn cách bởi hệ cửa kính khung thép sơn đen, kính an toàn 8.38mm màu trắng

Ảnh minh họa nội thất phòng bếp liên thông phòng khách
Thiết kế nhà tại Lạng Sơn nhiều cây xanh.
Phần sân vườn sau nhà được thiết kế với bếp phụ, lối đi được lát đá phiến và trồng cỏ nhật xen giữa, tạo cảm giác nhẹ nhàng và gần gũi thiên nhiên, mảng tường rào ốp đá xẻ, có trồng hệ cây len tường, tạo nên một khu vườn trên tường đối diện bếp, giúp lọc sạch không khí mỗi khi tổ chức nấu nướng ngoài trời, không để mùi thức ăn ám vào đồ và bay vào các phòng chức năng cũng như quẩn lên trên tầng 2 và tầng 3

Ảnh minh họa thiết kế sân vườn cho nhà 3 tầng
Để có một thiết kế nhà 3 tầng hiện đại đơn giản là điều không khó, cái chính là bạn cần xác định được các công năng cơ bản và chuẩn bị tốt về tài chính và thời gian, ngoài các thiết kế nhà tại Lạng Sơn, chúng Tôi còn thiết kế nhà tại các tỉnh thành khác như thiết kế nhà tại Hà Nội, Hải Dương, Hưng Yên, Nam Định, Ninh Bình, Thái Bình, Vĩnh Phúc, các quận nội thành Hà Nội như Quận Hai Bà Trưng, Quận Nam Từ Liêm, Quận Bắc Từ Liêm v..v.. nếu bạn cần tư vấn về thiết kế nhà, hãy gọi cho Chúng Tôi theo thông tin sau:
CÔNG TY CỔ PHẦN KIẾN TRÚC THỦ ĐÔ
T: 0915 9999 25 (Zalo)
W: kientructhudo.vn
E: thietke.kttd@gmail.com
A: 8/260 Cầu Giấy - Hà Nội
							
						
