5 điều cần biết trước khi thiết kế nhà
Bạn chuẩn bị xây nhà và muốn tìm thiết kế nhà phù hợp với nhu cầu của bạn
Bạn không biết bắt đầu từ đâu, bắt đầu như thế nào
5 điều này sẽ giúp bạn xác định và hiểu rõ hơn về công tác chuẩn bị trước khi thiết kế nhà
1.Thiết kế nhà hợp hướng phong thủy
Bạn cần xác định hướng chính cho công trình, hướng nhà rất quan trọng, nhất vị nhì hướng bạn nhé, hướng nhà liên quan đến tuổi của gia chủ, liên quan đến các phòng chức năng như bếp, phòng thờ, phòng ngủ, nhà vệ sinh, cầu thang....

Ảnh minh họa: thiết kế nhà theo phong thủy
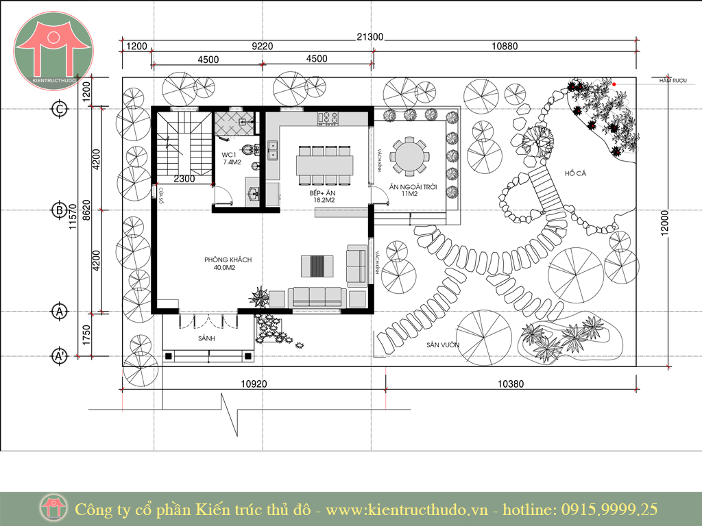
2.Thiết kế nhà phù hợp công năng chính cho công trình
Xác định công năng chính cho ngôi nhà của bạn, về số lượng phòng ngủ, các phòng chức năng như bếp, phòng khách, phòng thờ, vệ sinh, ban công, lô gia, phòng sinh hoạt chung...sắp xếp các phòng trên cùng mặt bằng (đối với nhà 1 tầng) hoặc trên từng tầng (đối với nhà nhiều tầng)

Ảnh minh họa: thiết kế mặt bằng công năng tầng 1
3.Lựa chọn ngôn ngữ thiết kế nhà bạn muốn
Thiết kế kiến trúc, ngôn ngữ cho công trình, thiết kế mặt đứng, bộ mặt cho ngôi nhà của bạn, đầu tiên, bạn cần xác định ngôn ngữ kiến trúc cho căn hộ của bạn, là hiện đại, tân cổ điển hay nhà mái thái, việc này rất quan trọng, liên quan đến tỉ lệ và chiều cao của ngôi nhà, đối với nhà Hiện đại, bạn cần tạo ra hình khối nổi bật, tạo khoảng lồi khoảng lõm cho công trình
Xong phần hình khối cơ bản, bạn cần phối màu sắc sao cho hài hòa, có điểm nhấn, không nên có tối đa 3 màu cho công trình
Đầu tiên, xác định màu chủ đạo, thường là màu trắng hoặc vàng nhạt của căn hộ
Tiếp đến là màu điểm nhấn của hình khối, thường nên chọn hợp với mệnh phong thủy của bạn
Cuối cùng là màu xanh của cây (nên đưa những khoảng xanh vào công trình, tại bạn công, bồn hòa...) đan xen với đó là màu sắc của bộ phận công trình như: màu đen của sắt, của cửa nhôm, của inox, của gỗ, tùy vào ngôn ngữ kiến trúc mà phối màu sao cho phù hợp, xin nhắc lại lần nữa là không nên quá 3 màu cho căn hộ bạn nhé
Bạn cũng cần thiết kế nội thất cho phù hợp với ngoại thất, để căn hộ của bạn đẹp từ ngoài vào trong nhé

Ảnh minh họa ngôn ngữ thiết kế nhà 2 tầng kiểu biệt thự
4.Xác định chi phí trong thiết kế nhà
Xác định chi phí xây dựng, việc này quyết định đến, thông thường giá xây dựng trọn gói từ 5.0tr/m2 đến 5.9tr/m2, bạn nên căn cứ vào nhu cầu của mình để chuẩn bị kinh phí phù hợp, tránh việc phải đau đầu vất vả vì không làm chủ được tài chính trong xây dựng
5.Lựa chọn nhà thầu thi công thiết kế nhà của bạn
Xác định nhà thầu thi công hoặc hình thưc thi công, đối với nhà thầu thi công, nên lựa chọn đội thợ có tay nghề cao, biết đọc bản vẽ thành thạo, có nhiều kinh nghiệm thi công những công trình dạng tương tự, tốt nhất nên lựa chọn 3 nhà thầu, và tìm ra nhà thầu ưng ý nhất (về chất lượng, sau đấy là chi phí nha)
Đối với hình thức thí công: nếu bạn là người bận rộn, hình thức thi công trọn gói sẽ phù hợp với bạn, hãy để người có chuyên môn làm việc của họ bạn nhé
OK, trên đây là 5 điều cơ bản trước khi thiết kế nhà bạn nên biết, hy vọng những điều trên sẽ giúp ích cho bạn trong việc thiết kế nhà, và nếu bạn vẫn chưa nắm vững thì đây sẽ là cơ hội tuyệt vời dành cho bạn, chúng tôi sẵn sàng lắng nghe và đi cùng bạn suốt quá trình thiết kế thi công căn hộ của bạn
Công ty cổ phần Kiến trúc thủ đô,với trên 15 năm kinh nghiệm thiết kế nhà tại Hà Nội
Hơn +100 công trình thiết kế nhà mỗi năm
Với đội kiến trúc sư nhiều năm kinh nghiệm
Am hiểu nhiều ngôn ngữ thiết kế, từ hiện đại đến tân cổ điển
Chúng tôi ở đây để tư vấn giúp đỡ bạn
Giúp đỡ bạn tiết kiệm thời gian
Giúp bạn lựa chọn mặt bằng công năng
Giúp bạn lựa chọn ngôn ngữ thiết kế
Giúp bạn lựa chọn vật liệu hoàn thiện
Giúp bạn lựa chọn nội thất
Với 03 gói tư vấn thiết kế nhà từ cơ bản đến nâng cao, chắc chắn bạn sẽ hài lòng
Gói tiết kiệm: chỉ với 99k/m2
Hồ sơ bao gồm: 3D ngoại thất + kiến trúc + kết cấu
Gói cơ bản: chỉ với 139k/m2
Hồ sơ bao gồm: 3D ngoạt thất + kiến trúc + kết cấu + điện + cấp thoát nước + dự toán chi tiết công trình
Gói cao cấp: chỉ với 199k/m2
Hồ sơ bao gồm: 3D ngoại thất, 3D nội thất + kiến trúc + kết cấu + điện + cấp thoát nước + dự toán chi tiết công trình
Tặng ngay gói hồ sơ xin cấp phép xây dựng miễn phí, áp dụng cho tất cả các gói
Giảm thêm 3% khi kí hợp đồng trực tiếp tại công ty
Giảm 50% thiết kế khi thi công nội thất
Giảm 99% thiết kế khi thi công trọn gói
Giám sát đến khi công trình đi vào sử dụng
Cam kết 100% hài lòng
Hãy đăng kí ngay hôm nay để hưởng những ưu đãi tốt nhất
Thông tin liên hệ
Công ty cổ phần kiến trúc thủ đô
☎️Hotline: 0915.9999.25 (Zalo)
Địa chỉ: số 8/260 Cầu giấy - Hà Nội
Website: kientructhudo.vn
Email: thietke.kttd@gmail.com
