LƯU Ý KHI THIẾT KẾ NHÀ TẠI HÀ ĐÔNG - HÀ NỘI.
1.Lưu ý xin cấp phép xây dựng.
Trước khi tiến hành thiết kế nhà tại Quận Hà Đông - Hà Nội, bạn cần chú ý đến việc lập hồ sơ xin cấp phép xây dựng, theo đúng yêu cầu của luật xây dựng ban hành, bạn cần lên phòng quản lý đô thị để hỏi về các thông tin như chỉ giới xây dựng, về chiều cao tầng, về số tầng được xây dựng.
Sau khi có các thông số cơ bản, bạn sẽ cần thiết kế hồ sơ xin phép theo luật, và tiến hành song song thiết kế bộ hồ sơ bản vẽ thi công theo nhu cầu sử dụng thực tế.
2.Lưu ý về nền đất trước khi tiến hành thiết kế nhà.
Nền đất rất quan trọng, sẽ quyết định tương đối đến khả năng chi phí của bạn, nếu nền đất là đất liền thổ, móng có thể dùng móng nông, sẽ giảm thiểu rất nhiều đến kinh phí, còn đối với nền đất yếu, phải gia cố bằng cọc tre hoặc cọc bê tông cốt thép, sẽ tốn kếm nhiều đến kinh phí xây dựng sau này, chưa kể đến việc nền đất yếu, nên sẽ làm giải pháp chống đỡ trong lúc đào móng đối với các công trình lân cận tốn kém, đôi khi gây lún nứt nhà hàng xóm xung quanh.
Nếu là đất liền thổ, xung quanh có nhiều cây cối bờ bụi, bạn còn phải lưu ý đến việc chống mối trong và ngoài công trình, giúp công trình vận hành đảm bảo nhiều năm, tránh mối tối đa cho công trình.
3.Lưu ý các yêu tố cấu thành chi phí xây dựng nhà.
Nếu nhà bạn có nằm trong ngõ nhỏ, chi phí sẽ đội lên nhiều do việc tăng giá nhân công xây dựng, vận chuyển vật liệu cũng chỉ trở được xe nhỏ, chi phí giá thành sẽ cao hơn xe lớn, chưa kể việc thất thoát dơi vãi vật liệu mỗi lần vận chuyển, ngoài ra còn nhiều yếu tố khác làm ảnh hưởng đến giá thành xây dựng như: nhà có thang máy, nhà bố trí lệch tầng, nhà có nhiều phòng ngủ, không gian chia cắt nhiều....
MẪU THIẾT KẾ NHÀ ĐẸP TẠI QUẬN HÀ ĐÔNG - HÀ NỘI.
Quận Hà Đông thuộc Hà Nội có rất nhiều thiết kế nhà đẹp, đa phần là những ngôi nhà phố với 1 mặt tiền trật hẹp, để sở hữa một ngôi nhà đẹp, với tiện nghi hiện đại là điều không hề dễ dàng, và để có lô đất rộng, thiết kế nhà dành cho 2 đến 3 thế hệ và điều vô cùng khó khăn, không phải ai cũng có điều kiện sở hữa, mẫu thiết kế nhà đẹp tại Quận Hà Đông mà chúng Tôi giới thiệu sau đây nằm trong số đó.
Chủ đầu tư là Anh Thắng, với lô đất lên 261m2, có chiều rộng là 9m và chiều sâu là 29m, kích thước thiết kế mong muốn là 9x14m.
Anh Thắng mong muốn thiết kế nhà 2 tầng dành cho 3 thế hệ sinh sống, gồm có cụ, ông bà, anh Thắng cùng vợ, với 2 cháu nhỏ 1 trai và 1 gái, Anh muốn thiết kế không gian vừa chung lại vừa riêng, tầng 1 dành cho cả gia đình, còn tầng 2 chỉ dành cho vợ chồng cùng các con sinh sống, yêu cầu tấng 1 có 2 phòng ngủ cùng bếp và phòng khách rộng và thoáng, tầng 2 thiết kế 3 phòng ngủ cùng phòng sinh hoạt chung.
Dựa vào những yêu cầu của Anh Thắng, chúng Tôi có đưa ra các phương án thiết kế nhà như sau, xin mời các bạn cùng xem.
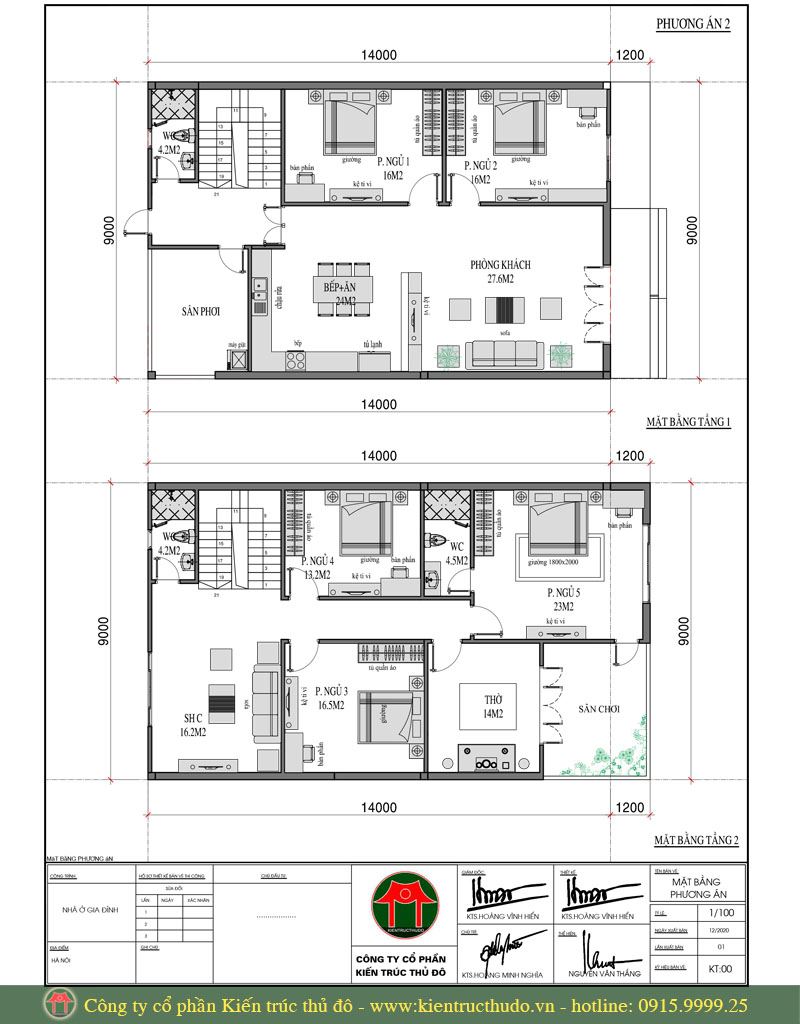
1.Phương án thiết kế nhà 2 tầng cầu thang giữa.
Thiết kế nhà 2 tầng dành cho gia đình 3 thế hệ với cầu thang ở giữa, tầng 1 bố trí bếp, phòng ăn và phòng khách liên thông nhau, diện tích thông thoáng, lên tới gần 50m2, bước vào sảnh chính sẽ là 1 không gian vô cùng rộng và thoáng.
Tầng 1 có thiết kế với 2 phòng ngủ dành cho ông bà và cho cụ, cầu thang từ tầng 1 lên tầng 2 bố trí ngược chiều kim đồng hồ, với 21 bậc thang, mặt bậc rộng 25cm và chiều cao cổ bậc là 17cm.
Tầng 1 có 1 nhà vệ sinh khép kín, với đầy đủ lavabo, vách tắm kính cùng xí bệt, với diện tích lên với 4.2m2 đảm bảo sinh hoạt gia đình.
Tầng 1 có thiết kế sân giặt và phơi phía sau nhà, tại đây có bố trí cửa thoáng lưu thông không khí với trong nhà
Phần không gian sau nhà được kết nối thông qua 1 cửa đi tại hành lang, với kích thước cửa rộng 90cm.

Ảnh minh họa phương án cầu thang giữa bố trí đối xưng.
Với diện tích sàn tầng 1 là 126m2 bố trí công năng như một căn hộ khép kín dành cho gia đình sinh hoạt, phòng khách và bếp rất rộng, phòng ngủ lên tới 16m2 có bố trí đầy đủ giường, tủ quần áo âm tường, bàn học và kệ tivi liên tường.
Tầng 2 được thiết kế với 3 phòng ngủ, trong đấy 1 phòng ngủ bố mẹ phía trước có vệ sinh khép kín, 2 phòng ngủ còn lại dùng chung nhà vệ sinh.
Bước lên tầng 2 sẽ là khoảng không gian mở, nơi đây chúng Tôi thiết kế 1 phòng sinh hoạt chung rộng và thoáng, đây sẽ là nơi cả gia đình hàn huyên chia sẻ câu chuyện, tránh ảnh hưởng không gian tầng 1.
Thiết kế phòng thờ rộng 14m2 với khoảng sân vườn phía trước, đây sẽ là sân chơi phụ có mái che, gia chủ có thể ngồi uống nước, hóa vàng, hoặc ngồi thư thái đọc sách, chờ đợi mỗi lần lên hương khói cho tổ tiên.
Với phương án này, mọi thứ sắp xếp gọn gàng tỉ mỉ, một phương án quá tốt cho gia đình 2 thế hệ sinh sống với 5 phòng ngủ vô cùng rộng dãi và đẩy đủ tiện nghi.
2.Phương án thiết kế nhà 2 tầng với cầu thang phía sau.
Ở phương án thiết kế nhà tại Quận Hà Đông này, chúng Tôi đưa cầu thang ra phía sau.
Tầng 1 thiết kế với phòng khách và bếp liên thông, chạy dài theo chiều dọc của nhà, đối diện là 2 phòng ngủ, có cửa hướng ra phòng khách và bếp tiện lợi cho sinh hoạt.
Cầu thang lên tầng 2 được bố trí ra phía sau, đối diện là sân phơi, cạnh cầu thang bố trí vệ sinh phục vụ nhu cầu sinh hoạt cơ bản cùa gia chủ, sảnh tang lên tầng 2 rất rộng, có cửa đi ra sau vườn và sân phơi riêng biệt.

Ảnh minh họa cầu thang cuối nhà, công năng vô cùng hợp lý và tối ưu.
Tầng 2 thiết kế với 3 phòng ngủ, trong đấy có 1 phòng có vệ sinh khép kín và 1 phòng vệ sinh chung, bước vào tầng 2 là không gian sinh hoạt chung, có cửa sổ thoáng ra sân vườn sau nhà, phía trước nhà bố trí phòng ngủ bố mẹ cùng phòng thờ, với sân chơi phía trước phòng thờ có thể thông với phòng ngủ, tổng thể không gian tầng 2 liền mạch, phân bổ cực kì hợp lý, phương án này phù hợp với gia đình 3 thế hệ, ông bà thì ở tầng 1, bố mẹ và các con sinh hoạt trên tầng 2.
3.Phương án thiết kế nhà với vệ sinh khép kín.
Trở lại với phương án cầu thang ở giữa, với phương án này chúng Tôi thiết kế phòng ngủ cùng vệ sinh khép kín, tầng 1 vẫn thiết kế phòng khách và phòng bếp liên thông, ở phương án này, phòng khách và bếp rất rộng, phù hợp với không gian tiệc tùng, có thể bố trí được 5-6 mâm cỗ, thoải mái cho gia đình là trưởng. Tầng 1 bố trí với 2 phòng ngủ, trong đấy có 1 phòng bố trí vệ sinh khép kín dành cho cụ, phòng còn lại dành cho ông bà, với vệ sinh chung được đẩy ra cuối nhà, tránh mùi tối đa cho không gian khách và bếp.

Ảnh minh họa cầu thang giữa, các phòng ngủ có vệ sinh khép kín.
Tầng 2 thiết kế nhà với 3 phòng ngủ có 2 vệ sinh khép kín và 1 phòng vệ sinh chung, bước lên tầng 2 sẽ là phòng sinh hoạt chung với giếng trời thông thoáng, phòng thờ được thiết kế phía trước nhà, trước phòng thờ có bố trí sân vườn cảnh quan nhỏ, tạo cảm giác yên bình mỗi lần lên hương khói cho tổ tiên, đây sẽ là nơi chủ nhà ngồi chờ hương và hóa vàng, cũng có thể là nơi ngồi thư thái chăm sóc cây xanh, đọc sách ngắm cảnh phố phường.
4.Kết luận về thiết kế nhà tại Hà Đông - Hà Nội.
Với 3 phương án thiết kế nhà tại Hà Đông này, hy vọng các bạn có thể áp dụng vào lô đất cho riêng mình, một thiết kế nhà có kích thước 9x14m nhiều tùy biến, dành cho gia đình 2 đến 3 thế hệ sinh sống gồm 5 phòng ngủ, 1 phòng bếp và 1 phòng khách liên thông, phòng sinh hoạt chung rộng và thoáng, ngoài ra bạn có thể xem thêm nhiều mẫu thiết kế nhà tại https://www.kientructhudo.vn/
DỊCH VỤ THIẾT KẾ NHÀ ĐẸP TẠI QUẬN HÀ ĐÔNG - HÀ NỘI.
Dịch vụ thiết kế nhà đẹp ở quận Hà Đông của chúng Tôi gồm có:
Thiết kế nhà ống, thiết kế nhà phố, thiết kế nhà dân dụng.
Thiết kế biệt thự hiện đại, thiết kế biệt thự mái thái, thiết kế biệt thự cổ điển
Thiết kế kiến trúc ngoại thất.
Thiết kế kết cấu.
Thiết kế hệ thống điện.
Thiết kế hệ thống cấp thoát nước.
Với tiêu trí đặt lợi ích chủ đầu tư lên hàng đầu, Chúng Tôi mong muốn đưa ra giải pháp và phương án hợp lý, đáp ứng nhu cầu tối đa của chủ đầu tư, giúp giảm thiếu chi phí thi công, đảm bảo về các vật liệu bề mặt đúng chất lượng, phù hợp chi phí, hạn chế lãng phí tối đa khi thi công.
Với chi phí thiết kế nhà tại Hà Nội chỉ từ 90.000đ một mét vuông thiết kế bạn sẽ được:
Miễn phí hồ sơ xin cấp phép xây dựng.
Miễn phí tư vấn mặt bằng công năng.
Miễn phí thiết kế nội thất phòng khách hoặc phòng bếp (trường hợp kí hợp đồng vào ngày 10 hoặc ngày 15 hàng tháng)
Giảm ngay 50% chi phí thiết kế khi thi công nội thất trọn gói.
Hãy liên hệ ngay với chúng Tôi để được hưởng những ưu đãi sớm nhất, thông tin liên hệ như sau:
CÔNG TY CỔ PHẦN KIẾN TRÚC THỦ ĐÔ
Điện thoại: 0915.9999.25 (Zalo)
Website: kientructhudo.vn
