1.Giới thiệu một số mẫu thiết kế nhà 3 tầng hiện đại.
Trong bài viết này, chúng Tôi xin giới thiệu đến các bạn, những mẫu nhà phố 3 tầng, với nhiều loại kích thước và diện tích khác nhau, đáp ứng hầu hết nhu cầu của các hộ gia đình.
Với chi phí xây dựng không quá lớn, đầy đủ công năng cho gia đình từ 2 đến 3 thế hệ sinh sống.
Những mẫu nhà 3 tầng thường được thiết kế và xây dựng trong các khu đô thị, đông dân cư, quỹ đất hạn hẹp, nhu cầu sử dụng cao.
Những mẫu nhà phố thường chỉ có 1 mặt tiền, với chiều rộng từ 3 mét đến 7 mét, và chiều sâu từ 9 đến 15 mét
Xin mời các bạn cùng theo dõi.
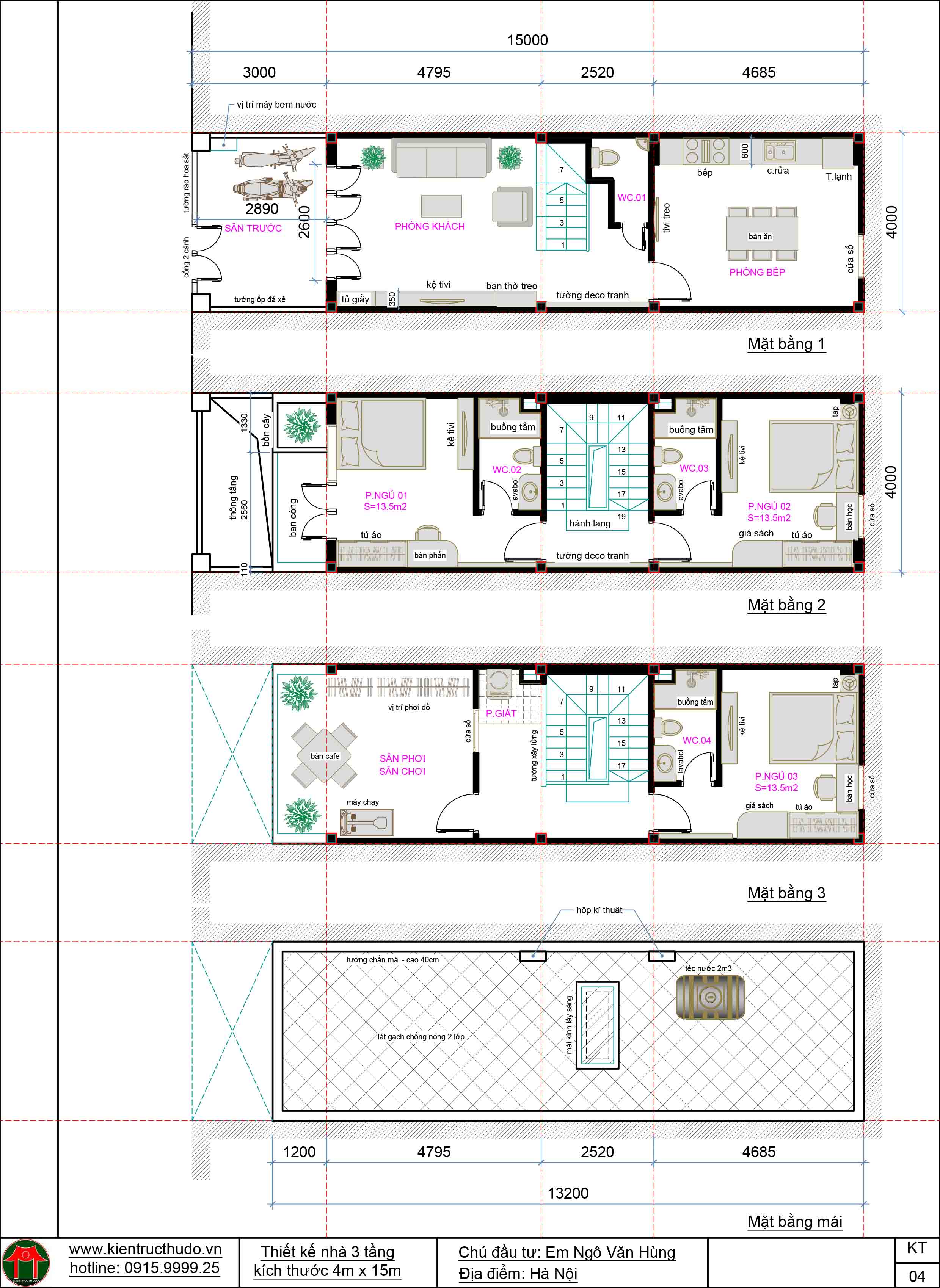
Mẫu số 1: Thiết kế nhà phố 3 tầng kích thước 4x15m 3 phòng ngủ
Với kích thước mặt tiền là 4 mét và sâu 15 mét, yêu cầu thiết kế nhà 3 tầng cho 2 thế hệ sinh sống, bao gồm 2 vợ chồng và 2 con nhỏ, công năng sẽ đáp ứng đủ 3 phòng ngủ, 1 phòng thờ, 1 phòng khách, 1 sân phơi
Tại tầng 1, chúng tôi thiết kế sân để xe, với chiểu dài là 3 mét, tiếp đến là phòng phòng khách, diện tích gần 20m2, tiếp đến là cầu thang, với 19 bậc thang, cầu thang đi theo chiều kim đồng hồ, tận dụng gầm cầu thang làm nhà vệ sinh nhỏ, phục vụ những nhu cầu vệ sinh cơ bản của chủ nhà cũng như khách đến chơi nhà.
Phòng khách được thiết kế gồm sofa và kệ tivi đối diện, sau lưng ghế sofa là cầu thang, với bậc thang được trang trí giật cấp, làm tiểu cảnh cho phòng khách, giúp không gian phòng cách sang trọng hơn.
Đối diện cầu thang, chúng tôi thiết kế khung tranh gia đình, hoặc đặt đồ deco đẹp mắt, nơi đây sẽ là nơi trưng bầy những đồ lưu niệm của gia đình, hoặc những kỉ niệm trong mỗi chuyến du lịch, giúp kết nối các thành viên trong gia đình.
Phía sau cầu thang là bếp, diện tích gần 20m2, phần bếp được ngăn cách không gian phòng khách bằng cửa kính, thuận tiện cho việc sử dụng điều hòa vào mùa hè và mùa đông
Nội thất bếp được bố trí gọn gàng găn nắp, theo dây chuyền hình tam giác kinh điển, thuận tiện cho người sử dụng.
Trong bếp có bố trí 01 tivi, giúp chủ nhà có thể theo giõi tin tức, hoặc có thể kết nối hệ thống camera quan sát, rất chủ động
Tầng 2 được thiết kế với 2 phòng ngủ và vệ sinh khép kín
Phòng ngủ phía trước dành cho bố mẹ, diện tích 14m2 chưa bao gồm diện tích vệ sinh, nội thất bố trí cơ bản gồm có giường đôi, kệ tivi, tủ quần áo và bàn phấn
Nhà vệ sinh thiết kế khép kín với các vận dụng cơ bản như: vách tắm kính, chậu rửa và xí bệt
Phía ngoài phòng ngủ bố mẹ được thiết kế với chậu cây và ban công lớn, giúp nhà thông thoáng, hiện đại
Phòng ngủ phía sau được thiết kế là phòng ngủ con, diện tích gần 20m2 với vệ sinh khép kín, nội thất phòng ngủ bố trí gồm có giường ngủ, tủ quần áo và bàn học, phía bàn học có thiết kế 01 cửa sổ, giúp lấy gió cho căn phòng.
Đối diện cầu thang tầng 2, chúng tôi thiết kế hệ khung tranh, nơi đây sẽ lưu giữ những bức ảnh của trẻ, từ lúc nhỏ đến lúc trưởng thành, giúp gia chủ nhìn được quá trình phát triển của con.

Mặt bằng thiết kế nhà 3 tầng 4x15m 3 phòng ngủ.
Tầng 3 được thiết kế với 01 phòng ngủ phía sau, tương tự tầng 2, phía trước được thiết kế với sân phơi và sân chơi.
Phòng giặt tầng 3 nằm phía trên nhà vệ sinh tầng 2 (phòng ngủ bố mẹ) thuận tiện cho việc cấp thoát nước theo trục đứng.
Phần mái được thiết kế đổ bê tông toàn khối, có lát gạch chống nóng.
Vị trí cầu thang trên mái được thiết kế mái kính, giúp cầu thang luôn thoáng, lưu thông không khí cho các không gian bên dưới
Téc nước được để trên tum, gia cố chắc chắn bằng hệ khung thép, neo vào sàn bê tông.
Nếu các bạn có lô đất 4x15m, đang có ý định xây nhà 3 tầng, thì mẫu này dành cho bạn.
Mẫu số 2: Tthiết kế nhà 3 tầng 1 tum kích thước 5x11m 3 phòng ngủ - thiết kế nhà lệch tầng
Với yêu cầu thiết kế nhà 3 tầng, kích thước 5x15m, dành cho gia đình 2 thế hệ, yêu cầu có phòng ngủ rộng và phòng làm việc cho bố mẹ cùng các con, chúng tôi lên thiết kế như sau:
Tầng 1: phía trước được thiết kế với nhà xe rộng 5.1m và sâu 3.8m, mặt ngoài nhà xe thiết kế cổng 2 cánh, nằm lệch 1 bên, tạo phong thủy cho ngôi nhà
Từ nhà xe lên phòng khách là bậc tam cấp, ngăn cách nhà xe và phòng khách là hệ cửa 4 cánh, rộng 2.48m và cao 2.6m
Phong khách thiết kế không gian rộng 25m2, bố trí gồm sofa và kệ tivi.
Bước qua phòng khách sẽ đến bếp, phòng bếp được thiết kế thông thoáng nhờ ô thông tầng bên hông nhà, nội thất bếp bố trí cơ bản gồm có tủ lạnh, bếp và chậu rửa, cạnh tủ lạnh là tủ rượu, được bố trí liên hoàn và liền tường, tiết kiệm không gian, tăng vẻ sang trọng cho không gian bếp
Ngăn cách bếp với ô sân thoáng là cửa trượt kính rộng 1.6m và cao 2.2m, nền bếp và sân thoáng chênh cao là 15cm, theo tiêu chuẩn thiết kế việt nam.
Nhà vệ sinh tầng 1 được thiết kế gọn gàng đủ dùng, với đường bo cong mềm mại, giúp tránh những cạnh sắc nhọn, ảnh hưởng tới sinh hoạt của người sử dụng.
Cầu thang từ tầng 1 lên tầng 2 được bố trí gần giữa nhà, với 15 bậc cầu thang, chiều cầu thang là thuận chiều kim đồng hồ.
Bước lên hết cầu thang lần 1 sẽ là phòng làm việc và học tập của cả gia đình, tiếp theo, lên 5 bậc cầu thang sẽ là phòng ngủ bố mẹ.
Với ưu điểm không gian thay đổi liên tục, không nhàm chán, đây là ưu điểm rất lớn của lối thiết kế nhà lệch tầng
Phòng ngủ bố mẹ được thông thoáng nhà ô thông tầng phía hông nhà, ô thông tầng này sẽ giúp phòng ngủ và phòng vệ sinh luôn có gió và khí tươi vào phòng, giúp diệt trừ đa phần vi khuẩn có hại
Nhà vệ sinh tầng 2 được thiết kế đối diện cầu thang, nằm cùng sàn với phòng ngủ, giúp thuận tiện cho việc sinh hoạt vợ chồng. Trong phòng vệ sinh chúng tôi có thiết kế cửa sổ, mở ra ô thông tầng, giúp nhà vệ sinh luôn khô thoáng, một thiết kế xa xỉ cho không gian nhà phố trật hẹp.

Mặt bằng thiết kế nhà 3 tầng 1 tum kích thước 5.1x11.2m
Thiết kế tầng 3 với 2 phòng ngủ và phòng vệ sinh, các phòng ngủ được bố trí cơ bản gồm có giường ngủ, tủ quần áo và bàn học.
Phòng ngủ phía trước có ban công rộng và thoáng, rất tốt cho sức khỏe người sử dụng
Phòng ngủ phía sau được lấy gió và sáng nhờ ô thông tầng bên hông nhà, ô thông tầng này cũng giúp nhà vệ sinh trở nên khô thoáng sạch sẽ hơn rất nhiều
Thiết kế tầng tum với phòng thờ diện tích 16m2, ở giữ phòng thờ là ban thờ tiêu chuẩn, với chiều rộng 2.17m, chiều cao 1.27m, Phòng thờ được thiết kế phía trước của ngôi nhà, trước phòng thờ được bao bọc bởi hệ hành lang và cây xanh tươi mát, sau khi thắp hương gia tiên, chủ nhà có thể ngồi thưởng trà, chờ hương để hạ lễ thụ lộc.
Phía sau tầng tum được thiết kế làm nơi để phòng giặt và sân phơi có mái che, đây sẽ là nơi phơi phóng và tập thể dục cho cả gia đình, sau những ngày mệt mỏi cho công việc và học tập.
Một thiết kế nhà 3 tầng 1 tum theo cách thiết kế nhà lệch tầng, thay đổi không gian liên tục, rất thích hợp với gia đình ưa thích sự năng động, phù hợp với các lô đất có chiều ngang từ 4 mét đến 6 mét, chiều ấu từ 9 mét đến 16 mét.
Mẫu số 3: Thiết kế nhà 3 tầng hiện đại kích thước 6x11m 3 phòng ngủ
Với diện tích hơn 60m2, mặt tiền 6 mét và sâu 11 mét, yêu cầu thiết kế nhà dành cho 2 thế hệ sinh sống, bao gồm bố mẹ và 2 con nhỏ, kinh phí xây dựng khoảng 1 tỉ đồng, chúng tôi đưa ra giải pháp thiết kế công năng như sau:
Tầng 1 với mặt tiền 6 mét, được bố trí gồm có sân để xe, phòng khách, bếp và vệ sinh
Phần nhà xe có chiều rộng là 1.8m và sâu là 4.5 mét, nền nhà xe cao hơn nền đường 15cm và thấp hơn nền nhà 15cm, đảm bảo việc để xe sạch sẽ, bụi bẩn không cuốn lên nhà chính
Nhà xe được ngăn cách với phòng khách bằng cửa sổ vách kính, tại phòng khách có thể quan sát và trông coi dễ dàng
Phòng khách được thiết kế với cửa chính 4 cánh, dẫn thẳng vào nhà, đòng thời phía nhà xe cũng mở 1 cửa nhỏ, giúp tạo không gian riêng tư cho phòng khách, ví dụ như khi người vợ đi chợ, nhà đang có khách, không cần phải đi cửa chính, mà đi cửa ngách vào thẳng trong bếp,
Ngăn cách giữa không gian phòng khách làm cầu thang, tiếp đến là bếp.
Đối diện cầu thang sẽ là ô tiểu cảnh thông tầng, ở đây có thể là tiểu cảnh ướt hoặc tiểu cảnh khô, tùy thuộc vào mệnh phong thủy của chủ nhà
Cầu thang tầng 1 lên tầng 2 được thiết kế 21 bậc, chiều cầu thang đi theo hướng ngược chiều kim đồng hồ, giúp không gian phòng khách thêm rộng và thoáng.
Dưới gầm cầu thang chúng Tôi thiết kế khu vệ sinh nhỏ, nền vệ sinh thấp hơn nền nhà 15cm, đảm bảo việc thoát nước cũng như những nhu cầu sinh hoạt cơ bản của gia đình và khách khi đến chơi nhà
Phần bếp được đẩy ra phía sau nhà, bếp được bố trí dây chuyền hình tam giác, đảm bảo thuận tiện cho người sử dụng, phòng bếp rộng 20m2 liên thông sảnh hàng hang, giúp căn hộ thông thoáng và rộng dãi hơn kích thước thực tế nhiều
Thiết kế tầng 2 bố trí 02 phòng ngủ, với phòng ngủ phía trước có ban công rộng thoáng dành cho chủ nhà, phòng ngủ phía sau có ánh sáng nhờ ô thông tầng giữa nhà dành cho con.
Mỗi phòng ngủ thiết kế vệ sinh khép kín, thuận tiện cho sinh hoạt
Nội thất phòng ngủ bố trí cơ bản gồm có giường, tủ quần áo và kệ tivi
Trước nhà vệ sinh, chúng tôi khéo léo bố trí 01 tủ quần áo âm tường, tủ này là nơi để những quần áo lót, áo tắm hoặc quần áo mặc ở nhà, giúp thuận tiện trong sinh hoạt, một thiết kế lý tưởng cho người sử dụng.
Giao thông trục đứng của căn nhà được liên thông bởi ô thông tầng giữa cầu thang, giúp ánh sáng và gió len lỏi mọi khu vực trong nhà, một thiết kế đặc trưng không thể thiếu đối với nhà ống nhỏ hẹp.

Mặt bằng thiết kế nhà 3 tầng kích thước 6x11m
Tầng tum được thiết kế công năng với phòng thờ phía trước, phía sau là phòng ngủ dành cho con, có vệ sinh khép kín, thiết kế tương tự tầng 2
Phòng giặt được xử lý khéo léo ngoài hành lang trước phòng thờ, có tường ngăn cách với phòng thờ, tạo không gian riêng biệt
Trước phòng thờ được chúng tôi thiết kế với tiểu cảnh sân vườn, đây sẽ là nơi chủ nhà ngồi thưởng trả mỗi lần lên hương khói cho các cụ
Hương ban thờ được quay ra cửa chính, cửa vào phòng thờ bố trí cửa 2 cánh rộng 1.2m và cao 2.25m đảo bảo về tiêu chuẩn phong thủy trong nhà
Đây là mẫu thiết kế nhà 2 tầng 1 tum, phù hợp với gia đình 2 thế hệ sinh sống, có chiều ngang từ 5 mét đến 7 mét và sâu từ 9 mét đến 12 mét, nếu bạn đang có mảnh đất tương tự, hoàn toàn có thể áp dụng cho mình bạn nhé.

Phối cảnh minh họa thiết kế nhà 3 tầng 6x11m
Phối cảnh thiết kế nhà 3 tầng rộng 6 mét và sâu 11m nhẹ nhàng tinh tế, gam màu khỏe, mảng khối lớn, kết hợp vật liệu cớ bản, tất cả tạo nên một thể thống nhất và gắn kết, thật tuyệt vời.
Mẫu số 4: Thiết kế nhà hiện đại 3 tầng 5x11m cầu thang giữa
Với diện tích 50m2 kích thước ngang 5 mét và sâu 10 mét, thiết kế nhà danh cho gia đình 2 thế hệ sinh sống.
Với nét thiết kế đặc trưng của nhà ống, cầu thang đặt giữa và 2 phòng 2 bên, đảm bảo các công năng có diện tích bằng nhau
Tầng 1 được thiết kế với cầu phòng khách, bếp và vệ sinh
Nhà xe được hạ cốt và để giữa sảnh cầu thang bộ, giúp không gian phòng khách và bếp sạch sẽ gọn gàng, một gợi ý về vị trí nhà xe cho nhà phố có không gian trật hẹp.

Mặt bằng thiết kế nhà 3 tầng diện tích 50m2 3 phòng ngủ
Tầng 2 được thiết kế với 02 phòng ngủ, tróng đó phòng ngủ phía trước có ban công rộng và thoáng dành cho bố mẹ, phòng ngủ con bố trí phía sau, có ô thông tầng trong phòng ngủ
nhà vệ sinh chung được thiết kế đối diện cầu thang, trong nhà vệ sinh có thiết kế cửa mở ra ô thông tầng, điều này sẽ giúp nhà vệ sinh luôn khô thoáng sạch sẽ.
Nếu bạn có làm nhà ống, tôi khuyên kiểu gì cũng nên nghĩ đến gió và ánh sáng, và giải pháp là nên đưa ô thông tầng bạn nhé.
Tầng 3 được thiết kế với phòng thờ phía trước và phòng ngú phía sau.
Sân phơi và máy giặt được đặt gọn gàng vừa đủ phía trước, các bạn lưu ý: cần tính toán kích thước máy giặt phù hợp trước khi thiết kế nhé, điều này rất quan trọng đối với nhà nhỏ, tấc đất tấc vàng, đừng đẻ lãng phí diện tích (các đơn vị thiết kế nhà thiếu kinh nghiệm, thường sẽ làm hỏng ngôi nhà của bạn đấy)
Mẫu số 5: Thiết kế nhà ống hiện đại 3 tầng 5x11m kết hợp kinh doanh
Với những lô đất mặt tiền, vừa ở vừa kinh doanh, chúng tôi đưa ra thiết kế điển hình như sau:
Cầu thang tầng 1 được đẩy vào sau cùng, tận dụng tối đa diện tích phía trước làm không gian bán hàng hoặc cho thuê, có vị trí để xe riêng biệt dành cho khách và chủ nhà
Nhà vệ sinh thiết kế tận dụng dưới gầm cầu thang, đảm bảo nhu cầu sinh hoạt cơ bản của cửa hàng
Tầng lửng sẽ bố trí phòng khách và bếp, tại tầng lửng thiết kế vách kính rộng, giúp chủ cửa hàng có thể quan sát không gian bên dưới.
Cầu thang từ tầng lửng lên tầng 2 được thiết kế để giữa nhà, chiều cầu thang theo hướng ngược chiều kim đồng hô, giúp không gian phòng khách thêm rộng (nếu muốn, bạn hoàn toàn có thể bố trí vệ sinh dưới gầm cầu thang này

Mặt bằng thiết kế nhà 3 tầng kết hợp kinh doanh
Tầng 2 và tầng 3 được thiết kế là khu ở cho chủ nhà, phù hợp với gia đình 2 hế hệ, công năng gồm có 3 phòng ngủ, 01 phòng thờ và sân phơi
Ánh sáng và gió được lưu thông nhờ ô thông tầng giữa cầu thang, phòng ngủ phía sau cũng được thông thoáng nhờ ô thông tầng trong nhà, một giải pháp tuyệt vời cho thiết kế nhà ống cơ bản nên có.
Mẫu sô 6: Thiết kế nhà phố 3 tầng hiện đại kích thước 4x11.5m cầu thang cuối nhà kết hợp vừa ở vừa kinh doanh
Tiếp theo, chúng Tôi xin giới thiệu mẫu thiết kế nhà 3 tầng có chiều rộng là 4 mét và chiều sâu là 11.5m, thiết kế nhà vừa ở vừa kinh doanh.
Trong thiết kế này, chúng tôi bố trí cầu thang đặt cuối nhà, dành toàn bộ không gian phía trước cho cửa hàng kinh doanh, vệ sinh được tận dụng dưới gầm cầu thang.
Câu thang tầng 1 lên tầng 2 thiết kế 19 bậc, đi thuận chiều kim đồng hồ.
Công năng tầng 2 sử dụng làm bếp và phòng khách, phòng khách bố trí bên trong, còn bếp bố trí bên ngoài, phía trước mặt tiền là khoảng ban công rộng thoáng, lấy gió và sáng cho phòng bếp và phòng khách.

Mặt bằng thiết kế nhà 3 tầng 1 tum kích thước 4x11m kết hợp kinh doanh
Tầng 2 thiết kế với 02 phòng ngủ, phòng ngủ phía trước dành cho bố mẹ, phòng ngủ phía sau dành cho con, hay phòng ngủ sẽ chung 1 nhà vệ sinh đặt cạnh cầu thang, vệ sinh nối thẳng với ban công dài, tiết kiệm không gian và rất gọn gàng, nhà vệ sinh có cửa sổ lấy thoáng mở ra bên ngõ
Thiết kế tầng 3 với bố trí phòng thờ phí trước và phòng ngủ phía sau, trong phòng ngủ có thiết kế vách kính ra hàng lang, lấy anh sáng và gió cho phòng ngủ
Sân phơi được đẩy ra ngoài hành lang, thuận tiện phơi quần áo ngay cả khi trời mưa gió
Nếu bạn nào đang tìm mẫu nhà 2 mặt tiền, vừa ở vừa kinh doanh, mặt tiền từ 4 mét đến 6 mét, sâu từ 9 mét đến 11 mét, có thể tham khảo mẫu này nhé.
Mẫu số 7: Thiết kế nhà hiện đại 3 tầng 1 tum, kích thước 4.5x11.9m dành cho gia đình 3 thế hệ
Với kích thước chiều rộng là 4.5 mét và sâu 11.9 mét, yêu cầu thiết kế công năng dành cho gia đình 3 thế hệ sinh sống, có vị trí để xe ô tô, chúng tôi lên thiết kế như sau:
Tại tầng 1 thiết kế nhà xe với khoảng sân phía trước sâu 5.5m, đảm bảo đỗ được ô tô từ 5đến 7 chỗ, ngắn cách không gian nhà xe là cầu thang, với sảnh rộng và thoáng, cầu thang tầng 1 lên tầng 2 là 17 bậc, chiều cao trung bình 18cm cổ bậc, cầu thang đi thuận chiều kim đồng hô.
Phía sau thiết kế phòng ngủ dành cho ông bà, với vệ sinh khép kín ,thuận tiên cho sinh hoạt, diện tích là 10m2 (có phối cảnh minh họa bên dưới)
Tầng 2 thiết kế với phòng khách và bếp, phía trước là khoảng ban công rộng, trang trí tạo điểm nhấn cho ngôi nhà
Vệ sinh tầng 2 được bố trí thẳng trục với tầng 1, thuận tiện cho hệ thống kĩ thuật, bước lên cầu thang tầng 2 sẽ là bàn ăn dàm cho 6 người, phía trước là phòng khách và phía sau là bếp, cạnh bàn ăn là hệ thống tủ rượu liền tường, giúp không gian phòng khách sang trọng, tạo điểm nhấn và ấn tượng cho căn phòng.

Thiết kế nhà 3 tầng kích thước 4.5x11.9m dành cho gia đình 3 thế hệ sinh sống.
Thiết kế tầng 3 bố trí với 02 phòng ngủ có vệ sinh khép kín, phòng ngủ phía trước thiết kế dành cho bố mẹ, có ban công thoáng phía trước, còn phòng ngủ sau dành cho con, nội thất cơ bản gồm có giường, tủ quần áo và bàn học, trong phòng không kê tivi, mục đích để cả gia đình quầy quần xem tivi tại phòng khách
Tầng tum được thiết kế gồm có phòng thờ phía trước, phía sau là nơi giặt và phơi đồ, đối diện sảnh cầu thang sẽ là khu đọc sách, thưởng trà của chủ nhà, sảnh trước phòng thờ rộng và thoáng, đây sẽ là nơi ngồi nghỉ ngơi, chờ hết tuần hương để con cháu xin thụ lộc các cụ

Phối cảnh mặt đứng thiết kế nhà 3 tầng 1 tum dành cho gia đình 3 thế hệ
Với lối thiết kế kiến trúc hiện đại, chúng tôi kết hợp các mảng hình khối đơn giản, đẩy mạnh sự tương phản của màu sắc, giúp tổng thể căn hộ trở nên hài hòa ấn tượng
Phần cổng được thiết kế đơn giản, vật liệu dùng sắt đặc sơn tĩnh điện màu đen sần, vừa tiết kiệm chi phí, lại tăng tính thẩm mỹ cho ngôi nhà
Mặt tiền được sơn màu trắng, điểm nhấn là những mảng tường ốp gạch bê tông thanh giả gỗ màu nâu.
Ban công tầng 2 thiết kế với bồn cây xanh mát, lan can được làm bằng sắt dẹt sơn tĩnh điện, lên đến tầng 3, chúng tôi thu nhỏ một phần chiều ngang ban công, giúp mặt ngoài bớt nhàm chán, và cũng thể hiện tính cách phóng khoáng của gia chủ.

Phối cảnh góc công trình, mặt tiền 4.5 mét và sâu 11.2 mét
Hệ cửa sổ và cửa đi mặt ngoài được thiết kế khung nhôm cánh kính, với lớp rèm ngăn cách bên trong, vô cùng sang trọng, nhẹ nhàng và tinh tế.
Ở góc phối cảnh này, hình khối toát lên sự khỏe khoắn và mạch lạc cho công trình, những điểm nhấn bằng phào chỉ mạnh, chạy xuyên suốt từ tầng 1 lên đến mái, như thể mạch máu cung cấp sức sống cho toàn bộ căn nhà.

Thiết kế mặt bằng công năng tầng 1 với nhà xe và phòng ngủ ông bà.

Ảnh phối cảnh nội thất sảnh tầng 1
Phần nội thất sảnh tầng 1 nhẹ nhàng. sàn lát đá màu vàng rơm, cầu thang mặt gỗ lim, cổ đá trắng, tạo điểm nhấn cho phòng.
Gầm cầu thang được chúng tôi thiết kế với tủ liền tường, đây sẽ là nơi dừng chân thư giãn, cũng là phòng khách tạm cho ông bà sử dụng ở tầng 1
Hệ cầu thang thiết kế theo hình zic zắc, kết hợp lan can kính và tay vịn gỗ, tạo nên kiến trúc lạ mắt cho khách đến chơi nhà, đối diện cầu thang sẽ là nơi treo tranh ảnh, lưu lại những kỉ niệm của gia đình.

Ảnh phối cảnh nội thất sảnh tầng 1, phòng khách tạm của gia đình.
Bậc đầu tiên của cầu thang từ tầng 1 lên tầng 2 được thiết kế bản rộng khổ lớn, được lát gỗ cầu kì, thể hiện sự vững trãi khỏe khoắn về mặt phong thủy.

Phối cảnh nhà xe.
Phần nhà xe thiết kế đủ rộng để gia chủ để vừa ô tô từ 5 đến 7 chỗ, tường hai bên được ốp đá xẻ cầu kì, gam màu ghi xám kết hợp với tường trắng, khung nhôm cửa màu đen, tạo nên một tổng thể vô cùng hài hòa
Sàn nhà xe được lát đá nhám màu xi măng, tăng sự cá tính cho gia chủ.

Thiết kế nội thất tầng 1 với hệ kệ liền tường.
Trước cửa phòng ngủ tầng 1 chúng tôi có thiết kế hệ tủ liền tường, đây sẽ là nơi để giầy dép, mũ bảo hiểm, áo mưa v.v.v.. những vật dụng thiết yếu cho người sử dụng.

Ảnh phối cảnh thiết kế nội thất phòng ngủ ông bà
Thiết kế nội thất phòng ngủ ông bà nhẹ nhàng với gam màu trắng hiện đại, vật dụng cơ bản gồm có giường đôi, tủ quần áo và tivi treo tường

Ảnh phối cảnh phòng ngủ ông bà với hệ tủ liền tường.

Mặt bằng bố trí nội thất tầng 2 với phòng khách và bếp.

Ảnh phối cảnh thiết kế phòng khách và bếp, hướng nhìn từ ngoài vào.
Gam màu sắc được chúng tôi thiết kế theo mệnh phong thủy của gia chủ, với diện tường sau sofa được sơn màu nâu đậm, sofa và kệ tivi cũng cùng tone màu nâu, đối diện là kệ tivi với mảng ốp đá vân mây sang trọng, độ tương phản cao, tạo nét hiện đại cho không gian phòng khách

Ảnh phối cảnh thiết kế nội thất phòng khách và bếp, hương từ trong nhà nhìn ra.
Bếp và phòng khách thiết kế theo ngôn ngữ hiện đại, sử dụng chủ yếu gỗ công nghiệp, toàn bộ sàn được lát gỗ màu tối, kết hợp trần thạch cao màu trắng, tạo nên vẻ đẹp trang nhã hài hòa cho công trình.

Ảnh phối cảnh thiết kế không gian bếp.
Phần bếp được thiết kế gọn gàng, bàn ăn đặt cạnh hệ thống tủ rượu liền tường, tiếp đến là tủ lạnh, máy rửa bát, chậu rửa, bên cạnh là bếp và hút mùi sang trọng đẳng cấp, rất gọn gàng găn nắp và vô cùng hiện đại.
Mẫu thiết kế nhà phố 3 tầng 1 tum kích thước 4x9m 2 phòng ngủ
Với chiều ngang 4 mét và sâu 9 mét, công năng đáp ứng nhu cầu cho gia đình 2 thế hệ sinh sống
Tầng 1 thiết kế với nhà xe, phòng khách kiêm vị trí ăn, phía sau thiết kế với bếp và vệ sinh (vệ sinh thiết kết rất gọn và thông minh) lối vào vệ sinh dưới gầm cầu thang, sàn này sẽ cần hạ cốt để giúp người sử dụng không bị chạm đầu.

Mặt bằng thiết kế nhà 3 tầng 1 tum kích thước 4x9m
Tầng 2 thiết kế phòng ngủ bố mẹ cùng vệ sinh khép kín, phía ngoài là ban công lấy thoáng cho phòng ngủ
Tầng 3 thiết kế dành cho phòng ngủ con, với hệ giường đôi, 2 tủ quần áo cùng bàn học, vệ sinh được thiết kế để phía ngoài, mục đích sẽ dùng chung với tầng tum, trường hợp chủ nhà muốn lên thêm tầng.
Tầng tum được thiết kế gồm phòng thờ và sân phơi phía trước
Nếu bạn có mặt tiền từ 3.5 mét và sâu là 9 đến 11 mét, bạn hoàn toàn có thể áp dụng mẫu này nhé.
Mẫu số 9: Thiết kế nhà 3 tầng kích thước 6x13m dành cho gia đình 3 thế hệ
Tầng 1 được bố trí gồm có phòng khách, cầu thang, bếp và phòng ngủ, phía sau bố trí vệ sinh và sân phơi dành cho ông bà.
Cầu thang thầng 1 lên tầng 2 bao gồm 21 bậc, hướng thuận chiều kim đồng hồ

Mặt bằng thiết kế nhà 3 tầng kích thước 6x15m dành cho gia đình 3 thế hệ
Thiết kế tầng 2 với 3 phòng ngủ, tróng đó 2 phòng ngủ phía trước dành cho con, còn phòng ngủ phía sau sành cho bố mẹ, nội thất trong phòng bố trí hài hòa, hợp phong thủy
Cạnh cầu thang sẽ là nhà vệ sinh chung, đối diện sẽ là phòng sinh hoạt chung gia đình, đây sẽ là nơi mấy bố con vui đùa, kể chuyện buồn vui sau mỗi ngày làm việc hoặc học hành căng thẳng
Phía sau phòng ngủ bố mẹ còn được thiết kế hệ thông tầng và hệ sân cafe vô cùng lãng mạng, phù hợp sở tích cafe và đọc sách cho gia chủ.
Mẫu 10: Tthiết kế nhà ống 3 tầng kích thước 3.5x9m 2 phòng ngủ
Với diện tích chiều ngang chỉ 3.5m và sâu 9m, chúng tôi tạo nên một thiết kế nhà hài hòa cho gia đình 2 thế hệ
Tầng 1 thiết kế với nhà xe, phfong khách cùng bếp liên thông, cầu thang được đẩy xuống cuối nhà, dưới gầm cầu thang bố trí vệ sinh phục vụ nhu cầu khách đến chơi.
Tầng 2 thiết kế với phòng ngủ master và vệ sinh tách biệt, giúp căn hộ luôn khô thoáng, hạn chế tối đa mùi hôi.
Tầng 3 thiết kế tương tự với phòng ngủ trẻ và vệ sinh, lưu ý: khu vệ sinh có mở lỗ thông tầng, giúp đẩy gió vào nhà vệ sinh, điều này làm cho vệ sinh luôn khô thoáng, hạn chế vi khuẩn và mùi hôi.
Tầng tum thiết kế với phòng thờ phía trước, phía sau là phòng giặt và sân phơi.

Mặt bằng thiết kế nhà 3 tầng 1 tum kích thước 3.5x9m
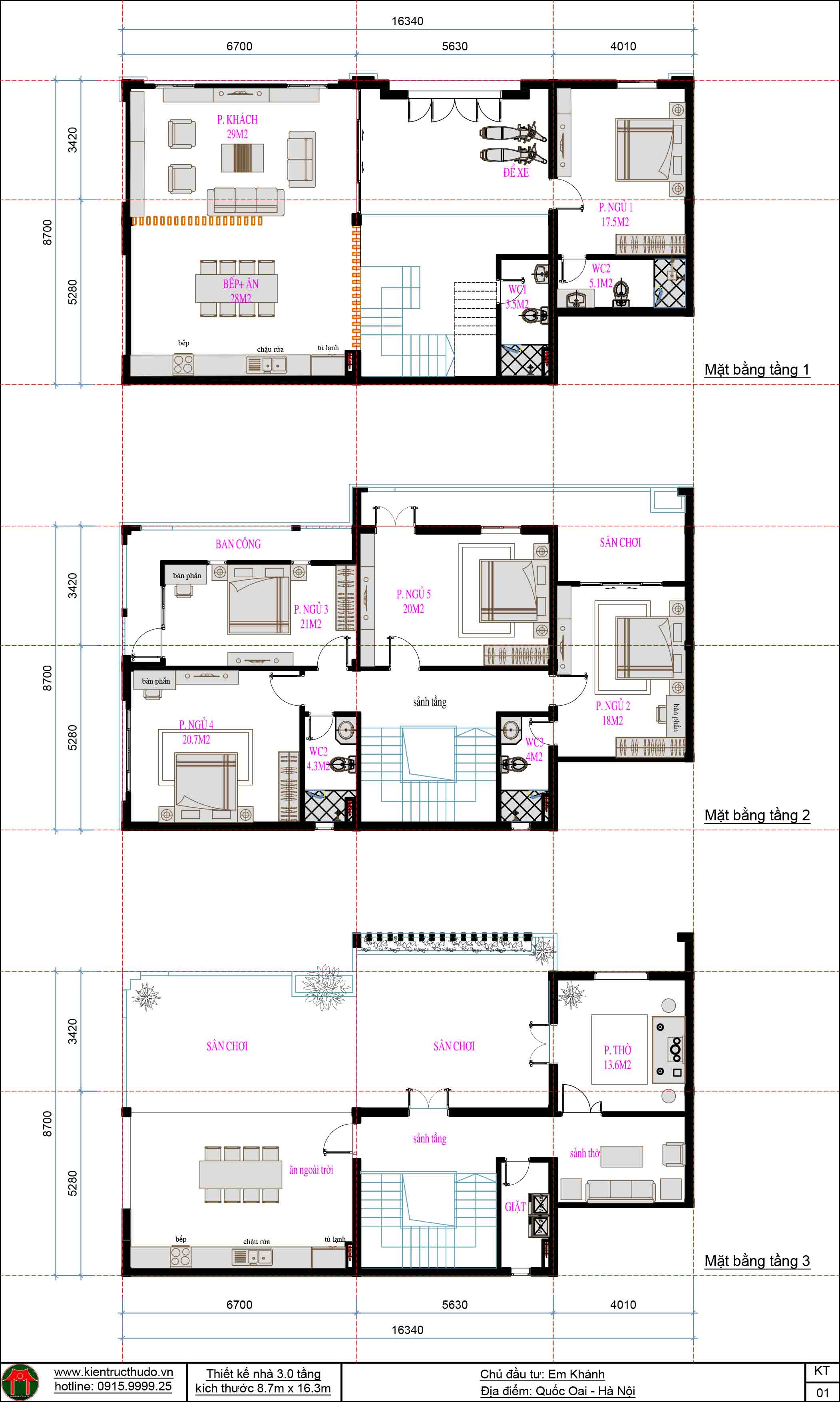
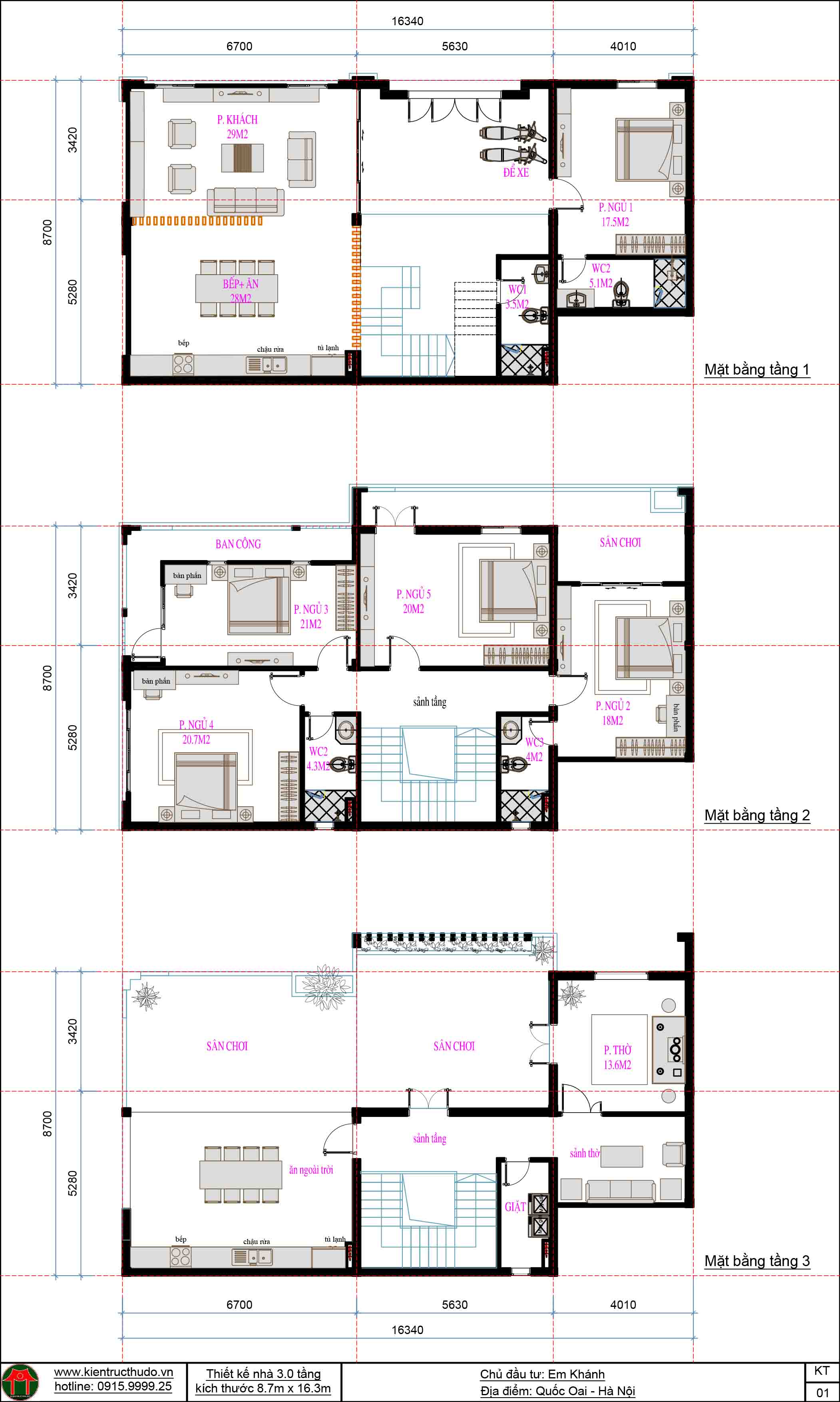
Mẫu 11: Thiết kế nhà 3 tầng 5 phòng ngủ dành cho gia đình 3 thế hệ
Với chiều rộng mặt tiền là 16 mét và sâu 8.7 mét, thiết kế tầng 1 gồm có phòng ngủ ông bà, phòng khách phòng bếp liên thông, khu để xe riêng biệt trước sảnh chính, tại tầng 1 bố trí 02 vệ sinh, trong đó có 1 vệ sinh khép kín đảm bảo nhu cầu sinh hoạt của ông bà.
Tầng 2 thiết kế với 4 phòng ngủ và 2 vê sinh, tất cả phòng ngủ đều có ánh sáng và gió tự nhiên, nhờ những khoảng ban công thoáng phía trước nhà.
Tầng 3 thiết kế với phòng thờ rộng rãi, cạnh phòng thờ là phòng khách nhỏ, đây là khoảng đệm trước khi vào phòng khách, cũng là nơi gia chủ ngồi thưởng trà chờ hạ lễ thụ lộc.
Phí trước nhà được thiết kế không gian bếp và bàn ăn lớn ngoài trời, phục vụ những bữa tiệc buffe trong những ngày nghỉ cuối tuần, giúp cả đại gia đình tái tại sức lao động sau những ngày mỏi mệt

Mặt bằng thiết kế nhà 3 tầng với 5 phòng ngủ.

Phối cảnh thiets kế nhà 3 tầng phong cách hiện đại

Thiết kế nhà 3 tầng có bếp ngoài trời hiện đại và tiện nghi

Phối cảnh phòng khách liên thông bếp, màu sắc hài hòa tự nhiên, đậm phong cách châu âu.

Tủ bếp thiết kế kịch trần, liền mạch với tủ rượu, tone màu âu ấm, tăng vẻ lịch lãm cho không gian phòng khách.
Mẫu số 12: Thiết kế nhà 3 tầng kiểu biệt thự dành cho gia đình 3 thế hệ sinh sống
Với lô đất gần 200m2, yêu cầu thiết kế nhà 3 tầng, diện tích sàn 100m2 dành cho gia đình 3 thế hệ sinh sống.
Tầng 1 được thiết kế với 2 phòng ngủ, phòng khách và bếp, bố trí hài hòa, hành lang rộng và thoáng
Từ cửa chính đi vào là phòng khách, cầu thang thiết kế đi thuận chiều kim đồng hồ, bậc cầu thang tránh hướng chạy thẳng ra cửa chính, đảm bảo yêu cầu về phong thủy
Phong ngủ phía sau có cửa ngách kết nối với sân, giúp tạo sự riêng tư cho phòng khách, khi có khách, người trong nhà nếu ngại có thể đi lại bằng cửa này.
Nhà vệ sih thiết kế sau cầu thang, cạnh đó có khoảng sân thoáng sau nhà, đây là nơi sơ chế gia cầm mỗi khi nhà có tiệc.
Tầng 2 thiết kế với 3 phòng ngủ và 1 phòng karaoke gia đình, tất cả phòng ngủ đều có không gian thông thoáng nhờ những khoảng thông tầng được thiết kế chạy dọc trong nhà
Tầng 3 thiết kế với phòng thờ phí trước, hướng ban thờ phù hợp với phong thủy của gia chủ, tại tầng 3 có bố trí thêm hệ thống bếp và khu bàn tiệc ngoài trời, một công năng cần thiết cho lối thiết kế nhà kiểu biệt thự

Thiết kế mặt bằng công năng nhà 3 tầng 5 phòng ngủ.

Phối cảnh thiết kế nhà 3 tầng kiểu biệt thự

Phối cảnh thiết kế nhà 3 tầng kiểu biệt thự hiện đại - góc 2

Thiết kế nhà 3 tầng với phối cảnh trên cao, sân vườn hiện đại, hài hòa.

Phối cảnh tổng mặt bằn tầng 1 với bếp và phòng khách liên thông.

Nội thất phòng khách với gam màu ấm, sử dụng gỗ tự nhiên kết hợp với nền đá marble màu sáng trong trọng.

Phối cảnh thiết kế nội thất phòng khách với kệ tivi liền tường

Thiết kế nội thất gầm cầu thang là nơi bố trí tủ rượu, có chức năng quầy bar nhỏ.
2.Báo giá thiết kế nhà 3 tầng
Công ty kiến trúc thủ đô xin gửi đến Quý vị bảng báo giá những hạng mục thiết kế nhà của chúng Tôi như sau:
2.1.Báo giá thiết kế nhà - phần thiết kế kiến trúc, thiết kế kết cấu, thiết kế điện, thiết kế cấp thoát nước.
| I | LOẠI CÔNG TRÌNH |
ĐƠN GIÁ THIẾT KẾ PHẦN KIẾN TRÚC (đ/m2 sàn) |
ĐƠN GIÁ THIẾT KẾ KẾT CẤU, ĐIỆN,NƯỚC, DỰ TOÁN (đ/m2 sàn) |
| 1 | Thiết kế nhà ống 1 măt tiền | 50.000đ | 40.000đ |
| 2 | Thiết kế nhà ông 2 mặt tiền | 60.000đ | 50.000đ |
| 3 | Thiết kế biệt thự 1-2 mặt tiền | 90.000đ | 60.000đ |
| 4 | Thiết kế biệt thự 2-4 mặt tiền | 120.000đ | 60.000đ |
| 5 | Thiết kế khách sạn, văn phòng, nhà hàng, chung cư... | 90.000đ | 80.000đ |
| 6 | Thiết kế bar, cafe, karaoke... | 90.000đ | 80.000đ |
| 7 | Thiết kế sân vườn, cảnh quan | 30.000đ | 20.000đ |
| 8 | Thiết kế nhà thờ họ, đền chùa, kiến trúc cổ | 300.000đ | 100.000đ |
Xin lưu ý: Cam kết 100% khách hàng hài lòng, khách hàng không hài lòng về thiết kế, Chúng tôi xin hoàn tiền 100%
- Tổng diện tích sàn < 100m2 ----> Đơn giá thiết kế tăng thêm 50%;
- Tổng diện tích sàn từ 100m2 đến 180m2, đơn giá thiết kế tăng thêm 20%;
- Tổng diện tích sàn trên 400m2 đơn giá thiết kế giảm 10%;
- Giảm giá 30% đối với phần kiến trúc, hoặc kết cấu, hoặc điện, hoặc nước trong trường hợp có các tầng giống nhau;
2.2. Báo giá thiết kế nhà - phần thiết kế nội thất.
| I | LOẠI CÔNG TRÌNH |
ĐƠN GIÁ THIẾT KẾ PHẦN PHỐI CẢNH GÓC (đ/m2) |
| 1 | Thiết kế nội thất nhà dân dụng | 90.000đ |
| 2 | Thiết kế nội thất Chung cư | 90.000đ |
| 3 | Thiết kế nội thất biệt thự hiện đại | 120.000đ |
| 4 | Thiết kế nội thất biệt thự tân cổ điển | 150.000đ |
| 5 | Thiết kế nội thất văn phòng | 80.000đ |
| 6 | Thiết kế nội thất bar, cafe | 180.000đ |
Xin lưu ý: Gói thiết kế nội thất - tối thiểu 5.000.000đ trở lên - cam kết hài lòng 100%
Về hồ sơ thiết kế nhà, bạn vui lòng xem tại đây
Nếu các bạn đang tìm đơn vị thiết kế nhà đẹp uy tín, hãy liên hệ ngay với chúng Tôi theo thông tin sau:
CÔNG TY CỔ PHẦN KIẾN TRÚC THỦ ĐÔ
Điện thoại: 0915.9999.25 (Zalo) KTS Hoàng Vĩnh Hiển
Trân trọng!
