1.Yêu cầu thiết kế nhà 4 tầng 1 tum tại Hải Dương.
Tôi gặp Chị Hồng và ngày thứ 7 tại Hải Dương, được biết Chị đang có ý định thiết kế nhà 4 tầng 1 tum, vừa ở vừa kết hợp kinh doanh
Gia đình chị Hồng có 4 thành viên, gồm 2 vợ chồng và 2 cháu nhỏ.
Hiện tại Chị đang kinh doanh cửa hàng quần áo thời trang.
Chị muốn tầng 1 thiết kế làm cửa hàng kinh doanh mặt ngoài, phía trong là bếp và phòng thờ tại tầng 1
Yêu cầu thiết kế nhà với 4 phòng ngủ, cửa hàng kinh doanh, phòng khách, phòng bếp và phòng thờ.
Lô đất thiết kế nhà 4 tầng 1 tum có chiều rộng là 4.2m và chiều sâu là 13.8m, mặt nhà quay hướng Đông Nam, nền đất hiện trạng là đất thổ cư lâu năm
Sau khi lắng nghe chỉa sẻ về nhu cầu sử dụng của Chị Hồng, chúng Tôi có tư vấn trực tiêp tại chỗ, lên phương án bằng tay, giúp chị hình dung cơ bản về công năng bố trí, sau đấy chúng Tôi hẹn sẽ thiết kế ngoại thất gửi Chị vào hôm sau, xin mời các bạn chùng xem nhé.
2.Phối cảnh thiết kế nhà 4 tầng 1 tum hiện đại.
Phối cảnh công trình thiết kế nhà 4 tầng 1 tum được chúng tôi thiết kế theo phong cách hiện đại, phần phía trước nhà là cửa hàng quần áo thời trang, phần tầng 2 và tầng 3 thiết kế đơn giản nhẹ nhàng ít phào chỉ, trên tầng tum bố trí đơn giản với lan can xây và lợp mái tôn chống nóng, giảm thiểu chi phí xây dựng.
Tổng thể nhà được sơn màu trắng, điểm nhấn là hệ ban công thò thụt, ốp gạch inax màu nâu đậm, phần cửa sổ dùng khung nhôm hệ màu đen. Lan can tầng 3 và tầng 4 dùng kính hiên đại với tay vin inox, gờ phảo chỉ nhẹ nhàng tinh tế, giúp tổng thể công trình hiện đại.

Ảnh phối cảnh thiết kế nhà 4 tầng 1 tum phong cách hiện đại
3.Bố trí mặt bằng trong thiết kế nhà 4 tầng 1 tum.
Mặt bằng tầng 1 trong thiết kế nhà 4 tầng 1 tum được bố trí gồm có cửa hàng kinh doanh, phòng thờ, phòng bếp, cầu thang bộ và khu vệ sinh dành cho khách.
Thiết kế cửa hàng với diện tích 20m2, mặt ngoài là cửa cuốn, sàn bên trọng được lát gạch ceramic mau vàng nhạt, giúp nổi bật phần nội thất quầy hàng bên trong.
Thiết kế phòng bếp chữ I với tủ lạnh đặt trong cùng, tiếp đến là chậu rửa và bếp, phần bếp bố trí theo hình tam giác, ngoài cùng là bàn ăn.
Thiết kế phòng thờ đặt cạnh bếp, ngăn cách bằng tường 22cm, có cửa mở ra ngoài, Chị Hồng muốn đặt ban thờ tầng 1 để tiện cho việc thờ cúng tổ tiên, không giống nhiều nhà đưa phòng thờ lên tầng cao nhất.
Ngoài ra tầng 1 còn bố trí 01 nhà vệ sinh với đầy đủ chức năng gồm có tắm kính, chậu rửa và xí bệt, phần sau phòng vệ sinh có thiết kế ô thoáng thông tầng, ô thoáng này sẽ giúp nhà vệ sinh luôn khô thoáng và sạch sẽ trong quá trình sử dụng.

Mặt bằng tầng 1 trong thiết kế nhà 4 tầng 1 tum với bếp và phòng thờ
Thiết kế cầu thang từ tầng 1 lên tầng lửng là 17 bậc, tầng lửng thiết kế phòng khách rộng, không bố trí tại đây, việc phòng khách trên tầng lửng sẽ giúp ích cho việc Chị Hồng có thể quan sát được cửa hàng khi ngồi tiếp khách tại đây.
Để không gian phòng khách rộng và thoáng, phần tầng lửng không thiết kế vệ sinh, thay vào đó và khu vực tiểu cảnh với cây xanh tiểu cảnh, tạo cảm giác yên bình cho phòng khách.
Mặt bằng tầng 2 trong thiết kế nhà 4 tầng 1 tum bố trí phòng ngủ master cùng vệ sinh khép kín, phòng ngủ này có đua ra 1.2m, một nửa làm phòng còn 1 nửa làm logia, có bố trí bồn cây trước logia, phần phía trên có thể bố trí cục nóng điều hòa sau này.
Thiết kế phòng ngủ master gồm có giường đôi, tủ quần áo, kệ tivi, bàn phấn và bàn làm việc. Phần đua phòng ra ban công được thiết kế với ghế ngồi đọc sách, đây là nơi thư thái cho căn phòng, ngồi đọc sách nhìn ra logia với cây xanh mát, một cảm các yên bình.
Trong phòng ngủ master chúng Tôi có bố trí vệ sinh khép kín, đảm bảo nhu cầu sử dụng cho vợ chồng, phía sau khu vệ sinh là ô thông tầng, giúp nhà vệ sinh này luôn khô thoáng trong quá trình sử dụng.
Mặt bằng tầng 3 trong thiết kế nhà 4 tầng 1 tum đươc bố trí làm phòng ngủ của 2 cháu nhỏ, với giường đôi ,tủ quần áo, bàn học cho các cháu.
Khu vệ sinh cũng được chúng Tôi thiết kế khép kín, phía sau vẫn lấy sáng bằng ô thông tầng, phần ban công đua ra làm phòng thiết kế nội thất đặt bàn học vào đấy.

Mặt bằng tầng 2 trong thiết kế nhà 4 tầng 1 tum với phòng ngủ master.
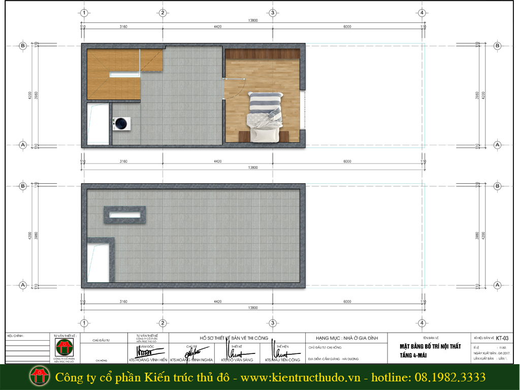
Mặt bằng tầng 4 trong thiết kế nhà 4 tầng 1 tum được bố trí gồm có phòng ngủ cho khách lưu trú và phòng giặt kèm sân phơi phía trước.

Mặt bằng tầng 4 trong thiết kế nhà 4 tầng 1 tum với phòng ngủ dành cho khách.
Kết luận về thiết kế nhà 4 tầng 1 tum:
Sau khi xem các bản vẽ thiết kế nhà 4 tầng 1 tum của chúng Tôi, Chị Hồng đã tin tưởng và đồng ý với thiết kế của Chúng Tôi, sau 20 ngày làm việc chăm chỉ, chúng Tôi đã ban giao đầy đủ phần hồ sơ thiết kế gồm có: phần thiết kế kiến trúc, thiết kế kết cấu, thiết kế điện và thiết kế cấp thoát nước.
Ngoài ra chúng Tôi có giúp Chị toàn bộ phần xin phép xây dựng ,giám sát những khâu quan trọng trong việc thi công xây dựng nhà.
Hy vọng với bài viết này, sẽ có ích cho bạn nào đang có nhu cầu thiết kế nhà 4 tầng 1 tum, và nếu bạn nào có nhu cầu tư vấn chuyên sâu, hãy liên hệ với chúng Tôi theo thông tin sau:
CÔNG TY CỔ PHẦN KIẾN TRÚC THỦ ĐÔ
Địa chỉ: 260 Cầu Giấy - Hà Nội
Hotline: 0915.9999.25 (Zalo) KTS - Hiển
Gmail: thietke.kttd@gmail.com
Website: www.kientructhudo.vn
TRÂN TRỌNG CẢM ƠN
