1.Yêu cầu thiết kế nhà 4 tầng 1 tum tại Quận Hai Bà Trưng - Hà Nội
Chúng tôi gặp Anh Tiến vào một buổi trưa ngày chủ nhật tại quán nước ven hồ, nghe Anh Tiến trao đổi về việc mong muốn thiết kế nhà 4 tầng 1 tum phong cách hiện đại dành cho gia đình mình với 2 thế hệ sinh sống.
Lô đất thiết kế nằm trong ngõ nhỏ, với chiều ngang gần 3 mét và chiều sau là hơn 10 mét, lô đất xung quanh có nhà 5 tầng bao bọc, chỉ có 1 mặt thoáng duy nhất. Nền đất của ngôi nhà là đất thổ cư lâu năm, ông bà để lại
Với mong muốn thiết kế nhà có 3 phòng ngủ, phòng khách và phòng bếp phải thoáng, tầng 1 làm nơi kinh doanh nhỏ cho gia đình, hoặc có thể cho thuê, nên cần có vệ sinh khép kín, tách biệt giữa cho thuê và không gian ở.
Sau khi đã nắm sơ bộ về yêu cầu thiết kế, chúng Tôi chào biệt Anh ra về, hẹn Anh sẽ lên phương án tối ưu cho thiết kế nhà 4 tầng 1 tum, đáp ứng những yêu cầu của Anh.

Trao đổi về thiết kế nhà 4 tầng 1 tum với Anh Tiến chủ nhà
2.Video thuyết minh phương thiết kế kế nhà 4 tầng 1 tum
Sau khi đã nắm được những yêu cầu thiết kế nhà và mong muốn sử dụng, chúng Tôi đã làm phướng án thiết kế nhà gửi cho Anh Tiến, để anh có thể hiểu hết được các thiết kế, chúng tôi có làm 1 video thuyết minh, mời các bạn cùng xem
Video thuyết minh phương án thiết kế nhà 4 tầng 1 tum
3.Phối cảnh thiêt kế nhà 4 tầng 1 tum
Lô đất thiết kế nhà Anh Tiến nằm sâu trong 1 con ngõ nhỏ tại quận Hai Bà Trưng - Hà Nội, xung quanh tiếp giáp với nhà cao 5 tầng, đây chính là một đặc điểm trong thiết kế nhà nhỏ tại Hà Nội
Với mặt tiền rộng chưa đầy 3m, chúng Tôi mang đến một thiết kế nhà 4 tầng 1 tum hiện đại, ít rườm dà phào chỉ, đưa các mảng khối lớn giúp công trình mạch lạc hơn, không tham quá nhiều chi tiết, Phần cổng được bố trí hệ nan sắt thoáng, bức tường trước cổng do yêu cầu của hiện trạng nên đành phải để nhỏ lại, và có 1 cửa đi chính vào sân để xe.
Tầng 2 được thiết kế lùi 1.2m tạo khoảng hút gió cho tầng 3-4- và tum, hai bên tường tầng 2 sơn trắng, phần ô giữa cửa sổ làm lõm 10cm được ốp gạch inax màu ghi xám
Tầng 3-4 được đua ra 20cm tạo gờ làm điểm nhấn cho công trình thêm nổi bật, vẫn giữa nguyên phào chỉ 2 bên tường.
Phối cảnh công trình sẽ cho chúng ta thấy rõ được các chi tiết mặt đứng cùng vật liệu hoàn thiện như hệ cửa nhôm kính, màu sơn tường, hệ lam giàn hoa trên mái tum.

Ảnh minh họa phối cảnh mặt đứng thiết kế nhà 4 tầng 1 tum tại Quận Hai Bà Trưng - Hà Nội
Phối cảnh công trình góc nghiêng này giúp anh Tiến dễ hình dung được các khoảng thò thụt của ban công, của hàng rào và tường tầng 1 cùng hệ ban công trên tầng tum

Ảnh minh họa phối cảnh góc nghiêng mặt đứng thiết kế nhà 4 tầng 1 tum
Phối cảnh công trình góc trên cao cho chúng ta thấy hệ sân chơi với sàn lát gạch conwood giả gỗ ngoài trời rất hiện đại sang trọng, hệ mái nhẹ thưa thớt nhưng đầy chắc chắn trên mái sẽ giúp anh có một không gian ngập tràn cây xanh, đây sẽ là nơi tổ chức những sự kiện ngoài trời mỗi khi Anh và gia đình có khách.Góc phối cảnh này cũng cho chúng ta thấy hết được những hệ thống kĩ thuật trên mái, như vị trí téc nước, lỗ thông tầng cầu thang bộ, vật liệu ốp lát trên mái.

Ảnh minh họa phối cảnh góc trên cao trong thiết kế nhà 4 tầng 1 tum
Phối cảnh so sánh này giúp Anh Tiến cùng đội thi công hiểu hết được các mặt và vật liệu thi công của thiết kế nhà.

Nhà 4 tầng 1 tum với góc phối cảnh so sánh giữa mặt đứng và mặt bên
4.Thiết kế mặt bằng công năng nhà 4 tầng 1 tum
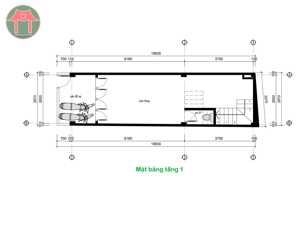
Mặt bằng tầng 1 trong thiết kế nhà 4 tầng 1 tum được bố trí bao gồm nhà xe, cửa chính, phần cửa hàng cho thuê hoặc sử dụng dịch vụ của gia đình tự kinh doanh, phần cầu thang được chúng tôi đặt sau cùng, tận dụng tối đa lợi thế mặt tiền của ngôi nhà cho mục đích kinh doanh, phần vệ sinh dưới gầm cầu thang thiết kế nhỏ gọn, có thể tác riêng cho hộ thuê cửa hàng nếu có nhu cầu.
Thiết kế tầng 1 lên tầng 2 có chiều cao tầng 3.3m với 17 bậc thang, chiều rộng bậc thang là 25cm còn chiều cao trung bình là 18cm, vì diện tích nhỏ, nên bản thang chúng tôi thiết kế vừa phải, rộng 85cm, quá đủ cho một công trình nhỏ hẹp.

Mặt bằng bố trí tầng 1 trong thiết kế nhà 4 tầng 1 tum với nhà xe và cửa hàng.
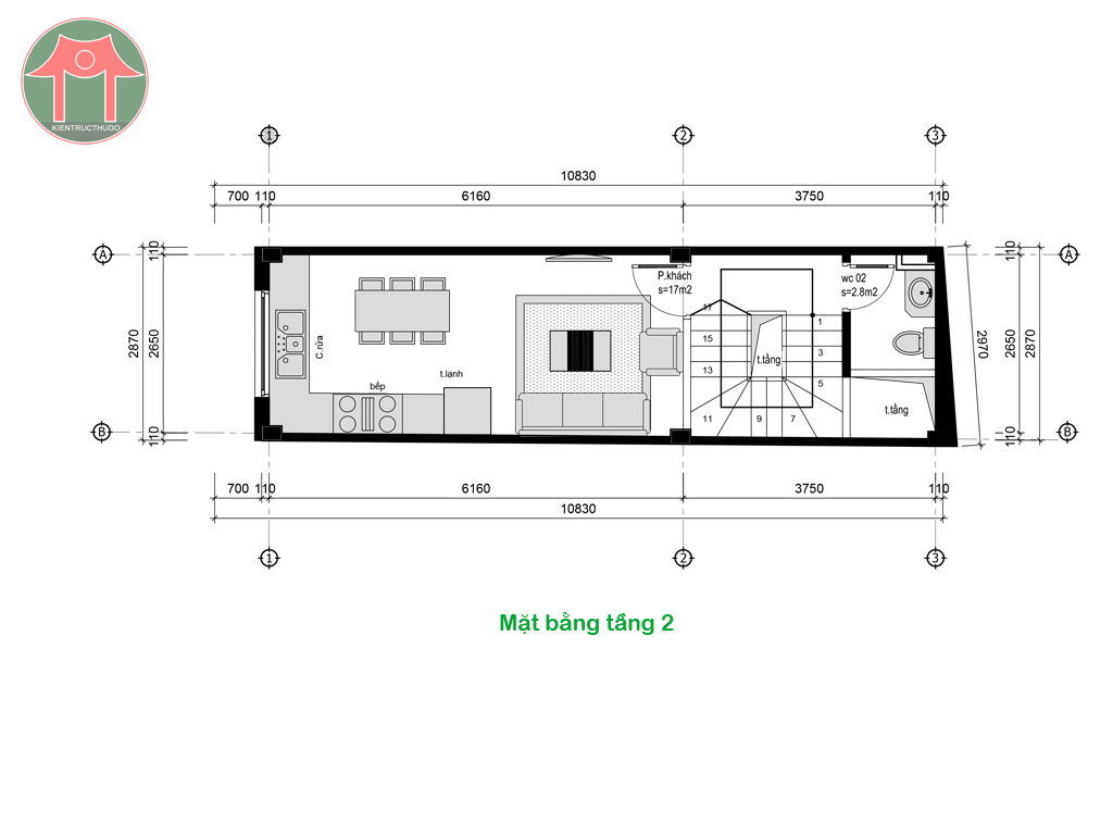
Mặt bằng tầng 2 trong thiết kế nhà 4 tầng 1 tum được bố trí được bố trí gồm có phòng khách cùng vệ sinh chung.
Việc thiết kế phòng khách và bếp liên thông nhau, giúp không gian rộng hơn, điều này cũng giúp các thành viên trong gia đình gắn kết hơn, sau khi ăn xong, có thể ra ngồi uống nước xem tivi cùng nhau trước khi đi ngủ.
Phòng bếp được lấy thoáng bởi mặt tiền thông qua cửa sổ 2 cánh khung nhôm kính, phòng cách thông thoáng hơn nhờ cửa vách kính khu vực cầu thang, giúp tổng thể sang trọng hiện đại hơn.
Ô thông tầng sau khu vệ sinh, giúp nhà vệ sinh thông thoáng, tránh mùi ẩm mốc, một điều rất tốt cho nhà phô trật hẹp mà không phải ai cũng có.

Mặt bằng bố trí tầng 2 trong thiết kế nhà 4 tầng 1 tum với phòng khách và bếp liên thông.
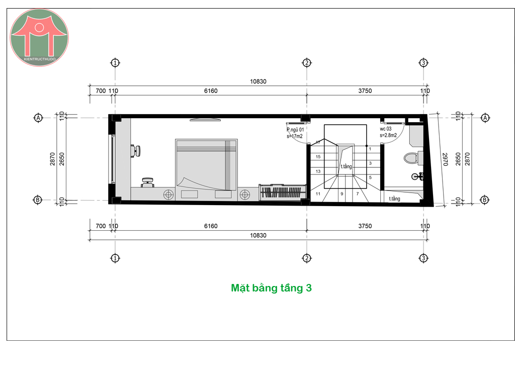
Mặt bằng tầng 3 trong thiết kế nhà 4 tầng 1 tum bố trí với phòng ngủ master kèm vệ sinh, phòng ngủ thiết kế hiện đại với giường đôi, tủ quần áo, bàn phấn kết hợp bàn làm việc có cửa sổ thông thoáng.
Tầng 3 có 01 vệ sinh nằm đối diện cầu thang, vệ sinh này có bố trí 01 ô thông tầng, chạy thẳng từ tầng mái xuống, giúp dàn trải gió và ánh sáng không chỉ vệ sinh và còn cả cầu thang cũng được hưởng lợi.

Mặt bằng bố trí tầng 3 trong thiết kế nhà 4 tầng 1 tum với phòng ngủ master.
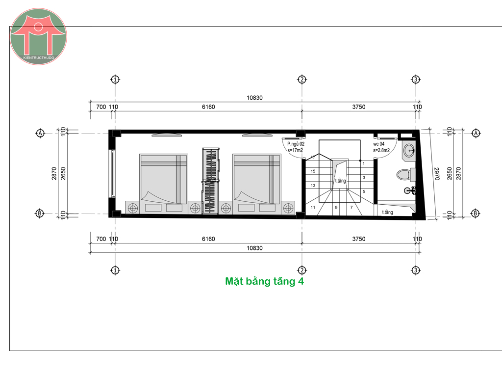
Măt bằng tầng 4 trong thiết kế nhà 4 tầng 1 tum được bố trí 02 phòng ngủ với vách ngăn là tủ quần áo hoặc giá kệ trang trí cao kịch trần, việc thiết kế kiểu này giúp cho giảm bớt diện tích hành lang, vẫn đảm bảo sự riêng tư cơ bản cho các cháu nhỏ. Phần nhà vệ sinh chung với đủ chức năng như lavabol, xí bệt, sen tắm, vẫn có ô thông tầng giúp thông thoáng cho toàn công trình.

Mặt bằng bố trí tầng 4 trong thiết kế nhà 4 tầng 1 tum với 2 phòng ngủ.
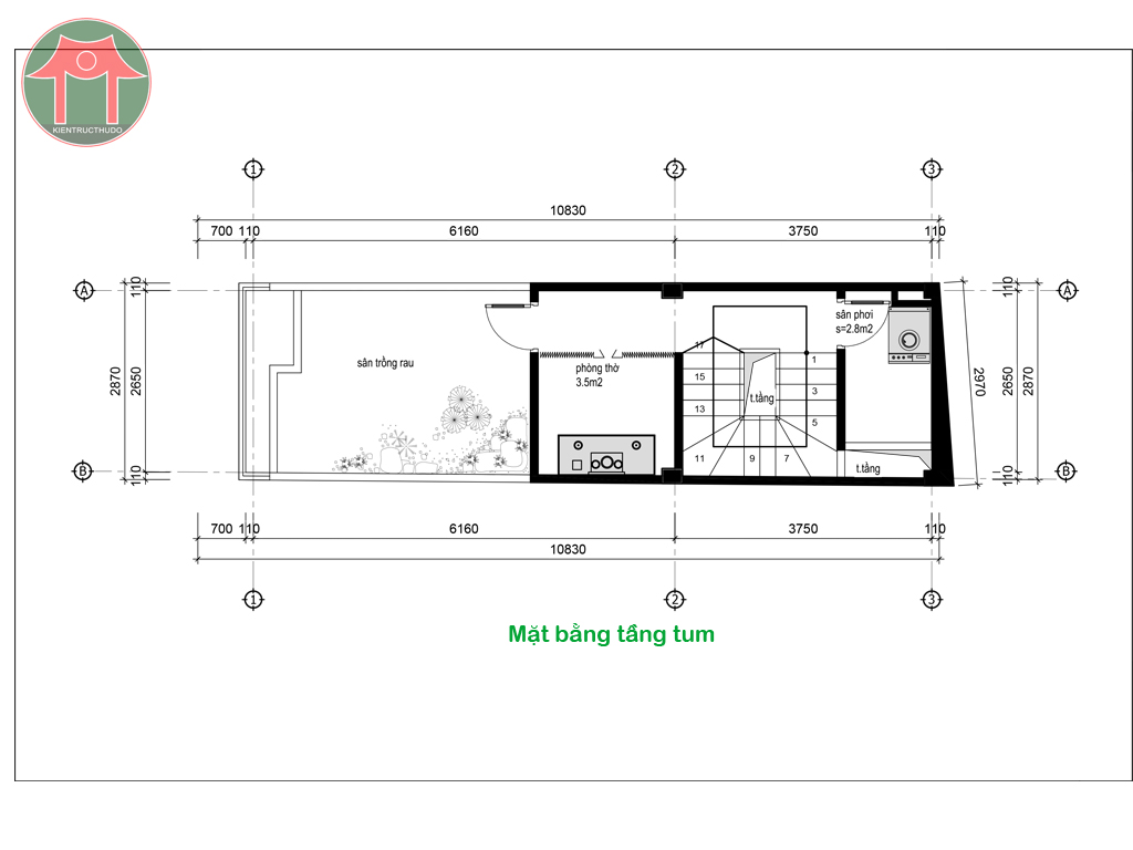
Mặt bằng tầng tum được bố trí là nơi linh thiêng thờ cúng gia tiên, phía trước với khoảng sân rộng, đây sẽ là nơi trồng những mảnh vườn xinh xắn, giúp chủ nhà có những vữa cơm với rau xanh sạch tự trồng, một điều rất thích hợp cho nhà phố trật hẹp.

Mặt bằng bố trí tầng tum trong thiết kế nhà 4 tầng 1 tum với phòng thờ và phòng giặt.
Mặt bằng mái trong thiết kế nhà 4 tầng 1 tum được bố trí là nơi để téc nước mái, sân mái được chống nóng bằng 2 lớp gạch, xung quanh có rãnh thoát nước chảy về ga thu nước. Phần mái thông tầng tại cầu thang và vệ sinh được lợp kính, giúp lấy thoáng và sáng cho cầu thang và vệ sinh các tầng.

Mặt bằng mái trong thiết kế nhà 4 tầng 1 tum, nơi bố trí téc nước mái.
Mặt đứng thiết kế nhà 4 tầng 1 tum giúp chủ nhà và thợ thi công hiểu được chiều cao tầng, các chiều cao chi tiết của cửa sổ, của ban công, qua đấy thi công đúng theo ý đồ thiết kế ban đầu.

Chi tiết mặt đứng chính trong thiết kế nhà 4 tầng 1 tum
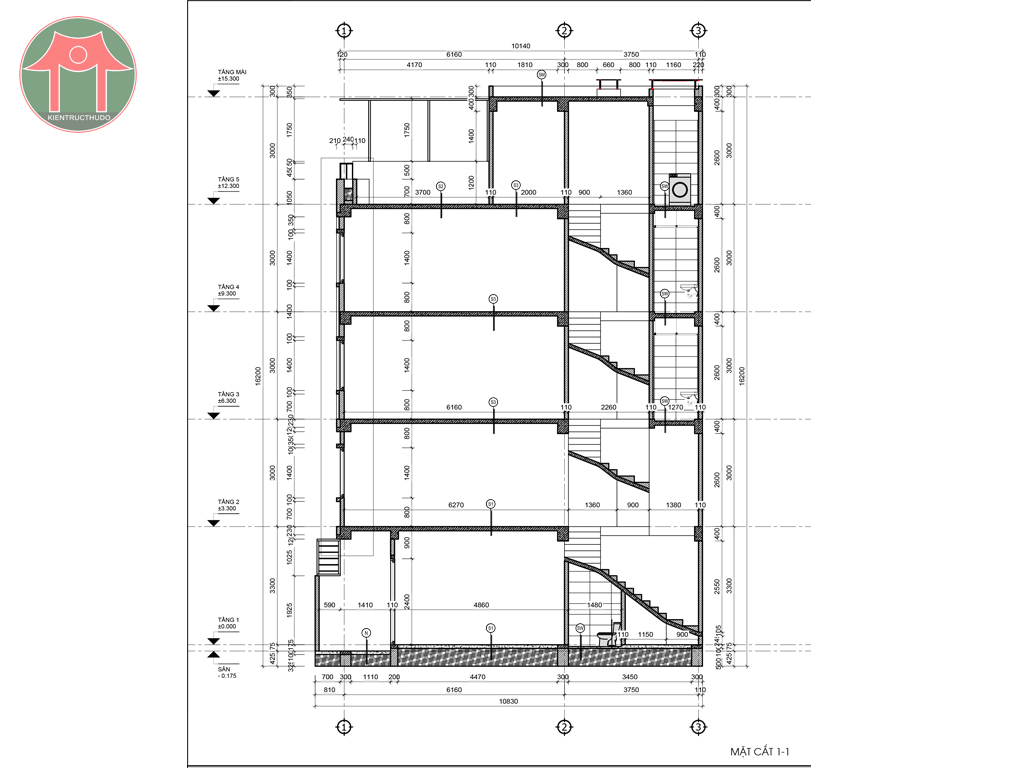
Mặt cắt công trình trong thiết kế nhà 4 tầng 1 tum giúp nhà thầu thi công hiểu hết các lớp cấu tạo của sàn, chiều dầy sàn, chiều cao của cầu thang, khoảng giật cấp khu vệ sinh, chiều cao tầng tum.

Chi tiết mặt cắt ngang công trình trong thiết kế nhà 4 tầng 1 tum
5.Chi phí thiết kế nhà 4 tầng 1 tum và chi phí thi công nhà 4 tầng 1 tum
Về chi phí thiết kế nhà 4 tầng 1 tum được tính như sau:
Chi phí thiết kế được chúng tôi tính theo mét vuông, đơn giá thiết kế áp dụng cho loại nhà ống 1 mặt tiền phong cách hiện đại là 90.000đ/m2
Tổng chi phí thiết kế nhà 4 tầng 1 tum là: 3m x 10m x 5t x 90.000đ = 13.5 triệu đồng
Trường hợp nhà nhỏ dưới 180m2 nên chi phí sẽ nhân thêm hệ số 1.2 theo quy định của công ty, tương đương 13.5tr x 1.2 = 16.2tr
Thành phần hồ sơ thiết kế nhà bao gồm:
Hồ sơ thiết kế kiến trúc
Hồ sơ thiết kế kết cấu
Hồ sơ thiết kế điện và điện và điện nhẹ
Hồ sơ cấp thoát nước
Ngoài ra chúng Tôi có miễn phí cho Anh Tiến việc lập bản vẽ xin cấp phép xây dựng và phần 3D thiết kế nội thất phòng bếp và phòng khách
về chi phí thi công nhà 4 tầng 1 tum được tính như sau:
Phần móng cọc thiết kế kích thước cọc 20x20 có chi phí thi công là : 50tr
Phần chi phí xây dựng phần thô trọn gói: 150m2 x 4.1tr/m2 = 615tr
Phần chi phí hoàn thiện trọn gói là: 150m2 x 2.5tr/m2 = 375tr
Phần nội thất tầng 2-3-4 là: 150tr
Tổng cộng chi phí thi công trọn gói là: 50tr + 615tr + 375tr + 150tr = 1.190tr
Tính trung bình, mỗi mét vuông hoàn thiện trọn gói đã bao gồm đầy đủ nội thất là 7.9tr/m2, một chi phí hợp lý cho căn nhà trong ngõ với diện tích tương đối nhỏ hẹp
Kết luận:
Như vậy, chúng tôi đã chia sẻ bài viết thiết kế nhà 4 tầng 1 tum tại Quận Hai Bà Trưng - Hà Nội của Anh Tiến, với bố trí 03 phòng ngủ cùng 1 phòng khách và bếp liên thông, với phòng thờ và phòng giặt trên tầng tum. Hy vọng với mẫu nhà này, các bạn có thể tham khảo và áp dụng cho mình kiểu thiết kế nhà tương tự, và nếu các bạn muốn tư vấn chuyên sâu hơn, vui lòng liên hệ với chúng tôi theo thông tin sau đây:
Thông tin liên hệ
T: 0915 9999 25 (Zalo) - Kts Hiển
W: kientructhudo.vn
E: thietke.kttd@gmail.com
A: 8/260 Cầu Giấy - Hà Nội
Công ty cổ phần Kiến trúc thủ đô
Trân trọng!




