1.Yêu cầu thiết kế nhà 3 tầng 1 tum 2 mặt tiền
Với kích thước lô đất 4.8m và dài 14m gồm 2 mặt ngõ, Cô Hà muốn chúng tôi thiết kế nhà 3 tầng 1 tum với phong cách hiện đại, công trình sẽ dành cho 3 thế hệ sinh sống, cần có 4 phòng ngủ, phòng thờ cùng sân phơi
Tại mỗi mặt ngõ chỉ được đua ban công, không được xây phòng, đây là yêu cầu để xin cấp phép xây dựng dành cho những công trình xây dựng trong ngõ, không có vỉa hè
2.Thuyết minh phương án thiết kế nhà 3 tầng 1 tum 2 mặt tiền
Với yêu cầu của Cô Hà, chúng tôi đã nghiên cứu và đưa ra giải pháp về mặt hình khối cho thiết kế nhà 3 tầng 1 tum hiện đại như sau:
Về hình khối kiến trúc là sự đan xen giữa hình vuông và hình chữ nhật, các chi tiết được cộng trừ khối tinh tế, giữ phần đặc làm khối phòng, phần rỗng làm lan can và ban công, các hệ lam phào chỉ tạo điểm nhất, làm xương sống trong lối thiết kế nhà hiện đại
Tầng 1 chúng tôi ốp đá màu xanh đen tạo sự khỏe khoắn vững chắc cho công trình
Tầng 2 khéo léo sử dụng lan can sắt dẹt sơn màu đen kết hợp với nền tường trắng và hệ cây xanh, giúp công trình thanh thoát nhẹ nhàng bớt đơn điệu hơn rất nhiều
Tầng 3 với hệ ban công chạy quanh 2 mặt tiền, giúp kết nối 2 mặt tiền lại với nhau, tạo nên một thể thống nhất không vụn vặt
Tầng tum với việc xử lý lan can kính giúp công trình thanh thoát hơn khi ngồi đây ngắm cảnh ra bên ngoài, phần mái che bê tông nhẹ vừa có tác dụng che nắng, vừa là điểm neo để treo buộn những dỏ phong lan quý đắt tiền
Mặt bên hông được ốp gạch inax màu trắng, bảo vệ bề mặt khỏi rêu mốc tối đa cho công trình

Ảnh phối cảnh thiết kế nhà 3 tầng 1 tum 2 mặt tiền của Cô Hà
Phối cảnh công trình trong thiết kế nhà 3 tầng 1 tum tại mặt hông thể hiện đầy đủ phần vật liệu hoàn thiện, hệ thống lan can ban công kết lợp tạo khối lồi lõm cho công trình, đường nét phào chỉ vuông vắn tạo nên tổng thể hiện đại sang trọng

Phối cảnh mặt bên trong thiết kế nhà 3 tầng 1 tum 2 mặt tiền hiện đại
Phối cảnh mặt đứng chính trong thiết kế nhà 3 tầng 1 tum phòng cách hiện đại trẻ chung với hệ lan thép hộp sơn tĩnh điện giả gỗ kéo từ tầng 2 lên mái giúp công trình liền mạch hơn, phần ban công tầng 2 được xây cao 90cm đổ đất trồng cây tạo khoảng xanh cho phòng ngủ tầng 2, hệ lan can sắt dẹt tầng 2 và tầng 3 cách điệu giúp công trình bớt nhàm chán, trên tầng tum để tạo khoảng thông thoáng tối đa, chúng tôi sử dụng lan can kính, giúp cô chú không bị hạn chế tầm nhìn, hệ cửa mặt trước và mặt hông được thiết kế nhôm kính, đảm bảo sử dụng lâu dài, tăng tuổi thọ cho công trình.

Phối cảnh đứng chính trong thiết kế nhà 3 tầng 1 tum 2 mặt tiền hiện đại
3.Thuyết minh phương án thiết kế kiến trúc nhà 3 tầng 2 mặt tiền
Mặt bằng tầng 1 được bố trí sân để xe, phòng khách, bàn ăn, cầu thang bộ đặt sau nhà và cuối cùng là bếp, nhà có 2 mặt ngõ, nên chúng tôi có bố trí mở cửa sau nhà, mục đích giúp thuận tiện khi sử dụng, mỗi khi nhà có khách, cô Hà có thể đi cửa sau mà ko ảnh hưởng đến khách khứa đang ngồi tại tầng 1
Thiết kế nhà xe với chiều rộng 4.8m và chiều sâu là 2.19m đảo bảo nhu cầu để xe máy gia đình, phần nhà xe cao hơn ngõ 20cm và thấp hơn nền phòng khách 1 bậc là 18cm, giúp sử dụng thuận tiện hơn, cô Hà thoải mái vệ sinh rửa sân mà không ảnh hưởng đến phòng khách
Thiết kế phòng khách với diện tích 18m2 bố trí sofa và kệ tivi, không gian thông thoáng liên thông giữa bếp nên có cảm giác phòng khách rất rộng, phòng khách được bố trí trần thạch cao thả 2 lớp, sàn lát gạch ceramic bóng kích thước 800x800 sang trọng
Thiết kế phòng bếp với diện tích vừa đủ cho gia đình 3 thế hệ, phòng bếp được thiết kế dây chuyền công năng hình tam giác rất thuận tiện cho sử dụng
Thiết kế cầu thang từ tầng 1 lên tầng 2 bao gồm 19 bậc, với bậc cầu thang rộng 1m, chiều rộng mặt bậc rộng 25cm và chiều cao bậc cầu thang 17.1m quá thoải mái khi sử dụng, phần gầm câu thang được thiết kế tận dụng làm nhà vệ sinh và là nơi đặt hệ máy lọc nước cho ngôi nhà.

Mặt bằng công năng tầng 1 trong thiết kế nhà 3 tầng 1 tum 2 mặt tiền
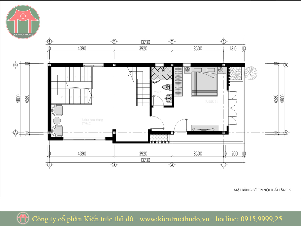
Mặt bằng tầng 2 trong thiết kế nhà 3 tầng 1 tum 2 mạt tiền được thiết kế 01 phòng sinh hoạt chung và phòng ngủ cô chú
Phòng sinh hoạt chung với diện tích 27m2 có bố trí cửa sổ rộng thoáng, tiếp cận với mặt ngõ, tạo ánh sáng và gió tự nhiên cho ngôi nhà, tại phòng sinh hoạt chung này, chúng bố trí xoay cầu thang, đưa cầu thang vào giữa nhà, ngăn giữa phòng sinh hoạt chung với phòng ngủ.
Thiết kế phòng ngủ master tại tầng 2 với diện tích 14m2 bố trí gồm có giường ngủ, kệ tivi, tủ quần áo cùng vệ sinh khép kín đầy đủ công năng từ tắm kính, xí bệt, lavabo, giúp thuận tiện khi sử dụng, phòng ngủ trước nhà này có có hệ ban công 2 mặt tiền cực kì thông thoáng, ban công này vừa tạo khối khỏe khoắn cho mặt tiền, vừa tăng diện tích khi sử dụng, một chi tiết tuy nhỏ, nhưng cực kì hữu ích mà ko phải thiết kế nhà nào cũng có được.

Mặt bằng công năng tầng 2 trong thiết kế nhà 3 tầng 1 tum 2 mặt tiền
Mặt bằng tầng 3 trong thiết kế nhà 3 tầng 1 tum 2 mặt tiền được bố trí bao gồm 02 phòng ngủ cùng vệ sinh chung, thiết kế phòng ngủ phía trước dành cho cặp vợ chồng trẻ, phòng ngủ phía sau là nơi dự phòng sau này khi có cháu nhỏ, mỗi phòng ngủ rộng trung bình 15m2 có bố trí đầy đủ đồ nội thất như giường ngủ đôi, tủ quần áo, bàn phấn, bàn học và bàn làm việc cùng kệ tivi liền tường, đảm bảo nhu cầu sử dụng cơ bản.
Hệ thống ban công và logia mặt trước và mặt sau tận dụng mở cửa sổ tối đa, giúp lưu thông không khí cho toàn bộ công trình, phần cầu thang với việc mở cửa 2 cánh ra ban công cực thoáng mát, cửa này sẽ lấy sáng cho cả ô cầu thang và khu vệ sinh chung.

Mặt bằng công năng tầng 3 trong thiết kế nhà 3 tầng 1 tum 2 mặt tiền
Mặt bằng tầng tum trong thiết kế nhà 3 tầng 1 tum 2 mặt tiền được bố trí với phòng thờ sau nhà và phần ban công rộng thoáng phía trước, phần ban công với diện tích lên tới 18m2 này sẽ là nới ngắm cảnh, thưởng thức bữa tiệc ngoài trời cho cả gia đình mỗi khi có dịp lễ tết hoặc liên hoan gia đình, phòng giặt bố trí phí trên của phòng vệ sinh tầng 2 và tầng 3 với máy giặt và máy sấy, việc thiết kế phòng vệ sinh và phòng giặt đồng trục, phần nào tiết kiệm được chi phí thi công và đặc biệt hệ thống thoát nước cũng đảm bảo an toàn hơn khi sử dụng.

Mặt bằng công năng tầng tum trong thiết kế nhà 3 tầng 1 tum 2 mặt tiền
Thiết kế chi tiết Mặt đứng chính công trình giúp đội thi công hiểu rõ về chiều cao tầng, các khoảng đua ban công mặt bên, chi tiết lan can sắt, lan can kính, giúp thi công đúng ý đồ thiết kế ban đầu.

Thiết kế chi tiết mặt đứng trong thiết kế nhà 3 tầng 1 tum 2 mặt tiền
Thiết kế chi tiết kiến trúc Mặt bên công trình giúp đội thi công hiểu được vị trí cửa đi, cửa sổ, khoảng đua của ban công trước nhà, các chi tiết ốp lát tầng 1, chiều cao của cửa, của ban công, logia và chiều cao tầng.

Thiết kế chi tiết mặt bên trong thiết kế nhà 3 tầng 1 tum 2 mặt tiền
4.Thiết kế nội thất nhà 3 tầng 1 tum phong cách hiện đại
Sau khi đã hoàn thành phần thiết kế nhà 3 tầng 1 tum 2 mặt tiền cho phần kiến trúc và công năng, chúng tôi tiến hành tư vấn thiết kế nội thất bên trong công trình, phần này chúng tôi làm hoàn toàn miễn phí, mục đích giúp cô Hà có một căn hộ đẹp từ ngoài vào trong.
Để giúp cô chú chủ nhà dễ hiểu, chúng tôi bố trí góc phối cảnh thiết kế nội thất tầng 1 trên cao, giúp cô chú hiểu hết được các công năng cơ bản, vị trí đồ nội thất, màu sắc và vật liệu của đồ nội thất, như trong ảnh này, sofa được làm bằng gỗ hương đá, bàn ăn bằng gỗ màu vàng nhạt, hệ tủ bếp chữ L dùng gỗ xoan ta, cầu thang được ốp gỗ lim nam phi mặt bậc, cổ bậc ốp đá trắng ý, lan can cầu thang là lan can kính, trụ inox kết hợp.
Phần sàn nhà được lát gạch kích thước 800x800 sang trọng, các điểm nhấn màu đen bo xung quanh giúp không gian hiện đại hơn.

Thiết kế nội thất tầng 1 trong thiết kế nhà 3 tầng 1 tum 2 mặt tiền
Phối cảnh thiết kế nội thất phòng khách nhìn từ cửa chính giúp cô chú hình dung hết được vật liệu hoàn thiện, vị trí đồ nội thất, màu sơn tường trắng và trần thạch cao 2 lớp sơn trắng có bố trí ánh sáng vàng, giúp không gian trong trọng và hiện đại hơn rất nhiều, đối diện bà ăn đươc thiết kế treo tranh bộ gia đình, giúp tất cả các thành viên thường lãm mỗi khi đi lên tầng 2 hoặc mỗi khi ngồi ăn, cùng hàn huyên tâm sự và nhỡ lại một thời quá khứ.

Phối cảnh phòng khách tầng 1 trong thiết kế nhà 3 tầng 1 tum 2 mặt tiền
Phối cảnh thiết kế nội thất phòng khách - hướng nhìn từ bếp ra ngoài giúp cô chú hình dung việc bố trí cửa sổ sau lưng phòng khách và vách kính lớn khu vực bàn ăn, với phần trần thạch cao tròn tạo cảm giác động, giúp bữa ăn thêm ngon miệng hơn, nếu bạn tinh ý sẽ thấy việc sàn nhà được điểm bằng màu đen, chi tiết nhỏ này làm cho tổng thể phòng khách sang trọng như bước vào khách sạn 5 sau vậy.

Phối cảnh thiết kế nội thất phòng bếp liên thông phòng khách
Phối cảnh thiết kế nội thất phòng bếp, hướng từ phòng khách nhìn vào bếp giúp cô chú nhìn thấy hết màu sắc vật liệu hoàn thiện, tủ bếp được thiết kế bằng gỗ xoan ta, sơn PU màu cánh dán nhạt, bố trí theo dây truyển hình tam giác với đầy đủ công năng như tủ lạnh, chậu rửa, bếp điện, phần cầu thang lên tầng 1 thiết kế mặt gỗ cổ đá, lan can tay vin kính, tận dụng dưới gầm cầu thang là cửa vệ sinh màu tối.
Phần nền phòng bếp lát gạch với điểm nhấn màu đen được bo xung quanh đồ nội thất, làm nổi bật toàn bộ không gian bếp.

Phối cảnh bếp tầng 1 trong thiết kế nhà 3 tầng 1 tum 2 mặt tiền
5.Chi phí thiết kế kiến trúc nội ngoại thất và chi phí thi công nhà 3 tầng 1 tum hai mặt tiền của Cô Hà
Về chi phí thiết kế kiến trúc nội ngoại thất nhà 3 tầng 1 tum 2 mặt tiền:
Chi phí thiết kế được tính theo mét vuông sàn, áp dụng với loại hình nhà ống 2 mặt tiền, đơn giá thiết kế 120.000đ/m2, tổng thi phí thiết kế nhà 3 tầng 1 tum 2 mặt tiền là: 220m2 sàn x 120.000đ/m2 = 26.000.000đ (Hai mươi sáu triệu đồng)
Hồ sơ thiết kế nhà bao gồm 4 phần, được in A3 đóng quyển với đầy đủ nội dung phục vụ thi công như: thiết kế kiến trúc, thiết kế kết cấu, thiết kế hệ thông điện, thiết kế hệ thống cấp thoát nước.
Hồ sơ thiết kế nội thất tầng 1 được chúng tôi miễn phí, vì trong thời gian kí hợp đồng trùng với thời điểm chính sách miễn phí thiết kế nội thất tầng 1 cho khách hàng (từ ngày 10 đến 20 hàng tháng)
Về chi phí thi công nhà 3 tầng 1 tum 2 mặt tiền như sau:
Chi phí nhân công, tính theo mét vuông xây dựng, áp dụng cho nhà trong ngõ nhỏ hơn 2 mét có 2 mặt tiền là 1.4tr/m2 sàn xây dựng, tổng chi phí là: 220m2 x 1.4tr/m2 = 308.000.000đ (ba trăm linh tám triệu đồng)
Phần sàn đua ban công không có mái tính 50% cụ thể như sau: ban công tầng 2, tầng 3, mái tum viền xung quanh: 22m2 x 700.000đ/m2 = 15.400.000đ (mười lăm triệu bốn trăm nghìn đồng)
Phần lát sân và thi công cổng, ốp gạch vào trụ cổng, phần này tính theo gói, tổng chi phí là 9.000.000đ (Chín triệu đồng)
Phần nhân công ốp gạch vào tường tầng 1 mặt hông đươc tính theo mét vuông, chi phí nhân công là 150.000đ/m2, diện tích 25m2 x 150.000đ/m2 = 3.750.000đ (ba triệu bẩy trăm năm mươi nghìn đồng)
Phần ốp gach inax và tường sau nhà tầng 3-tum: diện tích ốp 30m2 x 150.000đ = 4.500.000đ (bốn triệu năm trăm nghìn đồng)
Chi phí thi công điện nước tính theo mét vuông sàn là 150.000đ (một trăm năm mươi nghìn đồng), tổng chi phí thi công điện nước là: 220m2 x 150.000đ/m2 = 33.000.000đ (ba mươi ba triệu đồng)
Tổng cộng chi phí nhân công toàn nhà là: 308.000.000đ + 15.400.000đ + 9.000.000đ + 3.750.000đ + 4.500.000đ + 33.000.000đ = 373.650.000đ (ba trăm bẩy mươi ba triệu sáu trăm năm mươi nghìn đồng) (1)
Chi phí ép cọc bê tông: 60tr đồng
Chi phí vật tư phần thô bao gồm gạch đặc, xi năng, cát, đá: tính theo mét vuông xây dựng là: 2.500.000đ x 220m2 = 550.000.000đ (năm trăm năm mươi triệu đồng)
Chi phí vật tư hoàn thiện bao gồm gạch ốp lát, lan can, cầu thang, sơn, thiết bị điện nước, thiết bị vệ sinh là: 2.100.000đ x 220m2 = 462.000.000đ (bốn trăm sáu mươi hai triệu đồng)
Tổng cộng chi phí hoàn thiện là: 550.000.000đ + 462.000.000đ = 1.012.000.000đ (một tỉ không trăm mười hai triệu đồng) (2)
Tổng cộng chi phí nhân công và vật tư hoàn thiện đi vào sử dụng là: (1) + (2) = 373.650.000đ + 1.012.000.000đ = 1.383.650.000đ (một tỉ ba trăm tám mươi ba triệu sáu trăm năm mươi nghìn đồng)
Trung bình để hoàn thiện đưa vào sử dụng công trình nhà cô Hà với 3 tầng 1 tum 2 mặt tiền, chi phí sẽ là 6.289tr/m2 sàn xây dựng, thời gian hoàn thành là 6 tháng.
Kết Luận:
Qua bài viết thiết kế nhà 3 tầng 1 tum 2 mặt tiền này, hy vọng sẽ giúp những bạn đang có ý định thiết kế và xây nhà có được những kiến thức cơ bản để tính toán công năng và dự trù chi phí cho riêng mình, và nếu bạn muốn tư vấn chuyên sâu, hãy liên lạc với Chúng Tôi theo thông tin sau đây:
Thông tin liên hệ: KTS Hiển
T: 0915 9999 25 (Zalo)
E: thietke.kttd@gmail.com
A: 8/260 Cầu Giấy - Hà Nội
Công ty cổ phần Kiến trúc thủ đô
Trân trọng!


