1.Mô tả sơ bộ về yêu cầu thiết kế nhà 3 tầng 1 tum tại Đông Anh - Hà Nội
Lô đất thiết kế nhà có hướng đông nam, với rộng có kích thước 4.1m chiều sâu 14,9m nằm trong khu dân cư đông đúc tại thị trấn Đông Anh - Hà Nội, Chủ đầu tư là Chú Hoạch, với yêu cầu thiết kế nhà 3 tầng 1 tum dành cho gia đình 2 thế hệ với 4 phòng ngủ, 1 phòng khách, 1 phòng bếp, có thiết kế thang máy và thang bộ.
Lô đất thiết kế được chúng tôi tìm hiểu có nền đất thổ cư, chỉ có một mặt tiền, 3 mặt còn lại tiếp xúc với nhà dân cao tầng đã xây dựng.
Dựa vào yêu cầu thiết kế và đặc điểm lô đất, chúng Tôi có để xuất phương án thiết kế nhà 3 tầng 1 tum như sau, xin mời các bạn cùng xem.

Ảnh phối cảnh mặt đứng thiết kế nhà 3 tầng 1 tum tại Đông Anh - Hà Nội
2.Phối cảnh thiết kế nhà 3 tầng 1 tum phong cách hiện đại
Lô đất thiết kế tọa lạc trong khu dân cư đông đúc tại Đông Anh - Hà Nội với chỉ 1 mặt tiền đặc trưng cho nhà phố, điều này khiến chúng Tôi hướng tới một lỗi thiết kế nhà hiện đại, sang trọng và trẻ chung, hình khối thiết kế đơn giản vuông vắn và không cầu kì, kiểm suốt trong thiết kế với gam màu trắng nhẹ nhàng, phần ban công được thiết kế thò thụt giúp tăng diện tích phòng khi sử dụng và tạo điểm nhấn cho mặt chính ngôi nhà, phần phòng đua ra bên ngoài được ốp gạch inax màu chì, tạo điểm nhấn cho khối lồi, phần thụt vào được bố trí làm logia với hệ lan can sắt dẹt sơn tĩnh điện, tạo điểm lõm hút gió cho công trình.
Mặt tiền tầng 1 trong phối cảnh nhà 3 tầng 1 tum được ốp đá Granite tự nhiên màu xanh đen, giúp công trình nổi bật sang trọng, tạo cảm giắc chắc chắn.
Tầng tum với bồn cây sơn màu xi măng tạo nét độc đáo cho phần sân tum, nơi chủ nhà trồng cây xanh bóng mát lá tròn với chiều cao trung bình 2m

Thiết kế nhà 3 tầng 1 tum phong cách hiện đại với điểm nhấn tường ốp màu ghi xám
Góc phối cảnh nhà 3 tầng 1 tum trên cao này giúp Chú Hoạch hình dung hết vật liệu ngoại thất cũng như các bố trí ban công, logia, phần sân chơi phía tum.

Phối cảnh góc trên cao trong thiết kế nhà 3 tầng 1 tum phong cách hiện đại
Phối cảnh chi tiết phần sân chơi trong thiết kế nhà 3 tầng 1 tum, phần sân được lát đá Thanh Hóa tự nhiên, giúp thoáng mát về mùa hè, hai bên trái và phải với hệ bồn cây gạch xây được sơn màu xi măng, tạo nét độc lạ trong thiết kế và cũng cực kì thực dụng

Ảnh phối cảnh sân thượng nhà 3 tầng 1 tum với nền lát đá
3.Thiết kế công năng nhà 3 tầng 1 tum
Sau khi đã thống nhất cơ bản về phối cảnh và ngôn ngữ thiết kế nhà 3 tầng 1 tum, Chúng Tôi tiến hành lên phương án thiết kế mặt bằng công năng, với chiều rộng 4.1m và chiều sâu 14.9m chúng Tôi bố trí như sau:
Mặt bằng công năng tầng 1 được bố trí gồm nhà xe, phòng khách, cầu thang máy, cầu thang bộ, bếp và phòng ăn liền nhau
Phần diện tích xe máy rộng 4.1m và sâu 2.5m đủ thoải mái cho nhu cầu để xe gia đình, phần sân để xe máy được thiết kế cao hơn vỉa hè 20cm và thấp hơn nền phòng khách 18cm, điều này giúp cho việc dắt xe đi lại thuận tiện khi sử dụng, việc thấp hơn nền phòng khách 18cm giúp cho việc chú Hoạch sẽ dễ dàng vệ sinh sàn xe máy mà không ảnh hưởng đến nền phòng khách. Sàn để xe được lát gạch trống trơn, bên phải có bố trí tủ giầy, còn bên trái có vòi nước cùng hệ máy bơm sinh hoạt gia đình.
Thiết kế phòng khách với diện tích 15m2 bố trí sofa chữ L và kệ tivi, diện tích phòng khách không quá lớn, tuy nhiên không gian được liên thông với phần hành lang cầu thang máy, tạo cảo giác rộng dãi hơn nhiều, đi qua phòng khách sẽ là cầu thang bộ và cầu thang máy, khu vệ sinh được tận dụng dưới gầm cầu thang, có cửa mở quay vào trong, kích thước của rộng 75cm vào cao 2.18m
Thiết kế phòng bếp tại tầng 1 khá rộng, diện tích hơn 22m2 thoải mái cho gia đình sử dụng, hệ bàn bếp chữ L bố trí theo hình tam giác, từ tủ lạnh đến chậu rửa và bếp rồi đến bàn ăn bố trí vòng tròn khoa học, tối ưu di chuyển cho người sử dụng.
Chiều cao tầng 1 lên tầng 2 là 3.3m được bố trí 21 bậc thang, mỗi bậc thang cao trung bình 157mm.

Thiết kế mặt bằng công năng tầng 1 với phòng khách, cầu thang máy, cầu thang bộ, bếp phía sau nhà
Mặt bằng tầng 2 trong thiết kế nhà 3 tầng 1 tum được bố trí bao gồm 02 phòng ngủ cùng vệ sinh khép chung, nhu cầu sử dụng cho Ông bà và cho cháu lớp lớp 10.
Thiết kế phòng ngủ phía trước có diên tích trung bình 18m2 được bố trí thò thụt tạo khối mặt tiền, bố trí bao gồm 01 cửa đi và 01 cửa sổ, thoải mái thông sáng và gió tự nhiên cho căn phòng
Phòng ngủ phía sau với diện tích 18m2 thiết kế 01 ô thông tầng chạy thẳng lên mái, giúp lưu thông không khí cho toàn bộ căn phòng
Phòng vệ sinh chung với gần 4m2 đáp ứng đầy đủ như cầu sử dụng gồm lavabo, tắm đứng, xí bệt, giải pháp thông gió được thiết kế trên trần thạch cao, nối với ống nằm trong hộp kĩ thuật chạy thẳng lên mái.

Thiết kế mặt bằng công năng tầng 2 với 2 phòng ngủ và vệ sinh chung
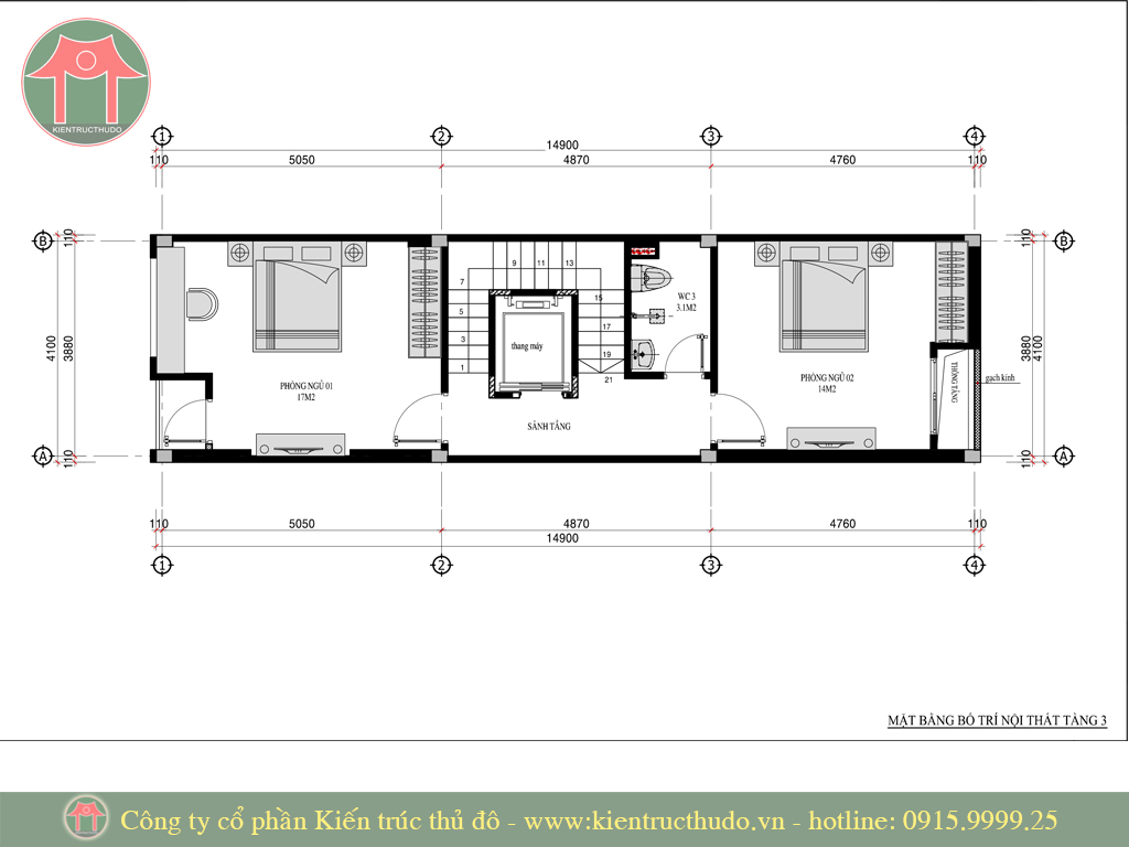
Mặt bằng tầng 3 thiết kế tương tự tầng 2 với diên tích phòng tương đương, khách biệt chỉ là cách thiết kế nội thất cho từng cá nhân sử dụng, chú Hoạch sẽ ở phòng ngủ phía trước, dành phòng ngủ phía sau cho cô công chúa nhỏ.

Thiết kế công năng tầng 3 với phòng ngủ bố mẹ và phòng ngủ con
Mặt bằng tầng tum được bố trí là nơi thờ cúng phí trước cùng với sân chơi, phía sau được bố trí là phòng giặt và sân phơi với đầy đủ máy sấy và máy giặt, tại đây chúng Tôi có bố trí vòi nước để thuận tiên cho việc vệ sinh sân phơi.
Thiết kế phòng thờ phía trước với diện tích 10m2, ban thờ đặt theo hướng cửa chính nhà, có bố trí cửa sổ thông thoáng, phía trước là sân phơi được bố trí trông cây, có thể đưa lư đồng hóa vàng và kê bộ bàn ghế nhỏ, giúp Chú Hoạch thư thái chờ hương, mỗi khi lên thăm viếng tổ tiên.

Thiết kế mặt bằng công năng tầng tum với phòng thờ, sân chơi phí trước, phía sau là sân phơi
Mặt đứng công trình trong thiết kế nhà 3 tầng 1 tum thể hiện các chi tiết kĩ thuật, chiều cao tầng, chiều cao cửa, giúp thợ đọc và hiểu bản vẽ để thi công theo đúng phối cảnh thiết kế.

Ảnh minh họa chi tiêt thiết kế kiến trúc nhà 3 tầng 1 tum phục vụ thi công
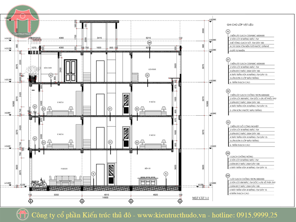
Mặt cắt ngang công trình làm rõ hơn những chi tiết mặt đứng, thể hiện các chi tiết bên trong nhà, các lớp cấu thạo sàn, trần, cách sắp xếp bố trí nội thất cơ bản cho từng không gian thiết kế.

Chi tiêt thiết kế mặt cắt ngang công trình phục vụ thi công
4.Chi phí thiết kế và thi công nhà 3 tầng 1 tum
Với chi phí thiết kế chỉ 18 triệu đồng cho toàn bộ hồ sơ thiết kế nhà 3 tầng 1 tum bao gồm 4 phần:
Phần thiết kế kiến trúc.
Phần thiết kế kết cấu.
Phần thiết kế điện, điện nhẹ.
Phần thiết kế hệ thống cấp thoát nước toàn công trình.
Một chi phía rất hợp lý cho một thiết kế nhà hiện đại đẹp.
Về chi phí thi công nhà 3 tầng 1 tum như sau:
Công trình nàm tại khu đô thị mới của Huyện Đông Anh - Hà Nội, một mặt tiếp giáp với đường nội bộ rộng 7m, giao thông thuận lợi, chi phí nhân công xây dựng là 1.4tr/m2 sàn, chi phí nhân công điện nước là 150.000đ/m2 sàn.
Với chuyên môn và kinh nghiệm không nhiều, thời gian bận rộn cho những dự án cá nhân khác, Chú Hoạch cuối cùng đã lựa chọn phương án thi công trọn gói với chi phí 4.86tr/m2 sàn xây dựng theo đúng hồ sơ phối cảnh đã chốt, chi phí trên chưa bao gồm đồ nội thất và phần ép cọc móng (sau này thi công thực tế ép cọc là 58tr)
Kết luận:
Như vậy là chúng Tôi đã giới thiệu đến các bạn 01 mẫu thiết kế nhà 3 tầng 1 tum tại Đông Anh - Hà Nội với ngôn ngữ thiết kế hiện đại, bao gồm 4 phòng ngủ, với tổng diện tích sàn 280m2, chi phí thi công 1.36 tỉ đồng, hy vọng với mẫu thiết kế nhà 3 tầng 1 tum này sẽ giúp bạn có cái nhìn tổng thể để tiến hành xây dựng căn hộ tương tự cho mình, và nếu bạn muốn tư vấn, hãy liên hệ cho chúng Tôi theo thông tin sau:
Thông tin liên hệ
T: 0915 9999 25 (Zalo)
W: kientructhudo.vn
E: thietke.kttd@gmail.com
A: 8/260 Cầu Giấy - Hà Nội
Công ty cổ phần Kiến trúc thủ đô
Trân trọng!

