Sơ lược về công trình
Công trình: chung cư mini 4.5 tầng
Địa điểm: Cầu Giấy - Hà Nội
Chủ đầu tư: Anh Long
Diện tích sàn: 92m2
Tổng diện tích sàn: 585m2
Chi phí xây dựng: 3.15 tỉ trọn gói chìa khóa trao tay (có dự toán chi tiết đính kèm)
Với mức đầu tư chưa đến 5tr/m2 sàn, khả năng thu hồi vốn sau 5.5 năm, quả thật đây chính là kênh đầu tư an toàn và hiệu quả cho những ai đang và có ý định đầu tư chung cư mini cho thuê

Phối cảnh góc công trình, công trình chúng tôi sử dụng gam màu trắng kết hợp khung nhôm đen, khối đế ốp đá, tạo cảm giác vững trãi cho ngôi nhà, cùng với đó là hoa văn họa tiết, minh họa theo lối kiến trúc tân cổ điển, tạo cảm giác sang trọng, thu hút mọi ánh nhìn, dù đứng bất cư nơi đâu, không góc cạnh, không điểm chết

phối cảnh góc người lại sẽ cho chúng ta thấy rõ hơn điều này

Với lợi thế mặt tiền lên tới gần 8m, chúng tôi khéo léo lựa chọn lối thiết kế đối xứng tối giản, giúp công trình trở nên hùng vĩ hơn, tạo cảm giác an toàn và chắc chắn, đường nét hoa văn phảo chỉ nhẹ, tạo cảm giác thanh thoát tựa mây trời

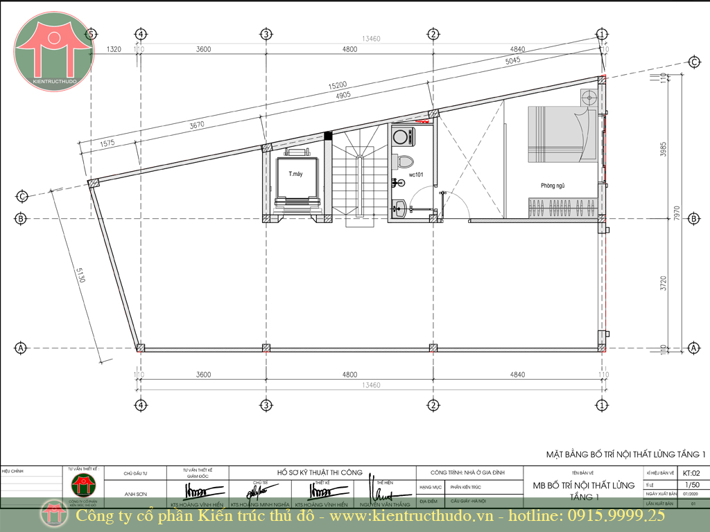
Mặt bằng tầng 1, nơi tập chung phần lớn diện tích dành cho không gian để xe, một phần nhỏ dành cho thang bộ, thang máy, nơi giao thoa giữa giao thông trục đứng và trục ngang của công trình, xen kẽ những góc cạnh được chúng tôi xử lý kéo léo bằng cách đưa hộp kỹ thuật và ông thoáng thông tầng, giúp căn hộ sử dụng tối đa phần thông gió, cung cấp gió tự nhiên cho toàn nhà, tại không gian tầng 1, bố trí đủ 01 phòng cho thuê cùng gác xép lửng, tăng diện tích và không gian sống, kích thích người thuê lựa chọn quyết định thuê phòng

mặt bằng lửng tầng 1 là nơi ngủ nghỉ, còn phía dưới, nhường chỗ cho bếp và phòng khách, việc gác xép đặt phía trên nhà wc và bếp là tối ưu cho căn hộ

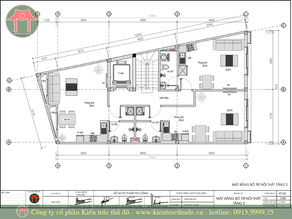
Mặt bằng tầng 2 bố trí được 03 phòng với diện tích trung bình 25m2, mỗi phòng được bố trí 01 gác xép, diện tích trung bình 10m2, phần phía dưới được chúng tôi bố trí đầy đủ công năng bao gồm: phòng bếp + phòng khách + phòng wc khéo kín, tầng lửng là nơi khách thuê ngủ tại đây, rất phù hợp với gia đình nhỏ hoặc người đi làm, cần không gian vừa đủ, lại tiện nghi giữa trung tâm thủ đô
Việc giặt và phơi, chúng tôi thiết kế trên tầng tum, mỗi hộ sẽ được bố trí 01 ô phơi đồ, có khung thép bảo vệ, loại bỏ khả năng thất lạc đồ đạc mỗi lần phơi đồ

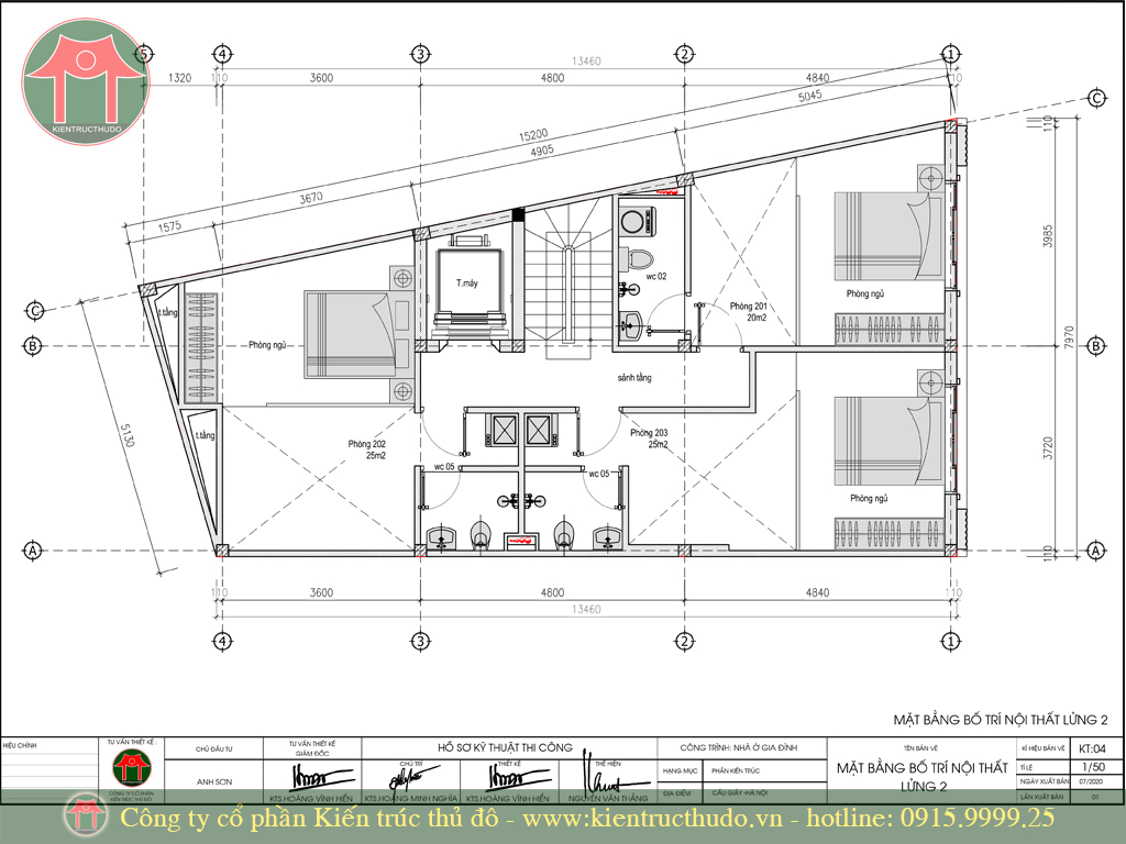
Mặt bằng lửng tầng 2 của căn hộ, nơi ngủ nghỉ của khách thuê phòng

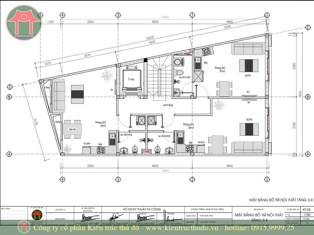
Mặt bằng tầng 3-4 - căn hộ cho thuê, nơi tập chung sống chủ yếu với phòng khách và bếp liên thông

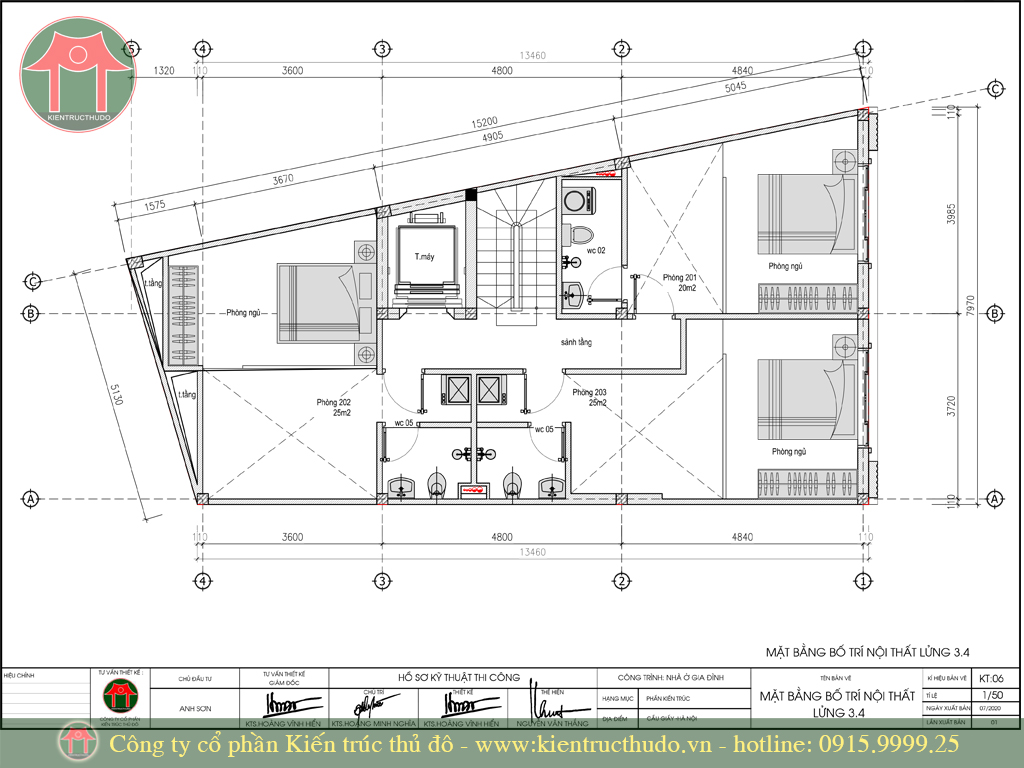
Mặt bằng lửng tầng 3-4 căn hộ cho thuê, nơi ngủ nghỉ của người sử dụng

Mặt bằng tầng tum, nơi bố trí mỗi căn hộ là 01 ô riêng, những bộ đồ đắt tiền của khách thuê phòng sẽ hoàn toàn yên tâm khi phơi tại đây

Mặt bằng tầng kĩ thuật thang máy, nơi bố trí bể nước mái, phục vụ việc cấp nước cho toàn công trình

Mặt đứng chính công trình với lối thiết kế tân cổ điển nhẹ nhàng đầy sức mạnh, chi tiết kĩ thuật tỉ mỉ, hình ảnh 3D vật liệu rõ dàng, giúp chủ nhà kiểm soát tốt nhất về thẩm mỹ

mặt cắt ngang công trình

Vâng, với chi phí thiết kế và thi công trọn gói chỉ chưa tới 5tr/m2, đây quả thật là bát cơm thạch sanh, ăn cả đời không hết, khả năng thu hồi vốn siêu nhanh, chỉ trong vòng chưa tới 6 năm, nếu bạn còn băn khoăn, người khác đã làm rồi, hãy liên hệ ngay cho chúng tôi, hãy để chúng tôi giúp bạn
Thông tin liên hệ
T: 0915 9999 25 (zalo)
W: kientructhudo.vn
E: thietke.kttd@gmail.com
A: 8/260 Cầu Giấy - Hà Nội
Công ty cổ phần kiến trúc thủ đô
Trân trọng!


