Yêu cầu thiết kế chung cư mini 6 tầng 1 tum tại Hà Nội
Thông tin cơ bản về công trình:
Chủ đầu tư: Anh Tiến
Địa điểm xây dựng: Phố Phương Mai - Quận Đống Đa - Thành phố Hà Nội
Diện tích lô đất: 80m2
Chiều cao tầng: 6.5 tầng
Yêu cầu thiết kế: Tầng 1, thiết kế vị trí để xe, cửa hàng kinh doanh, có lối đi riêng biệt cho các căn hộ chung cư bên trên
Tầng lửng:Thiết kế văn phòng cho thuê, với vệ sinh khép kín, có lối đi riêng biệt
Tầng 2-3-4:Thiết kế căn hộ cho thuê, đầy đủ công năng bao gồm: phòng ngủ, bếp, phòng khách, phòng ăn, phòng giặt, sân phơi, vệ sinh, ban công...
Tầng 5: Thiết kế căn hộ dành cho gia đình bao gồm bố mẹ và con cái, sử dụng với 02 phòng ngủ, phòng khách, bếp, vệ sinh khép kín tại phòng ngủ và vệ sinh chung cho khu vực công cộng, phòng giặt, phòng thờ đặt tại phòng khách, ban công và logia riêng biệt
Tầng 6: Thiết kế nhà dành cho ông bà, bao gồm 01 phòng ngủ, 01 phòng khách, phòng bếp, 02 khu vệ sinh, 01 phòng tập thể thao liên thông với khoảng ban công ngoài trời
Tầng tum: Được thiết kế phòng thờ và phân chơi dành cho cả gia đình sử dụng, trên tầng tum có bố trí 01 bếp riêng biệt, mục đích để tổ chức những bữa tiệc ngoài trời, mỗi dịp tụ họp đông đủ thành viên trong gia đình
Phần mái yêu cầu để được hệ thống bồn nước và thái dương năng, đối với khu vực mái nhẹ, sử dụng kết hợp với cây xanh, tạo khoảng thoáng tối đa cho công trình

Ảnh minh họa lô đất dự kiến thiết kế chung cư mini 6 tầng 1 tum tại Hà Nội
Phương án thiết kế chung cư mini 6 tầng 1 tum tại Hà Nội.
Với yêu cầu thiết kế của Anh Tiến, chúng tôi đã tìm tòi, đào sâu suy nghĩ, dựa trên những yêu tố về dân số, về số phòng, về diện tích, về khoảng thoáng của công trình để lthiêt kế phương án bố trí mặt bằng công năng như sau
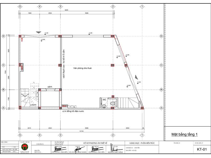
Tầng 1: bố trí văn phòng cho thuê có vệ sinh khép kín, đồng thời mở 01 lối cửa chính tại mặt ngõ, giúp các căn hộ bên trên có lối đi riêng biệt, giúp cho việc kinh doanh tại tầng 1 trở nên dễ dàng hơn

Ảnh minh họa mặt bằng tầng 1, thiết kế chung cư mini 6 tầng 1 tum tại Hà Nội.
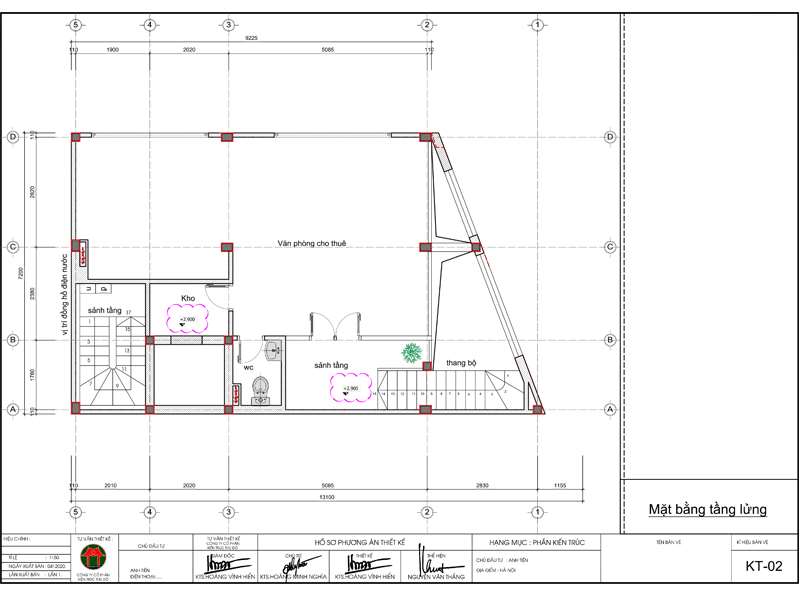
Tầng lửng: được thiết kế cầu thang riêng biệt, giúp chủ đầu tư chủ động cho thuê mà không ảnh hưởng đến tầng 1 hoặc các khu dân cư trên tầng 2-3-4-5-6, phần cầu thang máy trên tầng lửng được khóa lại, người thuê văn phòng trên tầng lửng chỉ có thể di chuyển bằng thang bộ
Tầng lửng được bố trí thông tầng với tầng 1 giúp không gian thông thoáng, các vách bao che là vách kính, mặt ngoài cũng được lắp kính, đảm bảo thẩm mĩ, tăng vẻ sang trọng cho căn hộ, phù hợp với nhu cầu thuê văn phòng từ 8 đến 16 người
Tầng lửng này, chúng tôi có bố trí 01 vệ sinh khép kín, đáp ứng nhu cầu cơ bản của văn phòng cho thuê, tại tầng lửng này, còn bố trí 01 kho dành cho văn phòng.

Ảnh minh họa mặt bằng tầng lửng, thiết kế chung cư mini 6 tầng 1 tum tại Hà Nội.
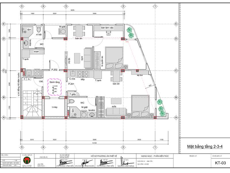
Thiết kế mặt bằng công năng tầng 2-3-4 - tầng điển hình cho căn hộ cho thuê:
Với diện tích sàn 80m2 cộng thêm việc đua ban công 2 chiều ra làm phòng, nâng tổng số diện tích lên khoảng 100m2, chúng tôi thiết kế nội thất làm 02 căn hộ với đầy đủ công năng, phù hợp với cặp vợ chồng trẻ, với giá thuê nhà chỉ từ 3 đến 4tr 1 tháng
Mỗi phòng chung cư mini được thiết kế bao gồm: phòng ngủ liên thông với bếp, phòng khách, phòng ăn, phòng vệ sinh
Dây chuyền công năng từ ngoài vào trong bao gồm: tủ giầy, bếp, bàn ăn, sofa và cuối cùng là giường ngủ, tại vị trí này, chúng tôi có đưua khoảng logia lấy gió và sáng cho căn hộ, đây cũng là nơi dự kiến bố trí hệ thống điều hòa và là nơi phơi đồ cho căn hộ

Ảnh minh họa mặt bằng tầng 2-3-4, thiết kế chung cư mini 6 tầng 1 tum tại Hà Nội.
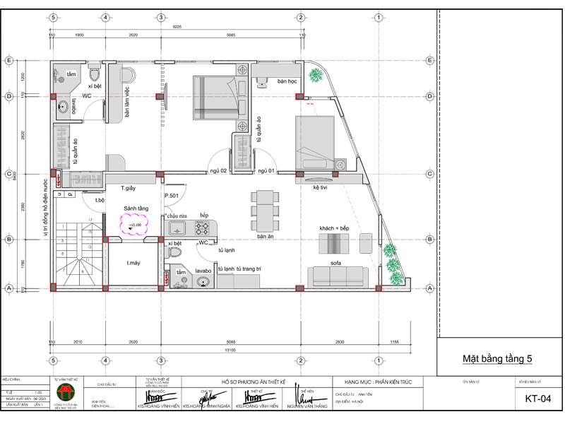
Thiết kế mặt bằng công năng tầng 5 bao gồm:
Tầng 5 được thiết kế dành cho gia đình Anh tiến, với 2 vợ chồng và 2 cháu nhỏ, nên tầng 5 được thiết kế như một chung cư mini 1 sàn, với diện tích 70m2 bao gồm 02 phòng ngue, 02 vệ sinh, bếp và phòng khách liên thông nhau, phòng ngủ và phòng khách có thiết kế logia lấy gió và ánh sáng cho căn hộ, phần phòng giặt và sân phơi của căn hộ được đẩy lên tầng tum

Ảnh minh họa mặt bằng tầng 5, thiết kế chung cư mini 6 tầng 1 tum tại Hà Nội.
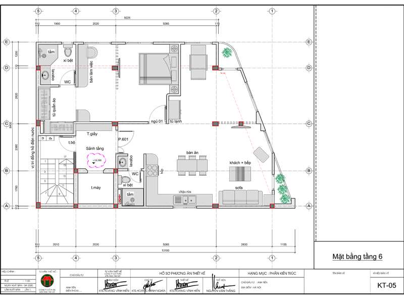
Thiết kế mặt bằng công năng tầng 6
Mặt bằng công năng tầng 6 được thiết kế dành cho Ông Bà, toàn bộ diện tích 70m2 được bố trí 01 phòng ngủ rộng, với vệ sinh khép kín, phòng bếp và phòng khách liên thông với nhau, có khu vực phòng sinh hoạt chung gia đình riêng biệt, liên thông với phòng ăn và logia, ngoài ra còn bố trí thêm 01 phòng vệ sinh chung, có chậu rửa tay đặt bên ngoài, giúp tối ưu công năng sử dụng, phòng thờ gia tiên được đặt trên tầng tum, tầng cao nhất của công trình

Ảnh minh họa mặt bằng tầng 6, thiết kế chung cư mini 6 tầng 1 tum tại Hà Nội.
Thiết kế mặt bằng công năng tầng tum
Công năng chính của tầng tum là phòng thờ, phòng giặt, sấy và sân phơi, phần sân chơi được bố trí 01 vị trí bếp cùng chậu rửa, mục đích để tổ chức những sự kiện liên hoan ngoài trời mỗi khi đông đủ thành viên trong gia đình hoặc mỗi khi chủ nhà thể hiện lòng hiếu khách, tiếp đón bạn bè bằng những bữa tiệc ngoài trời với không gian thoáng đãng, hòa mình với thiên nhiên giữa lòng Hà Nội

Ảnh minh họa mặt bằng tầng tum, thiết kế chung cư mini 6 tầng 1 tum tại Hà Nội.
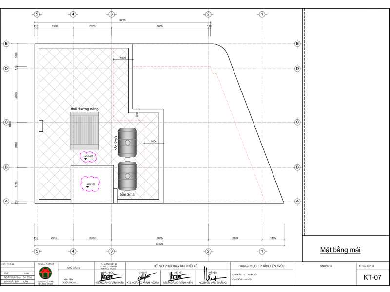
Mặt bằng mái được thiết kế bê tông kết hợp với mái nhẹ, giàn hoa, phần mái bê tông sẽ bao trùm không gian của phòng thờ, thang bộ, thang máy, phòng giặt, phía trên của phòng giặt được bố trí 01 téc nước 2m3 cùng hệ thống năng lượng mặt trời, cung cấp nước cho toàn bộ công trình.

Ảnh minh họa mặt bằng tầng tum, thiết kế chung cư mini 6 tầng 1 tum tại Hà Nội.
Thiết kế kiến trúc chung cư mini 6 tầng 1 tum.
Với việc công trình nằm tại ngã 3, tiếp giáp với 2 mặt ngõ rộng trung bình 3m, chúng tôi bố trí hệ thống nhiều cửa sổ mặt ngoài, giúp công trình mang dáng vẻ hiện đại, phần cửa sổ này sẽ lưu thông ánh sáng và gió cho từng căn hộ
Thiết kế kiến trúc mặt ngoài tầng 1 được ốp đá màu xanh đen, tạo cho công trình một khối đế vững chắc, hệ thống cửa tại tầng 1 là cửa cuốn có khe thoáng, kết hợp cùng hệ thống cửa nhôm vách kính lớn, tăng vẻ hiện đại cho công trình
Các tầng 2-3-4-5-6-tum được thiết kế liền mạch, có kết hợp các khoảng ban công và logia hợp lý về mặt kĩ thuật, tạo các khoảng lồi lõm, giúp công trình mang dáng dấp hiện đại, tính thẩm mỹ cao
Toàn bộ phần ban công và logia được lấp đầy bằng hệ thống cây xanh, kết hợp với ban công bằng thép dẹt với chiều cao 1 mét bảo vệ an toàn cho người sử dụng.

Ảnh minh họa phối cảnh góc chính, thiết kế chung cư mini 6 tầng 1 tum tại Hà Nội.
Phối cảnh mặt bên là những chi tiết lắp lại của mặt đứng, với điểm nhấn là màu ghi sáng kế hợp cùng màu trắng cơ bản của tường, mặt bên này có sự xuất hiện của hệ thống cửa sổ lấy thoáng trong nhà vệ sinh, chạy dọc từ tầng 2 lên tầng 6, mặt này sẽ là lối tiếp cận chính của chủ nhà và các căn hộ cho thuê.

Ảnh minh họa phối cảnh góc mặt bên, thiết kế chung cư mini 6 tầng 1 tum tại Hà Nội.
Phối cảnh góc trên cao sẽ cho chủ đầu tư và nhà thầu hiểu rõ hơn về công trình và vật liệu, phần sân tum được lát gạch chống trơn mà tối, kết hợp với dải cây xanh tại ban công, phần mái tum là mái bê tông chịu lực kết hợp với hệ mái kính cường lực, khung thép, đây sẽ là nơi tổ chức những bữa tiệc ngoài trời mỗi khi có dịp, thể hiện sự hiếu khách của chủ nhà.

Ảnh minh họa phối cảnh góc tổng thể, thiết kế chung cư mini 6 tầng 1 tum tại Hà Nội.
Thuyết minh thiết kế chung cư mini 6 tầng 1 tum tại Hà Nội.
Dự toán thiết kế chung cư mini 6 tầng 1 tum và chiến lược kinh doanh thu hồi vốn.
Với diện tích sàn 80m2 được thiết kế và xây dựng 6 tầng 1 tum, chúng tôi xin gửi Anh Tiến kế hoạch triển khai thi công và kế hoạch kinh doanh căn hộ cho thuê như sau:
Tổng diện tích xây dựng 80m2 tầng 1 + tầng lửng 60m2 + tầng 2-3-4-5-6 = 91m2 x 5 = 455m2 + tầng tum mái bê tông: 60m2, tầng tum mái nhẹ 31m2, tổng cộng: 655m2 sàn
Chi phí đầu tư xây dựng cơ bản được lấy theo suất vốn đầu tư xây dựng Quý 3/2020 là 6.7tr/m2
Chi phí thiết bị là: 2.2tr/m2
Tổng chi phí xây dựng hoàn thiện, đầy đủ theo mặt bằng công năng là: 655m2 x 8.9tr = 5.8 tỉ
Cho thuê tầng 1 dự kiến: 12 triệu
Tầng lửng: 8 triệu
Tầng 2-3-4: mỗi tầng 2 phòng, mỗi phòng cả điện nước là 6tr/phòng/tháng, tổng cộng: 36tr/tháng
Tầng 5-6 để ở, tuy nhiên hoàn toàn có thể cho thuê mỗi tầng 10tr
Tổng cộng cho thuê 1 tháng cả công trình là: 76tr 1 tháng, 1 năm tính 11 tháng là 76tr x 11 tháng = 836tr/năm
Số năm thu hồi vốn: 5.8 tỉ chi cho 836tr = 6.9 năm
Lưu ý: phần khấu hao đã tính vào 1 tháng trong năm
Vậy với 5.8 tỉ, trong vòng 6.9 năm Anh Tiến sẽ thu hồi toàn bộ phần vốn xây dựng, bắt đầu năm thứ 8, anh đã có một nguồn thu nhập ổn định hàng năm lên tới 836tr và sẽ còn tăng theo thời gian, theo sự lạm phát
Nói chung, việc xây dựng nhà cho thuê là kinh điển của những nhà tỉ phú hàng đầu, nên việc Anh Tiến đầu tư xây dựng căn hộ chung cư mini cho thuê là cực kì hợp lý.
Nếu Anh Chị nào, có lô đất và muốn thiết kế chung cư mini, thiết kế nhà cho thuê, hãy liên hệ với em, Công ty kiến trúc thủ đô chắc chắn sẽ làm Anh/Chị hài lòng
Thông tin liên hệ
T: 0915 9999 25 (Zalo)
W: kientructhudo.vn
E: thietke.kttd@gmail.com
A: 8/260 Cầu Giấy - Hà Nội
Công ty cổ phần Kiến trúc thủ đô
Trân trọng!

