Sơ lược về công trình:
Chung cư minii 6.5 tầng
Địa điểm: Cầu Giấy - Hà Nội
Chủ Đầu Tư: Bác Thái - Tâm
Kích thước lô đất: 5.65m x 13.85m
Diện tích sàn: 78.2m2
Tổng diện tích xây dựng: 510m2
Chi phí xây dựng phần thô: 3.9tr/m2 x 510tr = 1.989 tỉ ( bao gồm các phần gạch/xi/cát/đá, nhân công và vật tư phụ)
Chi phí hoàn thiện cơ bản: 0.9tr/m2 x 510tr = 0.459tỉ
Chi phí nội thất cơ bản: 600tr đồng cho 10 phòng thuê
Chi phí thang máy tải trọng 450kg 6 điểm dừng: 420tr
Tổng chi phí chìa khóa trao tay: 1.989 tỉ + 0.459 tỉ + 0.6 tỉ + 0.42 tỉ =3.468 tỉ
Thời gian hoàn thành: 300 ngày (tính từ ngày khởi công)
Giá cho thuê phòng tại Quận Cầu Giấy: 6.5tr/tháng - diện tích 35m2
Trung bình: 10p x 5.5tr = 55tr/ tháng
Hệ số cho thuê: 80%/năm
Tổng số tiền cho thuê 1 năm: 55tr x 10 tháng = 550tr/năm
Thời gian thu hồi vốn là 6.3 năm
Phối cảnh công trình

Công trình thiết kế với 02 mặt ngõ, ngõ rộng trung bình 3m, ngôn ngữ thiết kế hiện đại, gam màu trẻ, năng động, mảng khối rõ dàng và liền mạch, các khoảng đặc của tường, kết hợp khoảng lồi lõm của ban công và lô gia tạo nên tổng thể kiến trúc hài hòa cho căn hộ, Tầng 1 được sơn tường giả đá cao cấp, tạo bề thế cho công trình, từ tầng 2-3-4-5-6 có bố trí cửa sổ khung nhôm kính, kết hợp các mảng tường xanh đan xen trắng, tạo điểm nhấn công trình, vừa là nơi bố trí hệ thống kĩ thuật điều hòa, vừa là nơi bố trí khoảng bếp cũng như sân phơi quần áo cho căn hộ

Màu trắng tinh khiết của tường, kết hợp màu đen của vật liệu nhôm cửa, sắt lan can cùng với màu xanh của lá, 3 màu này kết hợp đan xen hài hòa, tạo nên một tổng thể kiến trúc đẹp, nhẹ nhàng, tinh tế
Mặt bằng tổng thể lô đất

mặt bằng tầng 1, được chúng tôi thiết kế chính dành cho việc để xe máy của căn hộ cho thuê, mỗi căn hộ trung bình 02 xe máy, tổng thể 10 căn hộ sẽ cần tối thiểu 20 xe máy
Tầng 1 ngoài không gian để xe, chúng tôi bố trí thêm 01 căn hộ khép kín đầy đủ công năng dành cho người giúp việc kiêm bảo vệ, có mở 02 cửa, có thể đi được 2 hướng, từ ngoài mặt tiền vào phòng và từ phòng vào khu vực thang máy, thang bộ, giúp người bảo vệ linh hoạt trong việc kiểm soát an ninh cho các hộ thuê phòng
Hệ thống kiểm soát điện được chúng tôi bố trí tập chung tại gầm cầu thang bộ, tại đây cũng là nơi bố trí hệ thống điện chạy dọc trục, giúp giảm thiểu chi phí thi công, tăng thời gian thu vốn cho chủ nhà

Mặt bằng bố trí tầng căn hộ cho thuê - tầng 2-3-4-5-6, diện tích mỗi căn hộ trung bình 35m2 bố trí đầy đủ công năng bao gồm: 01 phòng ngủ với giường đôi, bàn làm việc, tủ quần áo, 01 phòng khách kết hợp phòng ngủ đơn, 01 phòng bếp với khu giặt và phơi riêng biệt, sát cạnh ban công, 01 wc khép kín, tất cả tạo nên tổng thể hài hòa cho toàn công trình
Hệ thống thang máy và thang bộ để đối diện, giải quyết giao thông trục đứng toàn bộ công trình, phần hành lang giao thông trục ngang, đủ rộng để sử dụng và vận chuyển đồ mỗi khi có người thuê mới

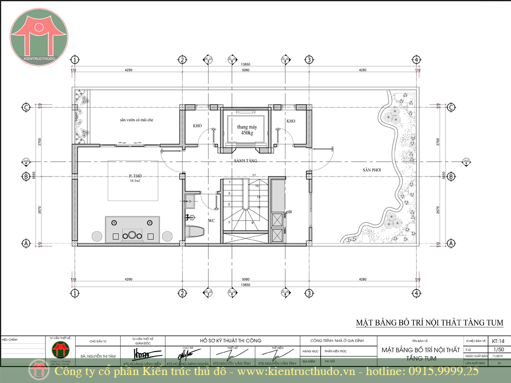
Mặt bằng tầng tum, nơi chủ nhà hướng về nguồi cội, nơi có phòng thờ 18m2 hướng nhìn ra logia với khoảng xanh bất tận, một nơi ấm cúng và vô cùng linh thiêng
phía bên kia là sân phơi chăn ga gối đệm cho căn hộ cho thuê mỗi khi có nhu cầu, phần sân phơi này rất rộng, chủ nhà thoải mái thể hiện khả năng trồng rau xanh tự cung tự cấp, vửa tiết kiệm chi phí, mà quan trọng là an toàn thực phẩm

Mặt bằng mái, là sự kết hợp giữa mái bê tông, phần mái che chính, và mái kính, phần mái nhẹ, tăng khoảng thoáng cho logia phí trước ban thờ và phía sân phơi, trồng rau xanh, sạch

mặt đứng công trình

Mặt cắt dọc công trình

Mặt bằng móng cọc

công trình khởi công tháng 3-2019 và đẫ được chúng tôi hoàn thành đi vào sử dụng tháng 9-2019
Nếu bạn đang có lô đất, dự kiến muốn làm nhà cho thuê, thì đây là lời giải cho bạn, chỉ với 4.8tr/m2 xây dựng trọn gói, thời gian thu hồi vốn trung bình 6 năm, hãy liên hệ với tôi ngay nhé
Thông tin vui lòng liên hệ
T: 0915.9999.25 (Zalo)
W: kientructhudo.vn
E: thietke.kttd@gmail.com
A: 8/260 Cầu Giấy - Hà Nội
Công ty cổ phần kiến trúc thủ đô
Trân trọng!
