Những điều cơ bản trong thiết kế nhà phố tại Hà Nội
Những năm gần đây, phong cách thiết kế nhà hiện đại khá được ưa chuộng bởi kết cấu đơn giản, phát huy tối đa công năng. Tuy nhiên, khi lựa chọn phong cách thiết kế này, cần chọn những điểm nhấn nổi bật, tránh biến không gian trở nên đơn điệu. Với phong cách thiết kế nhà hiện đại, bản thiết kế cần có sự kết hợp hài hòa giữa thiết kế kiến trúc và thiết kế nội thất cùng màu sắc. Đây là yếu tố quan trọng, tạo nên một tổng thể hài hòa, có điểm nhấn cho công trình.
Nhà là nơi các thành viên trong gia đình trở về sau một ngày dài lao động, học tâp. Bởi vậy, bất kỳ ai cũng có mong muốn có được một không gian thư giãn, nghỉ ngơi tuyệt đối. Việc thiết kế nhà đẹp, phòng ốc cần ưu tiên tính thoải mái, bố trí hợp lý, tránh để căn phòng trở nên ngột ngạt, bức bối khiến các thành viên có cảm giác căng thẳng khi trở về nhà. Ngoài ra, bên cạnh không gian riêng, nên có phòng sinh hoạt chung cho tất cả các thành viên trong gia đình để mọi người quây quần đoàn tụ.

Ảnh minh họa thiết kế nhà phố hiện đại
Kết hợp không gian xanh trong thiết kế nhà hiện đại
Bên cạnh phong cách thiết kế nhà hiện đại, nhiều người có thiên hướng lựa chọn loại hình kiến trúc xanh, kết hợp giữa nhà ở cùng cây cối, tạo cảm giác gần gũi, hòa mình cùng thiên nhiên. Ngoài ra, có những người lựa chọn thiết kế nhà thông minh, bởi đây là mẫu nhà vừa hiện đại, tiện dụng lại có thể tích hợp nhiều công năng trong một hạng mục, phù hợp với đối tượng là những người trẻ, ưa thích sự năng động, hoặc các không gian nhà ở có diện tích nhỏ, hẹp.

Ảnh minh họa kết hợp không gian xanh trong thiết kế nhà hiện đại
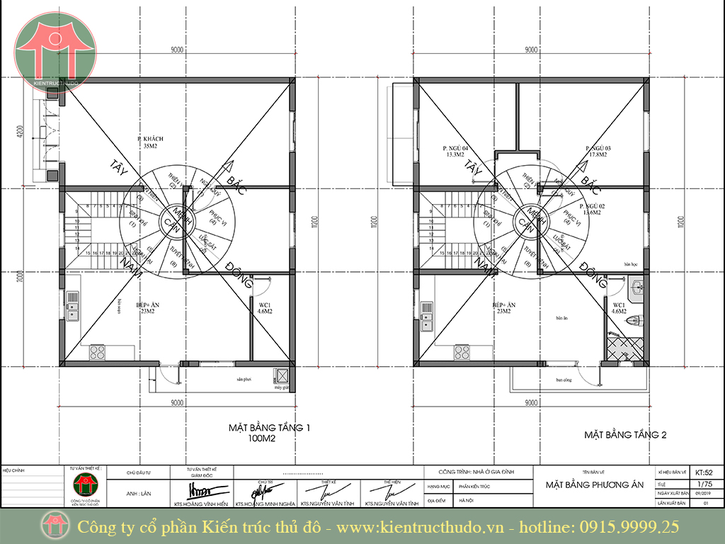
Phong thủy trong thiết kế nhà hiện đại tại Hà Nội
Một yếu tố khác cũng được nhiều người quan tâm đó là phong thủy trong thiết kế nhà. Với nhiều bản thiết kế nhà ở, chủ nhà cũng rất lưu tâm vấn đề này và yêu cầu người thiết kế bổ sung yếu tố phong thủy trong bản vẽ, từ thiết kế cổng chính, thiết kế cửa chính, thiết kế phòng ngủ, thiết kế phòng thờ, thiết kế phòng bếp, thiết kế cầu thang, tất cả những công nằng cần kết hợp hài hòa và phù hợp với phong thủy, đảm bảo lưu thông gió và ánh sang, giúp gia chủ thuận lợi và hanh thông trong công việc và cuộc sống gia đình.

Ảnh minh họa thiết kế nhà theo phong thủy
Vậy có nên thiết kế nhà trước khi xây dưng?
Nếu bạn đang có ý định xây nhà và cần có bản thiết kế nhà hiện đại, bạn nên lựa chọn một công ty thiết kế uy tín để đặt hàng. Các công ty kiến trúc với đội ngũ tư vấn chuyên nghiệp và kiến trúc sư lành nghề sẽ giúp bạn giải quyết các vấn đề liên quan đến công trình sắp xây dựng, trong đó có hồ sơ thiết kế nhà. Đây là lựa chọn tối ưu giúp bạn tiết kiệm chi phí, thời gian và công sức mà vẫn bảo đảm tiến trình xây dựng.
Ở Hà Nội, bạn có thể tìm tới công ty Kiến trúc thủ đô, công ty chuyên về thiết kế kiến trúc và thiết kế nội thất. Ngoài việc có thể cung cấp cho bạn tất cả các thông tin về bản vẽ, thiết kế nhà, Kiến trúc thủ đô còn cung cấp cho bạn các gói thi công xây dựng trọn gói. Bạn có thể lựa chọn công ty kiến trúc thủ đô làm nhà thầu chính, thực hiện toàn bộ quá trình thi công và hoàn toàn yên tâm với chất lượng các dịch vụ mà công ty Kiến trúc thủ đô cung cấp
Bảng báo giá thiết kế nhà tại Hà Nội mới nhất năm 2023
A. BÁO GIÁ THIẾT KẾ NHÀ - PHẦN THIẾT KẾ KIẾN TRÚC--->gọi ngay 0915.9999.25 để biết thêm chi tiết
| I | LOẠI CÔNG TRÌNH |
ĐƠN GIÁ THIẾT KẾ PHẦN KIẾN TRÚC (đ/m2 sàn) |
ĐƠN GIÁ THIẾT KẾ KẾT CẤU, ĐIỆN,NƯỚC, DỰ TOÁN (đ/m2 sàn) |
| 1 | Thiết kế nhà ống 1 măt tiền | 70.000đ | 50.000đ |
| 2 | Thiết kế nhà ông 2 mặt tiền | 90.000đ | 60.000đ |
| 3 | Thiết kế biệt thự 1-2 mặt tiền | 120.000đ | 80.000đ |
| 4 | Thiết kế biệt thự 2-4 mặt tiền | 150.000đ | 100.000đ |
| 5 | Thiết kế khách sạn, văn phòng, nhà hàng, chung cư... | 180.000đ | 100.000đ |
| 6 | Thiết kế bar, cafe, karaoke... | 230.000đ | 120.000đ |
| 7 | Thiết kế sân vườn, cảnh quan | 100.000đ | 50.000đ |
| 8 | Thiết kế nhà thờ họ, đền chùa, kiến trúc cổ | 350.000đ | 150.000đ |
Xin lưu ý: Cam kết 100% khách hàng hài lòng, khách hàng không hài lòng về thiết kế, Chúng tôi xin hoàn tiền 100%
- Tổng diện tích sàn < 100m2 ----> Đơn giá thiết kế tăng thêm 50%;
- Tổng diện tích sàn từ 100m2 đến 180m2, đơn giá thiết kế tăng thêm 20%;
- Tổng diện tích sàn trên 400m2 đơn giá thiết kế giảm 10%;
- Giảm giá 30% đối với phần kiến trúc, hoặc kết cấu, hoặc điện, hoặc nước trong trường hợp có các tầng giống nhau;
B. BÁO GIÁ THIẾT KẾ NHÀ - PHẦN THIẾT KẾ NỘI THẤT--->gọi ngay 0915.9999.25 để biết thêm chi tiết
| I | LOẠI CÔNG TRÌNH |
ĐƠN GIÁ THIẾT KẾ PHẦN PHỐI CẢNH GÓC (đ/m2) |
| 1 | Thiết kế nội thất nhà dân dụng | 120.000đ |
| 2 | Thiết kế nội thất Chung cư | 120.000đ |
| 3 | Thiết kế nội thất biệt thự hiện đại | 150.000đ |
| 4 | Thiết kế nội thất biệt thự tân cổ điển | 180.000đ |
| 5 | Thiết kế nội thất văn phòng | 90.000đ |
| 6 | Thiết kế nội thất bar, cafe | 180.000đ |
Xin lưu ý: Gói thiết kế nội thất - tối thiểu 5.000.000đ trở lên - cam kết hài lòng 100%
Hồ sơ thiết kế nhà tại Hà Nội bao gồm những nội dung sau
1.HỒ SƠ THIẾT KẾ KIẾN TRÚC NHÀ
| I | NỘI DUNG HỒ SƠ KĨ THUẬT CHI CÔNG - PHẦN KIẾN TRÚC | GHI CHÚ |
| 1 | Phối cảnh góc tổng thể | Thể hiện góc nhìn từ tren cao, giúp CĐT thấy rõ tổng mặt bằng |
| 2 | Phối cảnh góc các mặt công trình | Thể hiện các góc ảnh 3D ngoại thất |
| 3 | Các mặt bằng - mặt đứng - mặt cắt kiến trúc | Thể hiện chi tiết các kích thước dài, rộng, cao, phục vụ thi công |
| 4 | Mặt bằng bố trí cửa | Thể hiện vị trí cửa |
| 5 | Chi tiết cửa | Thể hiện hình dáng, quy cách cửa, các kích thước cửa theo phong thủy |
| 6 | Mặt bằng lát sàn các tầng | Thể hiện vị trí ốp, lát, màu sắc, kích thước, bề mặt vật liệu gạch ốp lát |
| 7 | Chi tiết lan can | Thể hiện hình dáng, kích thước, vật liệu sử dụng lan can |
| 8 | Chi tiết cầu thang | Thể hiện hình dáng, kích thước, vật liệu sử dụng, theo phong thủy |
| 9 | Chi tiết vệ sinh | Thể hiện kích thước vệ sinh, bố trí thiết bị vệ sinh, thống kê thiết bị vệ sinh |
| 10 | Các chi tiết cấu tạo kiến trúc | Thể hiện các chi tiết kiến trúc như cột, dầm, gờ, ban công, phào chỉ.... |
2.HỒ SƠ THIẾT KẾ KẾT CẤU NHÀ, ĐIỆN, CẤP THOÁT NƯỚC, DỰ TOÁN
| I |
NỘI DUNG HỒ SƠ KĨ THUẬT CHI CÔNG - PHẦN KẾT CẤU PHẦN ĐIỆN, CẤP THOÁT NƯỚC, DỰ TOÁN |
GHI CHÚ |
| 1 | Mặt bằng định vị cột | Định vị vị trí các cột trên công trình, số lượng, kích thước cột |
| 2 | Mặt bằng định vị móng | Thể hiện các kích thước móng |
| 3 | Chi tiết dầm móng | Thể hiện kích thước, chủng loại móng |
| 4 | Chi tiết bể phốt, bể nước | Thể hiện kích thước bể phốt bể nước |
| 5 | Mặt bằng kết cấu dầm sàn | Thể hiện kích thước dầm móng |
| 6 | Mặt bằng bố trí thép dầm sàn | Thể hiện quy cách, bố trí sắt thép dầm sàn |
| 7 | Mặt bằng bố trí thép cầu thang | Thể hiện quy cách bố trí thép |
| 8 | Chi tiết cột, dầm, sàn | Thể hiện hình dáng, kích thước, cột, dầm, sàn |
| 9 | Thống kê cốt thép | Thể hiện chi tiết số lượng thép trong công trình |
| 11 | Sơ đồ nguyên lý cấp điện toàn nhà | Thể hiện sơ đồ tổng thể hệ thống cấp điện |
| 12 | Mặt bằng bố trí ổ cắm, chống sét toàn nhà | Thể hiện vị trí ổ cắm, số lượng ổ cắm, chi tiết phần chống sét |
| 13 | Mặt bằng bố trí chiếu sáng | Thể hiện vị trí chiếu sáng, số lượng bóng chiếu sáng, kiểu ánh sáng |
| 14 | Mặt bằng bố trí điều hòa | Thể hiện vị trí điều hòa, công suất điều hòa, |
| 15 | Mặt bằng bố trí Lan/Tel/Tivi/Camera/Âm thanh công cộng | Thể hiện vị trí các mặt ổ Lan/Tel/Tivi/Camera.... |
| 16 | Thống kê vật tư | Thống kê chi tiết chủng loại vật tư tương ứng |
| 17 | Sơ đồ nguyên lý cấp thoát nước toàn nhà | Thể hiện sơ đồ cấp thoát nước toàn nhà |
| 18 | Mặt bằng thoát nước mưa | Thể hiện vị trí các lỗ thoát mưa |
| 19 | Mặt bằng thoát nước vệ sinh | Thể hiện vị trí các lỗ thoát nước thải sinh hoạt |
| 20 | Mặt bằng cấp nước vệ sinh | Thể hiện vị trí các lỗ cấp nước |
| 21 | Chi tiết cấp thoát nước | Thể hiện các thức lắp đặt, quy cách các thiết bị vệ sinh |
| 22 | Thống kê vật tư | Thể hiện chi tiết các loại vật tư về phần cấp thoát nước |
| 23 | Dự toán chi phí công trình (kiến trúc, kết cấu, điện, nước) |
3. HỒ SƠ THIẾT KẾ NÔI THẤT NHÀ
| I | NỘI DUNG HỒ SƠ KĨ THUẬT CHI CÔNG - PHẦN NỘI THÁT | GHI CHÚ |
| 1 | Phối cảnh góc tổng thể | Thể hiện góc nhìn từ tren cao, giúp CĐT thấy rõ tổng mặt bằng |
| 2 | Phối cảnh góc từng phòng công năng | Thể hiện các góc ảnh 3D ngoại thất từng phòng công năn |
| 3 | Các chi tiết đồ nội thất | Thể hiện chi tiết các kích thước dài, rộng, cao, phục vụ thi công |
Liên hệ với công ty Thiết Kế Nhà phố ở đâu?
Với hơn 15 năm kinh nghiệm cùng hàng trăm mẫu thiết kế nhà phố hiện đại, chúng tôi tự hào là đơn vị tư vấn thiết kế nhà phố hàng đầu tại Hà Nội, với đội ngũ kiến trúc sư nhiều năm kinh nghiệm, tân tâm với nghề, đặt chất lượng và lợi ích của khách hàng lên trên hết, không chạy theo số đông, chúng tôi luôn tìm tòi, đào sâu suy nghĩ, kết hợp với công năng của bạn, để tạo nên những kiến trúc biệt thự đẹp nhất, phù hợp với từng yêu cầu của bạn, đáp ứng hợp lý về công năng, đẹp về hình khối, tối ưu về nội thất, phù hợp về phong thủy, giúp bạn tiết kiệm kinh phí tối đa, mà vẫn có được căn hộ ưng ý
Hãy liên hệ ngay với chúng tối, để có những mấu thiết kế biệt thự đẹp nhất
Thông tin liên hệ Công ty thiết kế nhà uy tín và chuyên nghiệp
Công ty cổ phần kiến trúc thủ đô
☎️Hotline: 0915.9999.25 (Zalo)
Địa chỉ: số 8/260 Cầu giấy - Hà Nội
Website: kientructhudo.vn
Email: thietke.kttd@gmail.com