Nhà Anh Sinh - Hàm Nghi - Mỹ Đình - Hà Nội
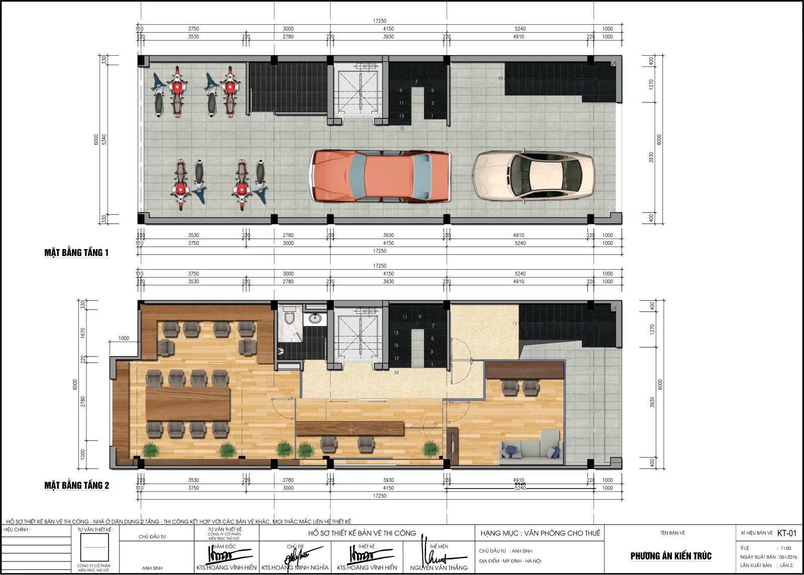
Nhà ống một mặt tiền, rộng 6m sâu 17.3m
Căn hộ thiết kế 6,5 tầng, kết hợp nhà ở và văn phòng cho thuê
Tầng 1: Cầu thang ngoài, nhà xe, phòng bảo vệ

Tầng 2-3-4-5: Văn phòng cho thuê

Tầng 6: phòng ngủ có ban công và logia + phòng khách + bếp + phòng ăn
Tầng tum: Phòng thờ + phòng giặt + sân phơi
Phối cảnh ngoại thất


Phương án ngoại thất so sánh

Để có được những thiết kế kiến trúc nhà một mặt tiền đẹp và hiện đại, Anh/Chị có thể liên hệ để được tư vấn cụ thể:
KIẾN TRÚC THỦ ĐÔ
Trụ sở: 260 Cầu Giấy - Hà Nội
Hotline: 0915 9999 25
Tel: 04 6661 8186
Gmail: thietke.kttd@gmail.com
Website: www.kientructhudo.vn
 
                  
										
									 
	
Bạn báo giá giúp thiết kế nhà 2 tầng có lửng. 2 phòng ngủ đều có wc. Diện tích 4mx9m