GIỚI THIỆU NHỮNG MẪU THIẾT KẾ NHÀ ĐẸP TẠI THỊ XÃ SƠN TÂY
Cách trung tâm thủ đô Hà Nội gần 50km, thị xã Sơn Tây được biết đến như một khu di tích đặc biệt hấp dẫn với nhiều danh lam thắng cảnh, di tích lịch sử - văn hóa nổi tiếng như: hồ Đồng Mô, thành cổ Sơn Tây, Làng cổ Đường Lâm, Đền Và, chùa Mía... Sơn Tây đã trở thành điểm nhấn quan trọng trong bản đồ du lịch của thủ đô Hà Nội.
Vơi nhu cầu hội nhập hóa đô thị, phong cách thiết kế nhà tại thị Xã Sơn Tây vô cùng phong phú đa dạng, từ những thiết kế nhà hiện đại, đến thiết kế nhà mái thái, và không thể không nhắc đến những thiết kế nhà cầu kì mang hơi hướng tân cổ điển kiểu Pháp.
Để hiểu hơn về những phong cách thiết kế nhà tại thị xã Sơn Tây, chúng Tôi xin giới thiệu một số mẫu thiết kế nhà điển hình sau đây:
1.Mẫu thiết kế nhà hiện đại
Với những gia đình trẻ, phong cách thiết kế nhà hiện đại sẽ được ưa chuộng hơn, người trẻ thích sự đơn giản, tối ưu công năng sử dụng, chú trọng nhiều đến nội thất sử dụng bên trong, không quá cầu kì vê hình thức bên ngoài, nhưng phải đảm bảo phải đẹp và đơn giản nhất.
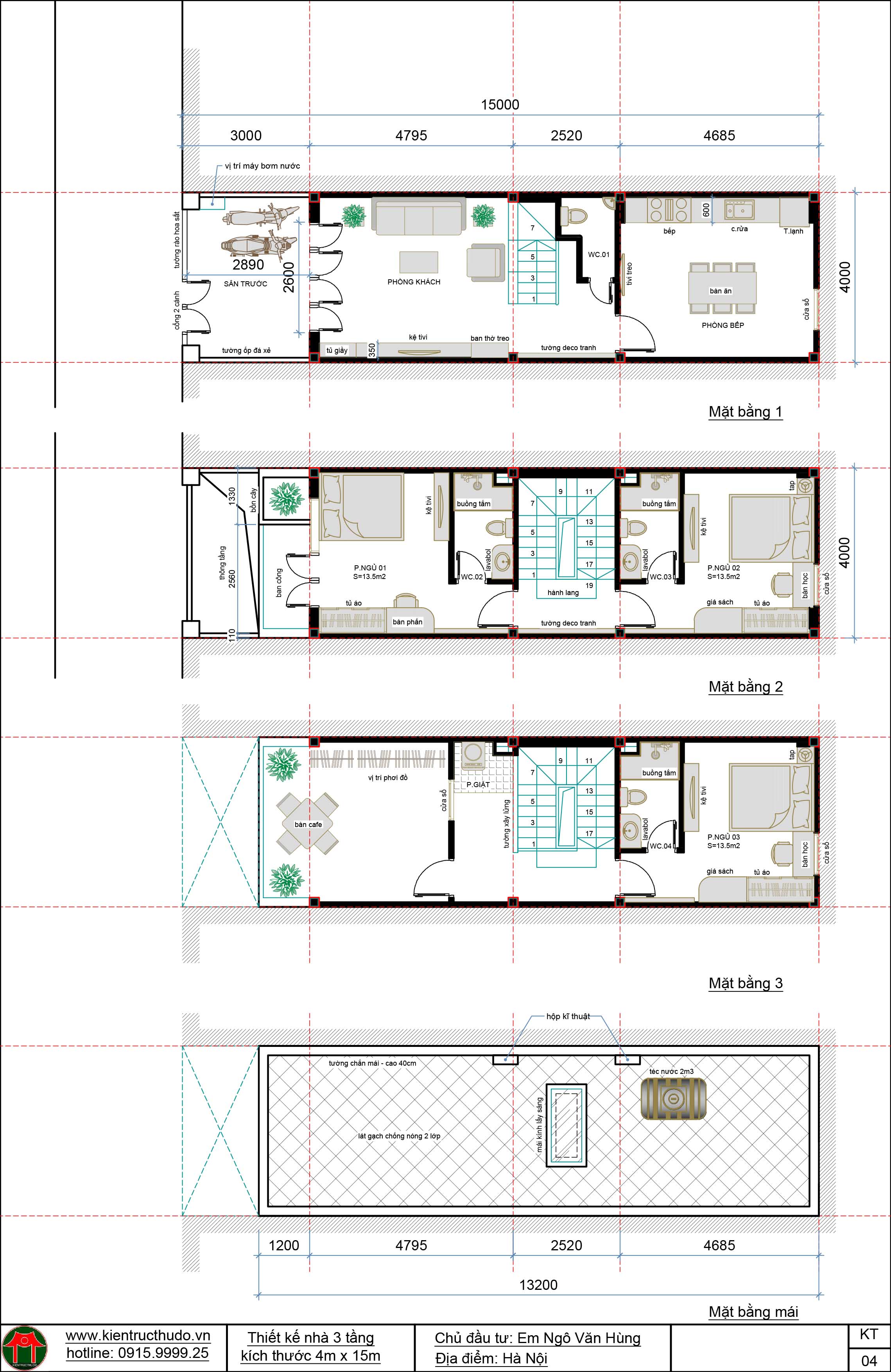
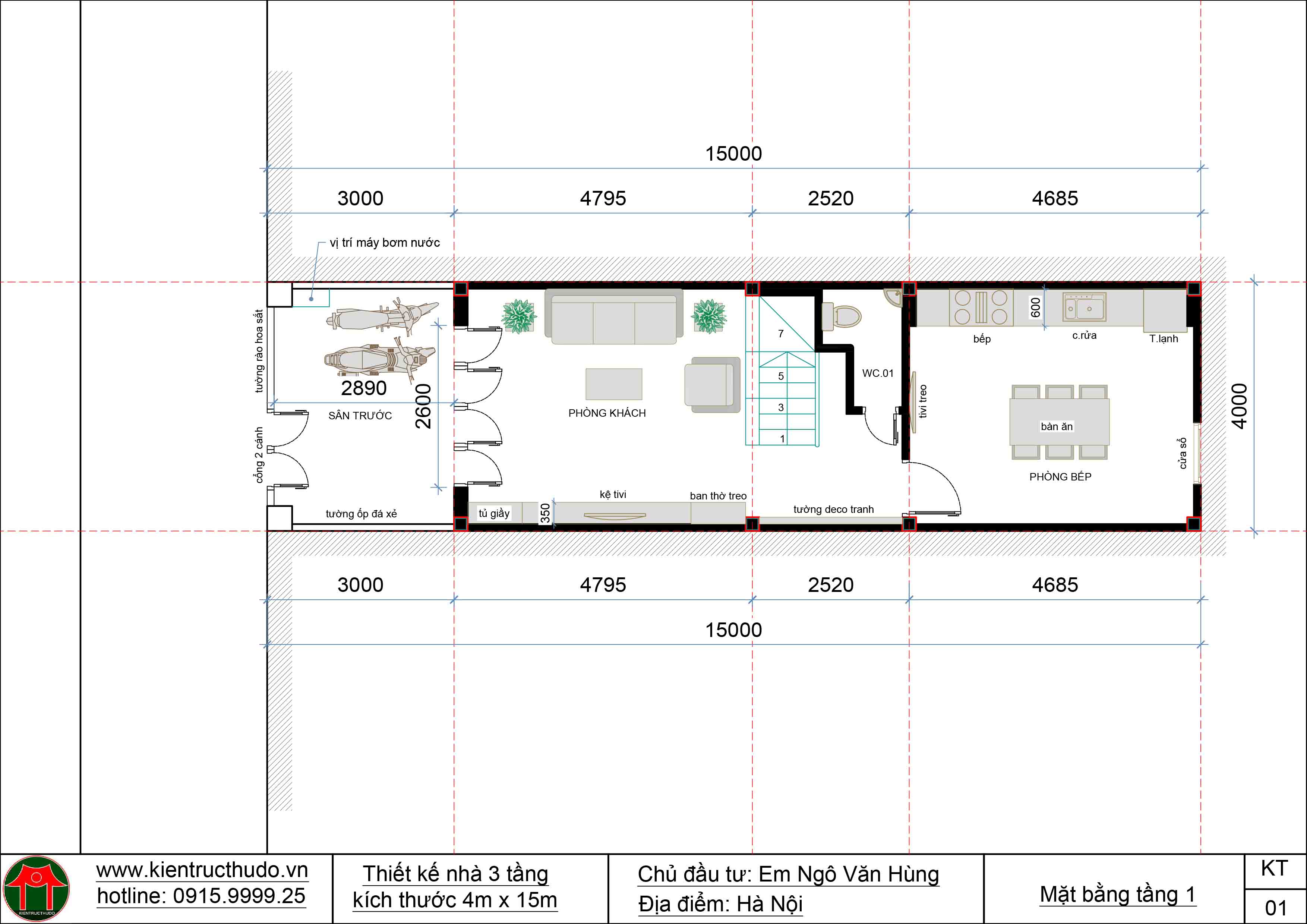
Ở công trình thiết kế nhà 3 tầng 1 tum này, chúng Tôi thiết kế hiện đại, đường nét đơn giản với những khối đan xen lẫn nhau, sự tương phản màu sắc của tường và lan can cùng gạch ốp, giúp căn nhà nổi bật, các khoảng không gian lồi lõm giúp lưu thông khí rất hiệu quả
Thiết kế nhà hiện đại không thể thiếu những khoảng xanh, chúng Tôi có bố trí trồng cây suốt mặt đứng công trình, từ tầng 2 phòng ngủ master đến tầng tum sân vườn, các khoảng ban công được trang trí bằng cây xanh, đây cũng là điểm nhấn giúp công trình trở nên hiện đại và thân thiên với môi trường.






Ảnh minh họa phong cách thiết kế nhà hiện đại.
2.Mẫu thiết kế nhà tân cổ điển
Với mẫu thiết kế nhà tân cổ điển, phù hợp hầu hết mọi lứa tuổi.
Với kiểu kiến trúc nhẹ nhàng, đường nét tỉ mỉ, tỉ lệ hợp lý, màu sắc hài hòa, thường là màu trắng của tường, kết hợp với màu đen của sắt mỹ thuật, toát lên vẻ đẹp châu âu, một nét đặc trưng trong lối kiến trúc Pháp.
Thiết kế nhà tân cổ điển thường được làm từ 3 đến 5 tầng.
Ban công trong thiết kế tân cổ điển thường thiết kế lan can con tiện hoặc sắt mỹ thuật sơn đen, hình thức ban công có thể là hình chữ nhật hoặc hình tròn bán nguyệt.
Cửa trong thiết kế tần cổ điển thường là cửa khung nhôm đen, kính trắng an toàn 2 lớp.
Phần mái được thiết kế dán ngói màu xám, hệ số mái dốc thường rất lớn, lớn hơn nhiều so với mái thái truyền thống.
Để thiết kế được một căn nhà với phong cách tân cổ điển, bạn cần có một lô đấy đủ lớn, diện tích từ 150m2 đến 200m2, đảm bảo công trình có đủ 2 mặt thoáng, đảm bảo hệ thống tường rào kiên cố, hài hòa với kiến trúc của công trình.
Với diện tích nhỏ hơn, và chỉ có một mặt tiền, gia chủ nếu muốn, vẫn có thể thiết kế nhà tân cổ điển, tuy nhiên sẽ không bề thế, nguy nga và trang hoàng với việc có 2 mặt tiền.

Ảnh minh họa: Thiết kế nhà tân cổ điển 2 mặt tiền.
3.Mẫu thiết kế nhà mái thái.
Nhà mái thái hay nhà truyền thống thường phù hợp với những yêu thích vẻ đẹp giản dị và nhẹ nhàng, hướng tới nguồn cuội, không chen lấn xô bồ với số đông.
Kiến trúc nhà mái thái có nét đặc trưng bở hệ mái chồng mái, 2 mái hoặc 3 mái.
Nhà mái thái thường thiết kế 2 đến 3 tầng, tầng trên cùng thiết kế 50% diện tích xây dựng, còn lại phía trước bố trí sân vườn tiểu cảnh, hoặc bố trí giàn hoa.
Nhà mái thái thích hợp với lô đất từ 120 đến 150m2, dành cho đại gia đình 3 thế hệ sinh sống.
Lối thiết kế nhà mái thái khá cầu kì, khi thi công cần rất cẩn thận tỉ mỉ, đòi hỏi người thợ phải có kinh nghiệm cao, đã từng làm nhiều dạng nhà tương tự, vì chỉ một vài chi tiết không đúng thiết kế, ngôi nhà nhìn sẽ chắp vá, không liền mạch.

Ảnh minh họa: Thiết kế nhà mái thái 2 mặt tiền tại Thị Xã Sơn Tây
CÔNG TY KIẾN TRÚC THỦ ĐÔ CHUYÊN THIẾT KẾ NHÀ TẠI THỊ XÃ SƠN TÂY
Với nhiều năm kinh nghiệm thiết kế và trực tiếp thi công các công trình dân dụng tại Thị Xã Sơn Tây, Dịch Vụ thiết kế nhà của Công ty Kiến trúc thủ đô bao gồm những nội dung sau đây:
1.Thiết kế nhà phố phong cách hiện đại tại Sơn Tây bao gồm:
Thiết kế nhà hiện đại.
Thi công xây dựng nhà phố.
Thiết kế và thi công nội thất nhà phố.
các bạn có thể tham khảo nhiều mẫu thiết kế nhà tại đây

Ảnh minh họa: Thiết kế nhà phong cách hiện đại 1 mặt tiền.
2.Thiết kế nhà mái thái tại Sơn Tây bao gồm:
Thiết kế nhà mái thái 3 tầng.
Thiết kế nhà mái thái 2 mặt tiền.
Thiết kế nhà mái thái phong cách truyền thống.
Thiết kế nhà mái thái phong cách nhật bản.
Thiết kế nhà mái thái giá rẻ.

Ảnh minh họa: Thiết kế nhà mái thái 1 mặt tiền kết hợp sân vườn.
3.Thiết kế nhà phong cách tân cổ điển bao gồm:
Thiết kế kiến trúc phong cách tân cổ điển.
Thiết kế nội thất tân cổ điển.
Thiết kế nhà tân cổ điển 1 mặt tiền.
Thiết kế nhà tân cổ điển 2 mặt tiền.
Thi công nội thất phong cách tân cổ điển.

Ảnh minh họa: Thiết kế nhà tân cổ điển tại thị xã Sơn Tây.
BÁO GIÁ THIẾT KẾ NHÀ TẠI THỊ XÃ SƠN TÂY
Công ty kiến trúc thủ đô xin gửi đến Quý vị bảng báo giá những hạng mục thiết kế nhà của chúng Tôi như sau:
1. Báo giá thiết kế nhà - phần thiết kế kiến trúc, thiết kế kết cấu, thiết kế điện, thiết kế cấp thoát nước.
| I | LOẠI CÔNG TRÌNH |
ĐƠN GIÁ THIẾT KẾ PHẦN KIẾN TRÚC (đ/m2 sàn) |
ĐƠN GIÁ THIẾT KẾ KẾT CẤU, ĐIỆN,NƯỚC, DỰ TOÁN (đ/m2 sàn) |
| 1 | Thiết kế nhà ống 1 măt tiền | 50.000đ | 40.000đ |
| 2 | Thiết kế nhà ông 2 mặt tiền | 60.000đ | 50.000đ |
| 3 | Thiết kế biệt thự 1-2 mặt tiền | 90.000đ | 60.000đ |
| 4 | Thiết kế biệt thự 2-4 mặt tiền | 120.000đ | 60.000đ |
| 5 | Thiết kế khách sạn, văn phòng, nhà hàng, chung cư... | 90.000đ | 80.000đ |
| 6 | Thiết kế bar, cafe, karaoke... | 90.000đ | 80.000đ |
| 7 | Thiết kế sân vườn, cảnh quan | 30.000đ | 20.000đ |
| 8 | Thiết kế nhà thờ họ, đền chùa, kiến trúc cổ | 300.000đ | 100.000đ |
Xin lưu ý: Cam kết 100% khách hàng hài lòng, khách hàng không hài lòng về thiết kế, Chúng tôi xin hoàn tiền 100%
- Tổng diện tích sàn < 100m2 ----> Đơn giá thiết kế tăng thêm 50%;
- Tổng diện tích sàn từ 100m2 đến 180m2, đơn giá thiết kế tăng thêm 20%;
- Tổng diện tích sàn trên 400m2 đơn giá thiết kế giảm 10%;
- Giảm giá 30% đối với phần kiến trúc, hoặc kết cấu, hoặc điện, hoặc nước trong trường hợp có các tầng giống nhau;
2. Báo giá thiết kế nhà - phần thiết kế nội thất.
| I | LOẠI CÔNG TRÌNH |
ĐƠN GIÁ THIẾT KẾ PHẦN PHỐI CẢNH GÓC (đ/m2) |
| 1 | Thiết kế nội thất nhà dân dụng | 90.000đ |
| 2 | Thiết kế nội thất Chung cư | 90.000đ |
| 3 | Thiết kế nội thất biệt thự hiện đại | 120.000đ |
| 4 | Thiết kế nội thất biệt thự tân cổ điển | 150.000đ |
| 5 | Thiết kế nội thất văn phòng | 80.000đ |
| 6 | Thiết kế nội thất bar, cafe | 180.000đ |
Xin lưu ý: Gói thiết kế nội thất - tối thiểu 5.000.000đ trở lên - cam kết hài lòng 100%
Về hồ sơ thiết kế nhà, bạn vui lòng xem tại đây
Nếu các bạn đang tìm đơn vị thiết kế nhà đẹp uy tín, hãy liên hệ ngay với chúng Tôi theo thông tin sau:
CÔNG TY CỔ PHẦN KIẾN TRÚC THỦ ĐÔ
Điện thoại: 0915.9999.25 (Zalo) KTS Hoàng Vĩnh Hiển
Trân trọng!
