Yêu cầu thiết kế nhà 3 tầng 1 tum hiện đại tại Hà Nội
Thiết kế nhà 3 tầng 1 tum dành cho gia đình 2 thế hệ, có bố mẹ và 2 con, bố trí 4 phòng ngủ, phòng khách và bếp với măt tiền 6m và sâu 7m, có đua được ban công
Yêu cầu thiết kế nhà hiện đại đơn giản, cửa dùng nhôm kính, lan can inox hoặc sắt sơn tĩnh điện, phần tum trang trí hiện đại, có thể trồng cây xanh, ban công và logiia thoáng mát nhưng phải an toàn cho người sử dụng.
Thuyết minh phương án thiết kế nhà 3 tầng 1 tum
Với yêu cầu thiết kế nhà của Anh Đông, chú tôi đã lên phối cảnh thiết kế nhà 3 tầng 1 tum theo phong cách hiện đại, các mảng khôi khỏe khoắn gân guốc, lược bỏ phào chỉ rườm dà, bố trí các mảng khối đan xen nhau, kết hợp màu trắng của nền, màu xanh đậm tạo điểm nhấn cuốn hút cho công trình, phần ban công được thiết kế sắt dẹt tạo sự thanh thoát khi nhìn chính diện, các phần trần ban công được ốp bê tông giả gỗ dầy 3mm, sơn PU tạo sự sang trọng đẳng cấp và cực bền với thời gian, vì nó là bê tông sợi, hệ thống cửa dùng cửa nhôm kính đen, bên trong bố trí rèm cản nắng, giúp chủ nhà tùy biến khi sử dụng

Phối cảnh thiết kế nhà 3 tầng 1 tum hiện đại
Công trình được thiết kế hài hòa, phù hợp với cảnh quan xung quanh, đan xen những khối bê tông khô cứng là hệ thống cây xanh chạy dọc từ ban công tầng 2 tầng 3 lên tận tầng tum, tầng 1 được ốp đá granite tự nhiên màu xanh cổ ngỗng, giúp công trình tạo cảm vững chắc, phần mái được thiết kế hệ lam bê tông, vừa che nắng vừa tạo dáng thanh thoát cho công trình.

Phối cảnh mặt bên thiết kế nhà 3 tầng 1 tum hiện đại
Phối cảnh tổng thể công trình từ trên cao giúp chủ nhà hiểu rõ hơn về hệ thống kĩ thuật trên mái, được bố trí téc nước, giếng trời, hệ thống chống nóng trên mái dùng gạch chống nóng thông tâm 2 lớp, giúp công trình thoáng mát về mùa hè, ấm áp về mùa đông, phần sân vườn trên mái trước phòng thờ là nơi chủ nhà thể hiện tài trồng trọt với những bồn cây lớn, được xây bằng gạch, có chống thẩm cẩn thận, đảm bảo việc chống thấm cho tầng 3

Phối cảnh tổng thể thiết kế nhà 3 tầng 1 tum hiện đại
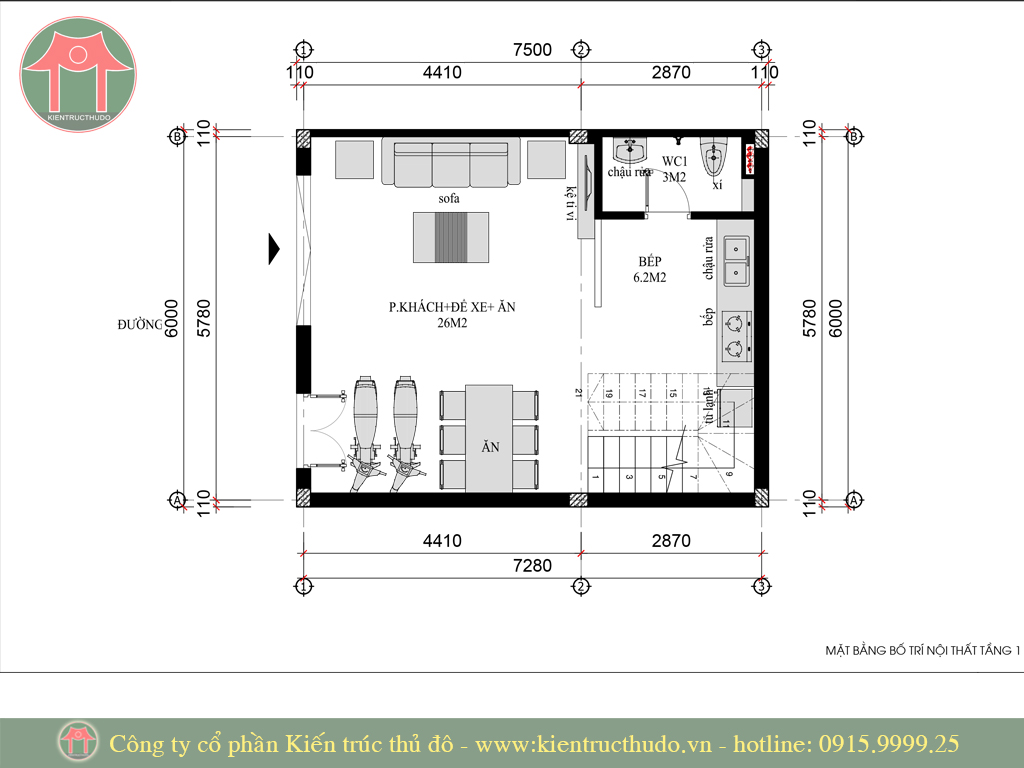
Thuyết minh thiết kế mặt bằng nhà 3 tầng 1 tum
Thiết kiến trúc mặt bằng tầng 1 được bố trí bao gồm phòng khách diện tích 26m2 liên thông bếp, với diện tích nhỏ hẹp nên việc bố trí để xe trong nhà là không tránh khỏi, cầu thang được thiết kế gọn 1 góc, cầu thang từ tầng 1 lên tầng 2 bao gồm 21 bậc, với chiều rộng bản thang là 90cm chiều rộng măt bậc 25cm và chiều cao 17.5cm đảm bảo tiêu chuẩn thiết kế cho người sử dụng.
Phần bếp được đặt sau nhà, bố trí linh hoạt đầy đủ tiện nghi như tủ lạnh, bếp, chậu rửa, bàn ăn cho gia đình.
Nhà vệ sinh đặt sau phòng khách được bố trí đơn giản đầy đủ công năng với lavabo, sen tắm và xí bệt, tổng diện tích khoảng 3m2, thoải mái nhu cầu sử dụng gia đình hoặc cho khách

Ảnh minh họa tầng 1 trong thiết kế nhà 3 tầng 1 tum hiện đại
Mặt bằng tầng 2 được bố trí 02 phòng ngủ và vệ sinh chung, Phòng ngủ master với diện tích 15m2 có logia lấy gió và thoáng, đảm bảo nhu cầu sử dụng, trong phòng ngủ bố trí đồ nội thất cơ bản như giường ngủ đôi kích thước 2x.2.2m, tủ quần áo âm tường, tivi treo tường và bàn phấn cạnh đầu giường.
Phòng ngủ con được thiết kế với diện tích nhỏ hơn là 12.5m, tại phòng ngủ con chỉ bố trí cửa sổ, đảm bảo an toàn khi sử dụng, thiết kê nội thất bên trong cơ bản như giường ngủ đôi, tủ quần áo, bàn học, đảm bảo nhu cầu sử dụng
Thiết kế nhà vẻ sinh với diện tích 3m cho gia đình gồm có vách tắm kính, đảm bảo không dơi nước ra ngoài, tiếp đến là xí bệt sau đấy là lavabo, phần bàn đá được vát góc, giúp người sử dụng xí bệt trành góc nhọn tạo tà khí, hộp kĩ thuật nước chạy dọc trục, được bố trí tại góc nhà vệ sinh.

Ảnh minh họa tầng 2 trong thiết kế nhà 3 tầng 1 tum hiện đại
Mặt bằng tầng 3 được bố trí towng tự tầng 2, chi khác phần phối cảnh mạt tiền bên ngoài và hệ lan can cầu thang bên trong nhà

Ảnh minh họa tầng 3 trong thiết kế nhà 3 tầng 1 tum hiện đại
Mặt bằng tầng tum được thiết kế với phòng thờ phía trước, khoảng sân phơi và phòng giặt bên trong, cạnh cầu thang bộ
Đối diện phòng thờ thiết kế phần sân chơi có nhiều cây xanh, tạo cảm giác thư thái yên tĩnh cho phòng thờ

Ảnh minh họa tầng tum trong thiết kế nhà 3 tầng 1 tum hiện đại
Mặt bằng mái trong thiết kế nhà 3 tầng 1 tum được bố trí lát gạch trống nóng, hệ mái kính và lam bê tông, tại mái còn bố trí thêm téc nước 2m3 cho gia đình cùng hệ thống thái dương năng chờ sẵn cho mục đích sử dụng tiết kiệm lâu dài

Ảnh minh họa tầng mái trong thiết kế nhà 3 tầng 1 tum hiện đại
Bản vẽ thiết kế chi tiết mặt đứng chính công trình giúp đội thi công hiểu được chiều cao các tầng, chiều cao của cửa sổ, của ban công logia và hệ lan can sắt

Ảnh minh họa chi tiết mặt đứng trong thiết kế nhà 3 tầng 1 tum hiện đại
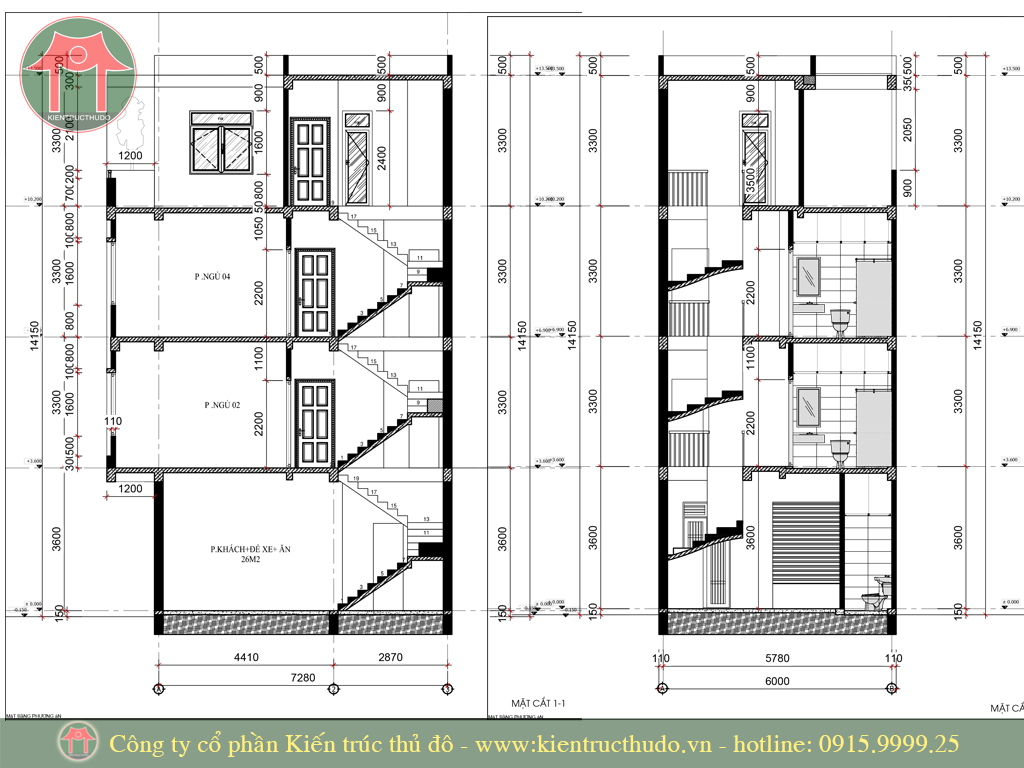
Bản vẽ mặt cắt ngang công trình thể hiện các lớp cấu tạo vật liệu giúp đội thi công thi công chính xác theo ý đồ thiết kế nhà đã thống nhất với Anh Đông

Ảnh minh họa chi tiết mặt cắt trong thiết kế nhà 3 tầng 1 tum hiện đại
Ảnh chụp tại công trình bàn giao hồ sơ thiết kế nhà 3 tầng 1 tum, chúc Anh Chị có một căn hộ ưng ý, với chi phí hợp lý, công năng hiệu quả, cảm ơn Anh Chị đã tin tưởng và giao thiết kế nhà cho công ty Kiến trúc thủ đô

Bàn giao hồ sơ thiết kế nhà 3 tầng 1 tum tại công trình
Giám sát phần ép cọc tại công trình, kiểm tra các kích thước trước khi tiến hành thi công xây xựng

Công tác giám sát thực tế phần ép cọc trước khi xây dựng nhà 3 tầng 1 tum của Anh Đông
Khi chúng tối tổng hợp thiết kế và viết bài viết này, Anh Đông đã thi công xong nhà và đưa công trình vào sử dụng, Anh rất ưng ý về thiết kế và cách chúng tôi tư vấn cũng như giám sát tận tâm cho công trình.
Xin chân thành cảm ơn Anh đã thực hiện đúng bản vẽ thiết kế, đã tin tưởng công ty Kiến trúc thủ đô
Và nếu bạn đang có nhu cầu thiết kế nhà 3 tầng 1 tum theo phong cách hiện đại, đây sẽ là 01 mẫu bạn có thể tham khảo, và nếu muốn tư vấn kĩ hơn, đúng với nhu cầu của mình, bạn hãy liên hệ với tôi nhé, chắc chắn tôi sẽ khiến bạn hài lòng.
Thông tin liên hệ
T: 0915 9999 25 (Zalo)
W: kientructhudo.vn
E: thietke.kttd@gmail.com
A: 8/260 Cầu Giấy - Hà Nội
Công ty cổ phần Kiến trúc thủ đô
Trân trọng!
							
						

