Thiết kế nhà với 48m2 cho gia đình 4 người sinh sống
Thiết kế nội thất cho không gian nhỏ là tương đối khó khăn, phương pháp đơn giản sử dụng đồ nội thất thông minh hoặc nhỏ, bạn cần phải bố trí thật khoa học, kết hợp các không gian liên thông với nhau như phòng khách và bếp, tận dụng các khoảng ban công hoặc logia làm nơi phơi hoặc chứa đồ nếu có thể, phòng ngủ nên bố trí các hệ tủ âm, giương ngủ nên có ngắn kéo để đồ, màu sắc nên dùng gam màu sáng nhẹ nhàng tạo cảm giác rộng hơn, phần tường và sàn nên là màu đối nghịch nhau, giúp không gian sạch mắt gọn gàng hơn nhiều bạn nhé

Ảnh minh họa Thiết kế nhà nhỏ dành cho 4 người sử dụng
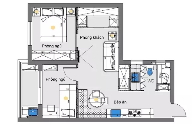
Trong căn nhà diện tích nhỏ (48 m2), cặp vợ chồng trẻ vẫn có đầy đủ các không gian chức năng như phòng khách, bếp ăn, 2 phòng ngủ.

Ảnh minh họa Thiết kế nhà với phòng khách nhỏ xinh cho 4 người
Khu vực phòng khách khá hẹp nên chủ nhà chỉ kê sofa, gắn tivi lên tường.

Ảnh minh họa Thiết kế nhà với phòng khách liên thông khu bếp cho gia đình 4 người
Ngoài tông màu trắng chủ đạo, gia chủ sử dụng thêm sắc đen và vàng để nhà có sự sinh động và tươi trẻ hơn.

Ảnh minh họa Thiết kế nhà nhỏ với cách sắp xếp gọn gàng giúp không gian rộng hơn
Để không tốn chỗ cho các cánh cửa mở, kiến trúc sư sử dụng cửa lùa. Hốc tủ là chỗ cất đồ, kê tủ lạnh trở nên gọn gàng khi không có nhu cầu sử dụng các thiết bị
.
Ảnh minh họa Thiết kế nhà nhỏ với khu bàn ăn và bếp đơn giản
Các mảng tường được tận dụng để bố trí các ngăn tủ chạy quanh tường. Kiểu ghế góc bên cửa sổ giúp bàn ăn nhiều chỗ nhưng vẫn gọn.

Ảnh minh họa Thiết kế nhà bếp đầu đủ công năng dành cho 4 người
Khu bếp nhỏ và hẹp nên chủ nhà chọn kiểu tủ chạy dọc với nhiều ngăn kệ đủ chỗ để đồ cho gia đình ít thành viên.

Ảnh minh họa Thiết kế phòng ngủ nhỏ đơn giản đầy đủ tiện nghi
Phòng ngủ bé chỉ có tông màu trắng-be với hệ tủ kệ giống như mảng tường lớn.

Ảnh minh họa Thiết kế phòng ngủ với gường tone hồng kết hợp tường trắng tạo cảm giác nhã nhặn
Đèn đầu giường dạng thả vừa không tốn chỗ vừa tạo nét duyên dáng cho phòng ngủ.

Ảnh minh họa Thiết kế phòng ngủ nhỏ dảnh cho con gái yêu
Phòng ngủ nhỏ của con có cửa kính nhìn ra phòng bếp. Nhờ đó, bếp ăn có thêm ánh sáng và bố mẹ cũng có thể quan sát khi con trong phòng.

Ảnh minh họa Thiết kế phòng vệ sinh nhỏ nhưng vẫn đầy đủ công năng cơ bản
Mọi đồ dùng cần thiết được cất gọn trong tủ sau gương.

Ảnh minh họa Thiết kế phòng vệ sinh màu trắng giúp phòng cảm giác rộng hơn
Căn hộ có ưu điểm là khu WC cũng có cửa sổ nhỏ mở ra bên ngoài giúp lấy sáng và thông gió.
Để có được những thiết kế nội thất chung cư với những thiết kế biệt thự và thiết kế nhà các bạn có thể liên hệ để được tư vấn cụ thể:
