GIỚI THIỆU MẪU THIẾT KẾ BIỆT THỰ HIỆN ĐẠI TẠI HẢI PHÒNG.
Mẫu thiết kế biệt thự hiện đại tại Hải Phòng mà chúng Tôi giới thiệu sau đây có diện tích xây dựng gần 200m2, chủ đầu tư là Chú Đường, với mong muốn thiết kế biệt thự dành cho gia đình 1 thế hệ sinh sống, bao gồm vợ chồng và 1 con nhỏ, phong cách thiết kế hiện đại, kết hợp với mái thái truyền thống.
Với diện tích lô đất hơn 300m2, Chú Đường muốn nhà chính sẽ phải liên thông chặt chẽ với cảnh quan sân vườn xung quanh, cần đưa ra các giải pháp về gió và ánh sáng hợp lý, yêu cầu có sân và sảnh chính để thư giãn đọc sách uống cafe ngắm cảnh.

Phối cảnh 3D thiết kế biệt thự hiện đại tại Hải Phòng.
THUYẾT MINH THIẾT KẾ BIỆT THỰ HIỆN ĐẠI TẠI HẢI PHÒNG.
Dựa vào nhu cầu sử dụng và đặc điểm lô đất, chúng Tôi đã lên phương án thiết kế biệt thự như sau, xin mời các bạn cùng theo dõi chi tiết.
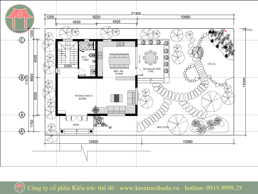
1.Mặt bằng tầng 1 trong thiết kế biệt thự hiện đại tại Hải Phòng.
Tầng 1 được chúng Tôi thiết kế với không gian phòng khách rộng, liên thông với khu bếp, ngăn cách bởi hệ tủ rượu, phòng ăn kết nối với sân vườn bằng không gian sảnh chính ngoài trời, có mái che nhẹ bằng kính, cột khung gỗ sơn màu cánh dán.
Thiết kế phòng khách với diện tích hơn 40m2 bố tri cơ bản gồm có sofa liền tường cùng kệ tivi, phần sảnh chính trước nhà sẽ dẫn khách đi thẳng vào phòng khách rộng và thoáng. Nền phòng khách thiết kế cao hơn nền sân 45cm, được ốp đá trắng xen đá vàng cầu kì bóng bẩy, tạo điểm nhấn cho phần sảnh.
Thiết kế phòng bếp với diện tích 18m2, có bố trí thiết bị cơ bản như: tủ lạnh, chậu rửa, bếp điện, bàn ăn lớn dành cho 8 người sử dụng, ngoài ra phần bếp còn được bổ sung bằng hệ sảnh phụ ngoài trời, với diện tích lên tới 11m2, đây sẽ là nơi tổ chức những bữa tiệc ngoài trời, giúp thay đổi không gian sinh hoạt, tạo nên nét mới mẻ trong lối thiết kế biệt thự hiện đại.

Thiết kế biệt thự hiện đại tại Hải Phòng với tầng 1 gồm phòng khách và bếp liên thông.
2.Mặt bằng tầng 2 trong thiết kế biệt thự hiện đại tại Hải Phòng.
Mặt bằng tầng 2 được thiết kế với 2 phòng ngủ, có diện tích trung bình 19m2 với bố trí cơ bản như: giường ngủ đôi, tủ quần áo, bàn phấn, bàn làm việc và kệ tivi.
Thiết kế phòng ngủ phía trước nhà rộng và thoáng nhờ khoảng đua ban công với diện tích lên tới 5.5m2, đây sẽ là nơi lý tưởng để hóng gió mỗi khi hè về, ban công và phòng ngủ được ngăn cách bằng hệ cửa đi mở quay 4 cánh được mở ra ngoài, phần lan can xây đặc tạo khối hiện đại cho mặt chính diện.
Thiết kế phòng ngủ phía sau nhà dành cho con nhỏ, với khoảng sân chơi vô cùng thoáng đáng phía trước, diện tích lên tới 21.5m2 quá thoái mái cho nhu cầu của trẻ nhỏ, sân chời này được chúng Tôi thiết kế bao bọc bởi tường gạch cao 1.1m đảo bảo an toàn cho người sử dụng.

Thiết kế biệt thự hiện đại tại Hải Phòng với tầng 2 bố trí 2 phòng ngủ.
3.Phối cảnh 3D thiết kế biệt thự hiện đại tại Hải Phòng sang trọng đẳng cấp.
Phối cảnh 3D mặt đứng chính với ngôn ngữ thiết kế hiện đại hài hòa, màu sắc nhẹ nhàng tinh tế, với gam màu trắng chủ đạo, kết hơp cùng màu nâu của gỗ, màu tối của ngói, tất cả hài hòa trong lối thiết kế biệt thự hiện đại tại Hải Phòng của Chú Đường.
Điểm nhấn mặt trước chính là phần sảnh chính, với 2 cột trang trí ốp đá tự nhiên màu trắng vân mây, phía trên dùng mái chéo kiểu nhật, hoàn thiện bằng ốp ngói màu xanh đậm, phía trần sảnh chính thiết kế ốp gỗ tư nhiên, hài hòa với gam màu xung quanh.
Phần bậu cửa sổ phòng khách thiế kế đơn giản, phía dưới với bồn hoa chạy dài, hoàn thiện ốp đá xanh tự nhiên, bên trên cửa sổ kẻ chỉ nổi sơn trắng, phía trên ốp gạch bê tông, hoàn thiện sơn giả gỗ.
Tầng 2 phía sân chơi được lợp mái kính, gia cố hệ khung bằng gỗ tự nhiên liền khối cực kì đẳng cấp và sang trọng.

Ảnh 3D thiết kế biệt thự hiện đại tại Hải Phòng nhẹ nhàng tinh tế.
Phối cảnh góc tổng thể trên cao giúp Chú Đường hình dung hết kiến trúc trên mái, cùng hệ sân chơi tầng 2, vật liệu lát sàn ban công v.v. góc tổng thể trên cao này cũng thể hiện đầy đủ phần giao thông nội bộ của sân vườn, kết nối với sảnh phụ bằng bậc đá tự nhiên, rất hiện đại nhưng lại vô cùng gần gũi, đấy cũng chính là điểm nhấn trong thiết kế biệt thự hiện đại này.

Ảnh 3D tổng thể thiết kế biệt thự hiện đại tại Hải Phòng.
Phối cảnh góc sân vườn với cảnh quan đá non bộ được thiết kế sơn thủy hữu tình, núi thiết kế theo phong thủy đặt phía sau nhà, tạo cảm giác vững chắc cho căn hộ, phía trước với hồ cá coi tự nhiên, có cầu cảnh làm bằng gỗ thơ mộng, đây sẽ là nơi chụp ảnh lưu kỉ niệm mỗi khi có khách tới thăm.

Phối cảnh sân vườn trong thiết kế biệt thự hiện đại tại Hải Phòng.
Phối cảnh góc sân vườn sảnh phụ với diện tích 11.5m2 có kết cấu bằng cột bê tông sơn giả gỗ, mái dùng mái kính cường lực 12mm xung quanh bọc thép không gì, thăng tuổi thọ công trình, tại đây chúng Tôi có bố trí bàn ăn cùng ổ điện cơ bản, đây sẽ là nơi đọc sách ngắm hồ cá coi vô cùng lý tưởng của gia chủ..

Thiết kế biệt thự hiện đại tại Hải Phòng với sảnh chính rộng thoáng liên thông sân vườn.
Phối cảnh góc sân vườn phía sau vách non bộ chúng Tôi thiết kế khu hầm rượu nhỏ, với cửa gỗ tự nhiên, đây là nơi chú Đường đặt hạ thổ những bình rượu quý ngay cạnh hồ cá, rất tuyệt vời.

Một góc tiểu cảnh trong thiết kế biệt thự hiện đại tại Hải Phòng.
Để thuyết phục chú Đường, chúng Tôi có làm thêm phương án so sánh về vật liệu ngoại thất trong thiết kế biệt thự hiện đại tại Hải Phòng, với phương án này, chúng Tôi thiết kế vật liệu thô mộc tự nhiên, bằng cách sử dụng gạch xây không trát, hoàn thiện tỉ mỉ, phần lam bê tông phía sân chơi tầng 2 được sơn trắng, phần cột sảnh chính cũng được xây không trát, các hệ cửa sổ thay từ nhôm đen sang cửa nhựa, một nét mới lạ trong thiết kế biệt thự, về cảm quan mà nói, phương án này toát nên vẻ tự nhiên và vô cùng gần gũi, thân thiện môi trường.

Phương án 3D thiết kế biệt thự hiện đại tại Hải Phòng với tường xây không trát.
Phối cảnh góc mặt chính không có nhiều thay đổi, điểm nổi bật dễ nhận biết nhất trong phương án này là phần gạch xây mộc, kết hợp cùng hệ cửa nhựa màu trắng.

Mặt đứng tường xây không trát trong thiết kế biệt thự hiện đại tại Hải Phòng.
BẢNG BÁO GIÁ THIẾT KẾ BIỆT THỰ HIỆN ĐẠI TẠI HẢI PHÒNG.
Chúng Tôi xin gửi đến các bạn thảm khảo đơn giá thiết kế biệt thự hiện đại của công ty Kiến trúc thủ đô.
1.Bảng báo giá thiết kế biệt thự hiện đại tại Hải Dương mới nhất.
| STT |
LOẠI CÔNG TRÌNH THIẾT KẾ |
ĐƠN GIÁ THIẾT KẾ KIẾN TRÚC (Tính theo mét vuông sàn) |
ĐƠN GIÁ THIẾT KẾ KẾT CẤU, ĐIỆN, NƯỚC (Tính theo mét vuông sàn) |
|---|---|---|---|
| 1 | Thiết kế biệt thự hiện đại, nhà ống 1 mặt tiền | 50.000đ | 40.000đ |
| 2 | Thiết kế biệt thự hiện đại, nhà ống 2 mặt tiền | 60.000đ | 50.000đ |
| 3 | Thiết kế biệt thự mái thái 1 mặt tiền | 90.000đ | 60.000đ |
| 4 | Thiết kế biệt thự mái thái trên 2 mặt tiền | 120.000đ | 60.000đ |
| 5 | Thiết kế biệt thự tân cổ điển 1 mặt tiền | 90.000đ | 60.000đ |
| 6 | Thiết kế biệt thự tân cổ điển trên 2 mặt tiền | 120.000đ | 60.000đ |
- Tổng diện tích sàn < 100m2 ----> Đơn giá thiết kế tăng thêm 50%;
- Tổng diện tích sàn từ 100m2 đến 180m2, đơn giá thiết kế tăng thêm 20%;
- Tổng diện tích sàn trên 400m2 đơn giá thiết kế giảm 10%;
- Giảm giá 30% đối với phần kiến trúc, hoặc kết cấu, hoặc điện, hoặc nước trong trường hợp có các tầng giống nhau;
2.Hồ sơ thiết kế biệt thự hiện đại tại Hải Phòng bao gồm:
Hồ sơ thiết kế biệt thự hiện đại của công ty Kiến trúc thủ đô bao gồm 4 phần
Phần thiết kế kiến trúc - thể hiện đẩy đủ các bản vẽ mặt bằng, mặt đứng, mặt cắt, các chi tiết thang, chi tiết vệ sinh, giúp thợ đọc bản vẽ và thi công đúng ý đồ thiết kế
Phần thiết kế kết cấu: thể hiện đầy đủ các phần kết cấu móng, cột, dầm, sàn, các cấu kiện kết cấu, đường kính chủng loại thép...
Phần thiết kế điện: thể hiện đầy đủ các phần ổ cắm, chiếu sáng, điều hòa, Lan/tel/tivi...
Phần thiết kế cấp thoát nước: thể hiện các vị trí đấu nối hệ thống cấp thoát nước, cùng các chi tiết kĩ thuật thi công hệ thống cấp thoát nước
3.Thời gian thiết kế biệt thự hiện đại tại Hải Phòng là bao lâu?
Thơi gian thiết kế hồ sơ từ 20 đến 25 ngày làm việc, đối với các công trình thiết kế biệt thự tân cổ điển 1 mặt tiền từ 1 đến 3 tầng
Thời gian thiết kế từ 25 đến 50 ngày làm việc, đối với thiết kế biệt thự tân cổ điển 2 đến 3 mặt tiền.
Trường hợp các bạn cần đẩy nhanh tiến độ, sau khi chốt mặt bằng công năng, bên thiết sẽ tiền hành thiết kế kết cấu móng phục vụ thi công, thời gian thiết kế móng từ 1-2 ngày, sau khi có thiết kế móng, bên Chủ đầu tư có thể thi công được luôn mà chưa cần đến toàn bộ hồ sơ thiết kế
4.Trách nhiệm của đơn vị thiết kế biệt thự hiện đại tại Hải Phòng ra sao?
Đối với trách nhiệm thiết kế biệt thự tân cổ điển tại Quảng Ninh, bên thiết kế sẽ cử cán bộ kĩ thuật có năng lực, nhiều kinh nghiệm giám sát trực tiếp mỗi lần đổ bê tông, đảm bảo tính ổn định chắc chắn, đúng bản vẽ của phần kết cấu cũng như phần hệ thống chờ của điện và nước.
5.Quy trình thiết kế biệt thự hiện đại tại Hải Phòng cụ thể như thế nào?
- Lắng nghe mong muốn của chủ đầu tư
- Dựa vào lô và yêu cầu thiết kế, bên đơn vị thiết kế sẽ tiến hành thiết kế mặt bằng công năng và tư vấn để phù hợp với chủ đầu tư
- Thống nhất phương án mặt bằng thiết kế, triển khai thiết kế 3D ngoại thất công trình
- Chỉnh sửa lại mặt bằng theo phối cảnh hoặc chỉnh sửa phối cảnh thật ưng ý, chốt mặt bằng và chốt phối cảnh
- Triển khai hồ sơ bản vẽ thi công dựa trên mặt bằng và phối cảnh đã chốt
- Bàn giao hồ sơ sau khi hoàn thành bản vẽ kĩ thuật thi công
- Giải đáp thắc mắc trực tiếp hoặc online trong quá trình thi công
- Giám sát những hạng mục quan trọng trong quá trình thi công
6.Liên hệ công ty thiết kế biệt thự hiện đại tại Hải Phòng ở đâu?
Công ty Kiến Trúc Thủ Đô với hơn 15 năm kinh nghiệm, chuyên thiết kế nhà, thiết kế biệt thự, từ hiện đại đến tân cổ điển, chúng Tôi đã thiết kế rất nhiều biệt thự tại Hà Nội, Bắc Ninh, Hải Dương, Hà Nam, Quảng Ninh v.v..
Với đội ngũ kiến trúc sư nhiệt huyết, tận tình, đam mê sáng tạo, khát khao thể hiện mình, là một công ty hàng đầu trong lĩnh vực thiết kế biệt thự.
Nếu bạn đang cần tìm một công ty thiết kế biệt thự chuyên nghiệp, hãy nhấc máy lên và liên hệ với Chúng Tôi theo số hotline: 0915.9999.25 KTS Hiển (Zalo)
Địa chỉ: 8/260 Cầu Giấy - Hà Nội
Trân trọng cảm ơn!


